VORT三田Ⅱ5階の賃貸情報
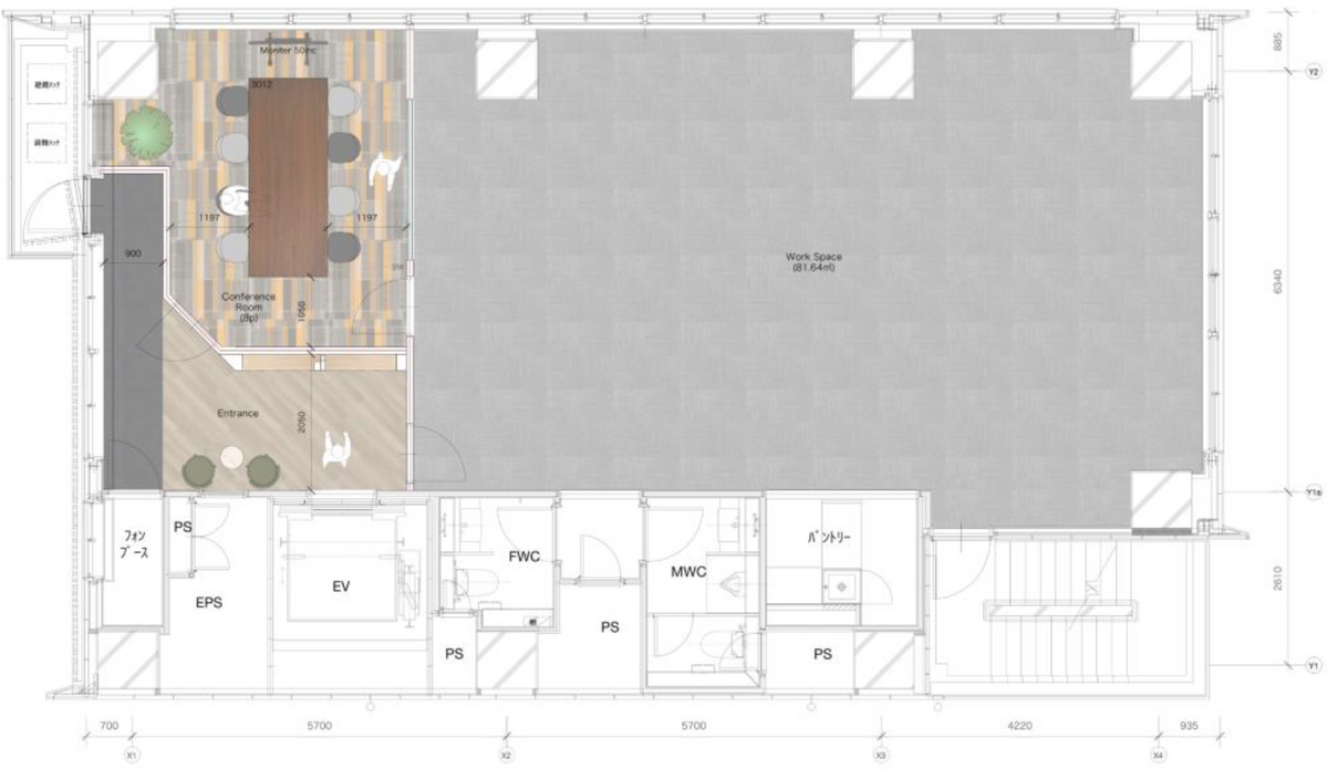
44.42 坪 (146.87m²)
※このサイトに記載がある賃貸条件は、敷金・保証金などの預かり金を除き、別途消費税がかかります。
VORT三田Ⅱの建物概要
設備詳細
| 空調 | 個別空調 |
|---|---|
| トイレ | 男女別トイレ室外 |
| 床仕様 | OA対応床(フリーアクセス) |
| エレベータ | 1 基 |
| 駐車場設備 | - |
| その他 | 機械警備 / セットアップ |
VORT三田Ⅱについて
2023年夏に竣工予定のこの新築物件は、三田通りに面し、視認性に優れた立地に位置しております。隣接する商店街の活気と、近辺の学生が行き交う賑わいは、このエリアの特色をよく表しています。田町駅と三田駅が近くにあり、交通の利便性も非常に高いことが特徴です。この物件は、1階が店舗スペースとして想定されており、上層階には基準階約45坪のオフィススペースが設けられています。 このビルは、立地の良さだけでなく、設計においても企業や店舗運営者のニーズを考慮しています。1階の店舗スペースは、商店街に面しているため、小売業や飲食業を営むには理想的な環境です。人通りの多さは、新規顧客の獲得に大きく貢献するでしょう。また、オフィススペースは、約45坪の広さがあり、柔軟なレイアウト変更が可能です。これにより、中小企業やスタートアップ企業にとって、成長の過程で必要となるさまざまなオフィス環境を提供できます。 交通アクセスの面では、田町駅と三田駅が徒歩圏内にあることで、東京都心へのアクセスはもちろん、郊外への移動も容易です。この立地は、従業員はもちろん、ビジネスパートナーや顧客にとっても大きな利点となります。 設備面では、最新の建築技術を取り入れた耐震構造や、省エネルギーを考慮した設計がなされています。また、高速インターネット接続やセキュリティシステムの導入など、現代のビジネスニーズに応えるための機能が充実しています。 この新築物件は、その立地、設計、設備ともに、店舗運営やオフィス運営において最適な環境を提供します。三田通りと商店街に面したこの場所は、多くの可能性を秘めており、新たなビジネスの舞台として、あなたの成功を後押しすることでしょう。
VORT三田Ⅱのこだわり
自分で探すより問い合わせる方が早いことがあります
WEB非公開物件があるから
オーナー様のご希望により「WEBでは非公開」にしている物件があります。 それらはWEBでいくら検索しても見つかりません。 先ずは条件などお知らせ頂けましたら非公開物件含め ピッタリのオフィスをご提案させて頂きます。 無理なお勧めはしておりませんので、お気軽にお問い合わせください。
対面でのご相談も受け付けております
ご来店も歓迎です
オフィス移転は社内・社外ともに非公開に行われることが殆どです。そのためアットオフィスでは、基本的に訪問によるコンサルティングを行っておりますが、ご来店の相談も歓迎です。お一人おひとりに親身にご対応させて頂きたい為、要予約とさせて頂いております。ご来店の際は先ずは下記よりご予約下さい。
近くのエリアで探してみる
浜松町/田町/芝公園エリアでVORT三田Ⅱに似た条件の物件
読込中...
VORT三田Ⅱと同じ最寄駅の物件
読込中...
| 取扱様態 | 仲介 |
|---|---|
| 取扱会社 | 株式会社 アットオフィス |