メディコーポ都筑2階の賃貸情報
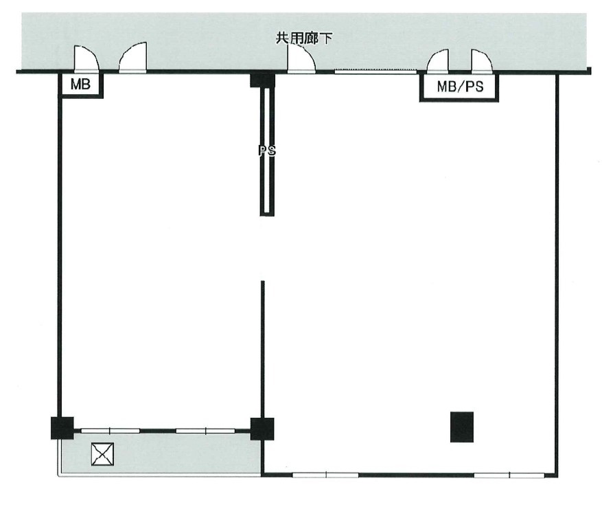
47.61 坪 (157.4m²)
※このサイトに記載がある賃貸条件は、敷金・保証金などの預かり金を除き、別途消費税がかかります。
メディコーポ都筑の建物概要
設備詳細
| 空調 | - |
|---|---|
| トイレ | - |
| 床仕様 | - |
| エレベータ | 1 基 |
| 駐車場設備 | - |
| その他 | SOHO/マンション / 24時間利用可 / スケルトン / クリニック / フリーレント / 神奈川賃料が10000円以下 |
部屋の雰囲気
メディコーポ都筑2階の賃貸オフィス・事務所に関するお問い合わせ
メディコーポ都筑について
メディコーポ都筑は、横浜市都筑区牛久保1丁目に位置しています。最寄り駅として横浜市グリーンライン「北山田駅」まで徒歩11分、同じく「センター北駅」まで徒歩15分、さらに横浜市ブルーライン「センター北駅」も利用可能な立地です。複数路線にアクセスできるため、さまざまなエリアからの通勤や移動にも対応できます。 建物はSOHOやマンションとしての利用が可能で、用途に応じた柔軟な使い方が想定できます。24時間利用ができるため、事業活動のスタイルに合わせた運用に適しています。オフィスや事業拠点としてはもちろん、住居兼事務所といった形態にも対応できる設備構成となっています。 このエリアは落ち着いた住宅街が広がっており、周辺には生活利便施設も点在しています。事務所利用の際には、静かな環境の中で業務に集中できるほか、都心へのアクセスも視野に入れた活動が可能です。ビジネスの中核拠点としても検討いただける建物です。 詳細はお問い合わせください。
メディコーポ都筑のこだわり
自分で探すより問い合わせる方が早いことがあります
WEB非公開物件があるから
オーナー様のご希望により「WEBでは非公開」にしている物件があります。 それらはWEBでいくら検索しても見つかりません。 先ずは条件などお知らせ頂けましたら非公開物件含め ピッタリのオフィスをご提案させて頂きます。 無理なお勧めはしておりませんので、お気軽にお問い合わせください。
対面でのご相談も受け付けております
ご来店も歓迎です
オフィス移転は社内・社外ともに非公開に行われることが殆どです。そのためアットオフィスでは、基本的に訪問によるコンサルティングを行っておりますが、ご来店の相談も歓迎です。お一人おひとりに親身にご対応させて頂きたい為、要予約とさせて頂いております。ご来店の際は先ずは下記よりご予約下さい。
都筑区エリアでメディコーポ都筑に似た条件の物件
読込中...
メディコーポ都筑と同じ最寄駅の物件
読込中...
| 取扱様態 | 仲介 |
|---|---|
| 取扱会社 | 株式会社 アットオフィス |