ブランシュ18ビル7階の賃貸情報
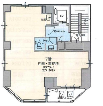
20.19 坪 (66.75m²)
※このサイトに記載がある賃貸条件は、敷金・保証金などの預かり金を除き、別途消費税がかかります。
ブランシュ18ビルの建物概要
設備詳細
| 空調 | - |
|---|---|
| トイレ | - |
| 床仕様 | - |
| エレベータ | - |
| 駐車場設備 | - |
| その他 | スケルトン |
ブランシュ18ビル7階の賃貸オフィス・事務所に関するお問い合わせ
ブランシュ18ビルについて
2023年竣工のブランシュ18ビルは、吉祥寺駅から徒歩1分のところにある賃貸オフィス・店舗です。RC造の地上9階建てで、新耐震基準をクリアしています。駅前から続く吉祥寺大通りを折れたところにある当ビルは各階正面にある大きな窓面が印象的で、視認性も良好です。貸室は、すべてスケルトンでの引き渡しとなります。店舗のイメージや用途に合わせた自由な内装が可能で、シンプルな形状をした貸室のためレイアウトもしやすいのが特徴です。2階から6階の各フロアは店舗・事務所仕様となっており、男女共用トイレ・給湯スペース・エレベーターが設備として備わっています。ビル周辺は業務上でもランチタイムでも何かと便利な施設が充実していて、コンビニ・飲食店・ドラッグストア・家電量販店・銀行が至近にあります。
ブランシュ18ビルのこだわり
自分で探すより問い合わせる方が早いことがあります
WEB非公開物件があるから
オーナー様のご希望により「WEBでは非公開」にしている物件があります。 それらはWEBでいくら検索しても見つかりません。 先ずは条件などお知らせ頂けましたら非公開物件含め ピッタリのオフィスをご提案させて頂きます。 無理なお勧めはしておりませんので、お気軽にお問い合わせください。
対面でのご相談も受け付けております
ご来店も歓迎です
オフィス移転は社内・社外ともに非公開に行われることが殆どです。そのためアットオフィスでは、基本的に訪問によるコンサルティングを行っておりますが、ご来店の相談も歓迎です。お一人おひとりに親身にご対応させて頂きたい為、要予約とさせて頂いております。ご来店の際は先ずは下記よりご予約下さい。
近くのエリアで探してみる
エリアでブランシュ18ビルに似た条件の物件
読込中...
ブランシュ18ビルと同じ最寄駅の物件
読込中...
| 取扱様態 | 仲介 |
|---|---|
| 取扱会社 | 株式会社 アットオフィス |