エキューラ神楽坂1階の賃貸情報
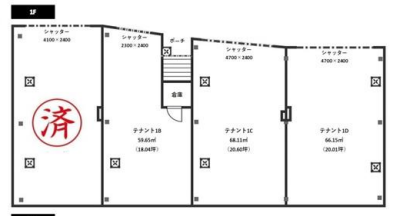
20.01 坪 (66.15m²)
※このサイトに記載がある賃貸条件は、敷金・保証金などの預かり金を除き、別途消費税がかかります。
エキューラ神楽坂の建物概要
設備詳細
| 空調 | - |
|---|---|
| トイレ | - |
| 床仕様 | - |
| エレベータ | - |
| 駐車場設備 | - |
| その他 | 新耐震基準 / エレベーター無 / スケルトン / 店舗可(飲食可) / 1階の物件 |
エキューラ神楽坂について
2022年竣工のエキューラ神楽坂は、神楽坂駅から徒歩1分の好立地物件です。他にも牛込神楽坂駅から徒歩6分、江戸川橋駅から徒歩10分と複数の駅を利用してアクセスできます。ホワイトとブラックのツートンカラーのスタイリッシュな外観が目を引き、近隣には近代的な神社として広く知られる赤城神社があるため、視認性も抜群です。また、コンビニや銀行、郵便局が周辺に点在しており、利便性の高いロケーションとなっています。貸室はスケルトンで、店舗やオフィスに合わせた自由な内装が可能です。
自分で探すより問い合わせる方が早いことがあります
WEB非公開物件があるから
オーナー様のご希望により「WEBでは非公開」にしている物件があります。 それらはWEBでいくら検索しても見つかりません。 先ずは条件などお知らせ頂けましたら非公開物件含め ピッタリのオフィスをご提案させて頂きます。 無理なお勧めはしておりませんので、お気軽にお問い合わせください。
対面でのご相談も受け付けております
ご来店も歓迎です
オフィス移転は社内・社外ともに非公開に行われることが殆どです。そのためアットオフィスでは、基本的に訪問によるコンサルティングを行っておりますが、ご来店の相談も歓迎です。お一人おひとりに親身にご対応させて頂きたい為、要予約とさせて頂いております。ご来店の際は先ずは下記よりご予約下さい。
近くのエリアで探してみる
市ヶ谷/神楽坂/飯田橋エリアでエキューラ神楽坂に似た条件の物件
読込中...
エキューラ神楽坂と同じ最寄駅の物件
読込中...
| 取扱様態 | 仲介 |
|---|---|
| 取扱会社 | 株式会社 アットオフィス |