そうめい堂ビル2階の賃貸情報
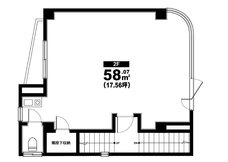
17.56 坪 (58.04m²)
※このサイトに記載がある賃貸条件は、敷金・保証金などの預かり金を除き、別途消費税がかかります。
そうめい堂ビルの建物概要
設備詳細
| 空調 | - |
|---|---|
| トイレ | - |
| 床仕様 | - |
| エレベータ | - |
| 駐車場設備 | - |
| その他 | 新耐震基準 |
そうめい堂ビル2階の賃貸オフィス・事務所に関するお問い合わせ
そうめい堂ビルについて
青葉台4丁目に位置する「そうめい堂」は、1990年に竣工した鉄骨造のオフィスビルで、その耐震性に優れた構造が入居者の安全を約束します。神泉駅からわずか徒歩6分というアクセスの良さは、ビジネスの機動性を高める重要な要素です。 このビルの特筆すべき点は、男女共用のトイレ設備と、各オフィスごとに設けられた個別空調システムです。これにより、快適な職場環境が保たれ、従業員一人ひとりが最適な温度で仕事に集中できるように配慮されています。また、大きな窓からは自然光がたっぷりと射し込み、開放感あふれるオフィス空間を提供しています。 立地に関しても、住宅街に位置しながら大通りにも容易にアクセスできる点が魅力的です。ビジネスだけでなく、日常の利便性も高い地域と言えるでしょう。周辺にはトヨタや高層マンションが立ち並ぶなど、発展を遂げるエリアであり、今後の価値上昇も期待される地域です。 青葉台エリアは、その住環境の良さと商業施設の充実により、多くのビジネスマンに選ばれています。そうめい堂は、この地でビジネスを展開する企業にとって最適な拠点と言えるでしょう。耐震性に優れた安全な建物、快適なオフィス環境、そして抜群のロケーション。これらの要素が組み合わさることで、ビジネスの成功をサポートします。 また、地域全体としての相場感を見ると、青葉台は企業のオフィス需要が高まる中で、その価値がさらに高まっています。そうめい堂は、この地における価値ある投資対象とも言えるでしょう。企業が新たなビジネス拠点を検討する際には、地域の発展性とともに、建物自体の品質と機能性を考慮することが重要です。そうめい堂は、これらの条件を高いレベルで満たしており、ビジネスの可能性を広げるための理想的な場所です。 このように、そうめい堂はただのオフィスビルでなく、企業の成長を促進し、従業員にとって快適な職場を提供する環境を備えています。青葉台という地のポテンシャルとともに、ビジネスの未来に大きな一歩を踏み出すための選択肢として高く評価されています。
そうめい堂ビルのこだわり
自分で探すより問い合わせる方が早いことがあります
WEB非公開物件があるから
オーナー様のご希望により「WEBでは非公開」にしている物件があります。 それらはWEBでいくら検索しても見つかりません。 先ずは条件などお知らせ頂けましたら非公開物件含め ピッタリのオフィスをご提案させて頂きます。 無理なお勧めはしておりませんので、お気軽にお問い合わせください。
対面でのご相談も受け付けております
ご来店も歓迎です
オフィス移転は社内・社外ともに非公開に行われることが殆どです。そのためアットオフィスでは、基本的に訪問によるコンサルティングを行っておりますが、ご来店の相談も歓迎です。お一人おひとりに親身にご対応させて頂きたい為、要予約とさせて頂いております。ご来店の際は先ずは下記よりご予約下さい。
近くのエリアで探してみる
目黒/中目黒/青葉台エリアでそうめい堂ビルに似た条件の物件
読込中...
そうめい堂ビルと同じ最寄駅の物件
読込中...
| 取扱様態 | 仲介 |
|---|---|
| 取扱会社 | 株式会社 アットオフィス |