カルム石田2階の賃貸情報
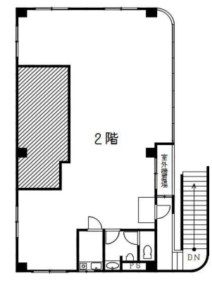
28.71 坪 (94.92m²)
440,000円 (坪:15,325 円)
※このサイトに記載がある賃貸条件は、敷金・保証金などの預かり金を除き、別途消費税がかかります。
カルム石田の建物概要
設備詳細
| 空調 | 個別空調 |
|---|---|
| トイレ | 男女別トイレ室内 |
| 床仕様 | - |
| エレベータ | - |
| 駐車場設備 | - |
| その他 | - |
カルム石田2階の賃貸オフィス・事務所に関するお問い合わせ
カルム石田について
カルム石田は、新宿区新宿5丁目に位置する、1992年竣工の現代的なオフィスビルです。このビルの最大の魅力は、駅近であることと、その立地によるアクセスの良さです。東新宿駅からわずか徒歩5分、新宿三丁目駅からは徒歩8分と、都心へのスムーズな移動を可能にする絶好の立地条件を誇ります。このように、ビジネスの中心地にあって、非常にアクセスしやすい位置にあるため、企業にとって理想的なオフィススペースと言えるでしょう。 建物自体は、鉄筋コンクリート造の4階建てで、耐震性にも優れているため、安心してビジネスを行うことができます。外観はタイル張りでシンプルながらも、洗練されたデザインが特徴です。建物内は階段で移動する構造となっており、基準階は約42坪の広さを提供しています。 周辺環境もまた、カルム石田の大きな魅力の一つです。徒歩1分の場所にコンビニがあり、さらに徒歩圏内には飲食店やカーシェアリングスポット、フレッシュネスバーガー新宿6丁目店などがあります。これらの設備は、日々の業務において非常に便利です。また、ビルの位置する通りは車通りが少なく、歩行者や自転車に優しい環境であるため、働く人々にとって快適な周辺環境を提供しています。 カルム石田は、その立地の良さ、利便性、そして快適な労働環境を提供することで、ビジネスの成長を支える理想的なオフィスビルです。新宿区新宿というビジネスの中心地に位置しながら、落ち着いた環境を兼ね備えており、企業が求めるあらゆる要素を満たしています。カルム石田で、あなたのビジネスを次のレベルへと押し上げましょう。
カルム石田のこだわり
自分で探すより問い合わせる方が早いことがあります
WEB非公開物件があるから
オーナー様のご希望により「WEBでは非公開」にしている物件があります。 それらはWEBでいくら検索しても見つかりません。 先ずは条件などお知らせ頂けましたら非公開物件含め ピッタリのオフィスをご提案させて頂きます。 無理なお勧めはしておりませんので、お気軽にお問い合わせください。
対面でのご相談も受け付けております
ご来店も歓迎です
オフィス移転は社内・社外ともに非公開に行われることが殆どです。そのためアットオフィスでは、基本的に訪問によるコンサルティングを行っておりますが、ご来店の相談も歓迎です。お一人おひとりに親身にご対応させて頂きたい為、要予約とさせて頂いております。ご来店の際は先ずは下記よりご予約下さい。
新宿/西新宿エリアでカルム石田に似た条件の物件
読込中...
カルム石田と同じ最寄駅の物件
読込中...
| 取扱様態 | 仲介 |
|---|---|
| 取扱会社 | 株式会社 アットオフィス |