※このサイトに記載がある賃貸条件は、敷金・保証金などの預かり金を除き、別途消費税がかかります。
物件情報
設備詳細
| 空調 | 個別空調 |
|---|---|
| トイレ | - |
| 床仕様 | - |
| エレベータ | 1 基 |
| 駐車場設備 | - |
| その他 | オートロック / SOHO/マンション / 新耐震基準 |
エクセルシオ原宿ビルの賃貸オフィス・事務所に関するお問い合わせ
エクセルシオ原宿ビルについて
エクセルシオ原宿ビルは、東京都渋谷区千駄ヶ谷3丁目に位置する、1989年に竣工された耐震基準に適合したマンションタイプの賃貸オフィスビルです。このビルは、北参道駅からわずか徒歩3分という非常に優れた立地にあり、原宿駅や他の複数の駅からもアクセスが可能で、3駅以上を利用できる交通の利便性を誇ります。 エクセルシオ原宿ビルの最大の魅力は、閑静な住宅街に位置しながらも、周辺にはコンビニやカフェなどの便利な施設が充実しており、ビジネスとプライベートの両方において最適な環境を提供している点です。ビル内には月極駐車場があり、自動車を利用するテナントにも配慮されています。 このビルの基準階面積は200坪を超える大規模な設計で、各オフィスは約30-40坪の広さがあり、給湯器、冷暖房、トイレ、浴室、バルコニーなどの設備が整っています。リニューアルされたエアコンや給湯器などの設備は、快適なオフィス環境を提供します。また、水色のタイル張りが特徴的な外観は、視認性が高く、ビルのブランドイメージを高めています。 渋谷区千駄ヶ谷エリアは、商業施設やオフィスビルが混在する活気あるエリアでありながら、閑静な住宅街も多く、落ち着いた環境で働くことが可能です。この地域の賃料相場と比較して、エクセルシオ原宿ビルは、その立地、規模、設備を考慮すると、非常にコストパフォーマンスの高い選択肢と言えます。特に、北参道や原宿といった人気エリアに近いにも関わらず、閑静な住環境を享受できるのは大きなメリットです。 ビジネスにおける利点としては、優れた交通アクセスにより、顧客訪問や出張の際の移動が容易であり、多様な業種の企業が集まるエリアなので、様々なビジネスチャンスが生まれやすい環境にあります。また、デザイナーズ物件としての特徴も持ち、オシャレなオフィス空間でクリエイティブな働き方が期待できるでしょう。 エクセルシオ原宿ビルは、立地、設備、デザインのすべてにおいてバランスが取れた賃貸オフィス物件です。ビジネスの拠点として、または新たなオフィスへの移転を検討される企業にとって、最適な選択肢の一つとなるでしょう。
エクセルシオ原宿ビルのこだわり
自分で探すより問い合わせる方が早いことがあります
WEB非公開物件があるから
オーナー様のご希望により「WEBでは非公開」にしている物件があります。 それらはWEBでいくら検索しても見つかりません。 先ずは条件などお知らせ頂けましたら非公開物件含め ピッタリのオフィスをご提案させて頂きます。 無理なお勧めはしておりませんので、お気軽にお問い合わせください。
対面でのご相談も受け付けております
ご来店も歓迎です
オフィス移転は社内・社外ともに非公開に行われることが殆どです。そのためアットオフィスでは、基本的に訪問によるコンサルティングを行っておりますが、ご来店の相談も歓迎です。お一人おひとりに親身にご対応させて頂きたい為、要予約とさせて頂いております。ご来店の際は先ずは下記よりご予約下さい。
募集終了のテナント区画
| 階数 | 坪数 | 賃料 + 共益費 | 敷金/礼金敷金 礼金 | 検討 |
|---|---|---|---|---|
| 1階 | 13.51坪 (44.66m²) | 募集終了 | - | - |
| 1階 | 13.51坪 (44.66m²) | 募集終了 | - | - |
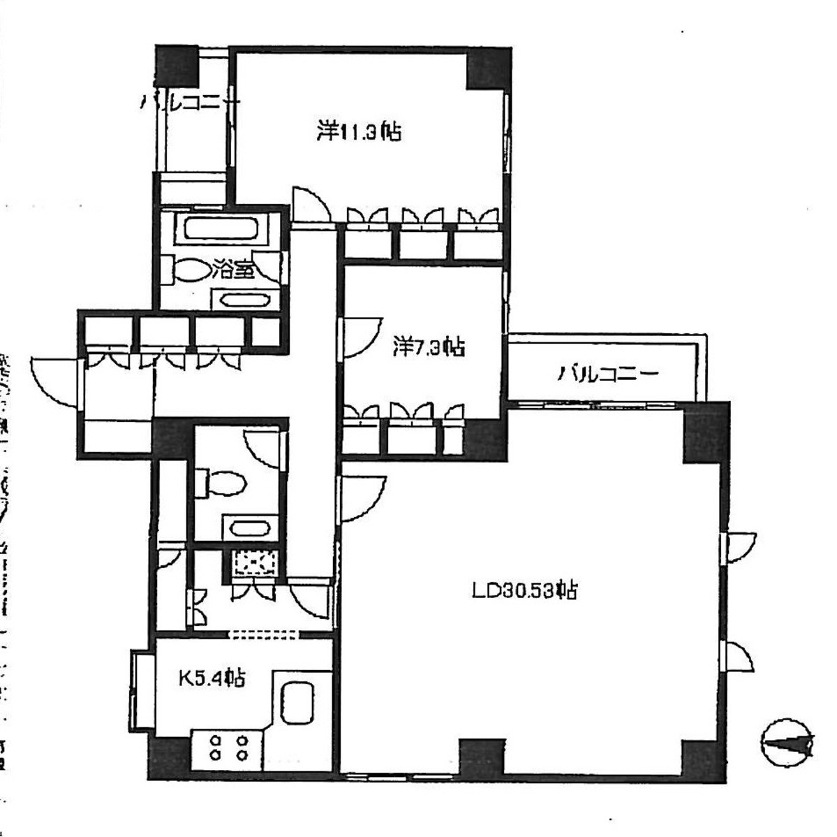
| 2階 | 38.72坪 (128m²) | 募集終了 | - | - |
| 4階 | 15.08坪 (49.85m²) | 募集終了 | - | - |
読込中...
表参道/外苑前エリアでエクセルシオ原宿ビルに似た条件の物件
読込中...
| 取扱様態 | 仲介 |
|---|---|
| 取扱会社 | 株式会社 アットオフィス |