※このサイトに記載がある賃貸条件は、敷金・保証金などの預かり金を除き、別途消費税がかかります。
物件情報
設備詳細
| 空調 | 個別空調 |
|---|---|
| トイレ | 男女別トイレ / 男女別トイレ室内 |
| 床仕様 | - |
| エレベータ | 1 基 |
| 駐車場設備 | - |
| その他 | 新耐震基準 / 24時間利用可 |
アカデミービルの賃貸オフィス・事務所に関するお問い合わせ
アカデミービルについて
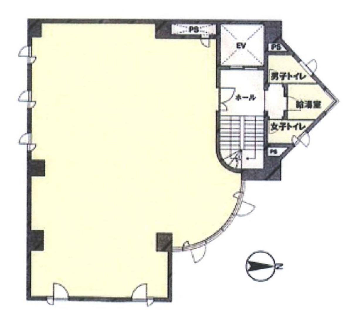
渋谷区千駄ヶ谷に位置する「アカデミービル」は、ビジネスの拠点として非常に魅力的な賃貸オフィス物件です。このエリアは、代々木公園の緑豊かな自然に囲まれながらも、東京のビジネスの中心地に近いという、ビジネスとプライベートのバランスを重視する企業にとって理想的な立地条件を備えています。 「アカデミービル」の最大の特徴は、そのアクセスの良さにあります。東京メトロ副都心線「北参道駅」から徒歩3分、JR山手線「原宿駅」から徒歩9分、そして「千駄ヶ谷駅」から徒歩11分と、3つの駅が徒歩圏内にあり、多方面からのアクセスが非常に容易です。これにより、ビジネスの利便性が格段に向上します。 物件自体は1988年竣工の新耐震基準に適合した建物で、基準階面積は約40坪となっています。明るく開放的な室内は、曲線を描く窓面が特徴的で、自然光がたっぷりと射し込みます。また、男女別のトイレが室外に設置されており、オフィス内はOAフロアによる配線管理が行える設計となっています。 デザイン面でも、ピンク色の個性的な外観は視認性が高く、企業イメージの向上にも寄与するでしょう。エレベーターは1基設置されており、5階建てのビル全体としても非常に機能的です。 周辺環境も非常に魅力的で、代々木公園が近くにあるため、オフィスでの疲れを癒やす散歩やランチタイムの気分転換に最適です。また、エリア内には中小規模のオフィスビルが点在しており、比較的静かで落ち着いた働きやすい環境が整っています。 渋谷区千駄ヶ谷という立地は、都心のビジネスエリアとしては比較的リーズナブルな賃料設定が期待できる一方で、アクセスの良さや代々木公園の存在など、ビジネスの発展と働く人々のQOL(クオリティ・オブ・ライフ)の両面を充実させる要素をバランス良く備えています。 「アカデミービル」は、これらの特長を生かし、新しいビジネスの拠点として、さらには企業イメージの向上にも貢献することでしょう。立地、設備、デザイン、環境と、全てにおいてバランスの取れたこの物件は、多くの企業にとって魅力的な選択肢の一つとなるに違いありません。
自分で探すより問い合わせる方が早いことがあります
WEB非公開物件があるから
オーナー様のご希望により「WEBでは非公開」にしている物件があります。 それらはWEBでいくら検索しても見つかりません。 先ずは条件などお知らせ頂けましたら非公開物件含め ピッタリのオフィスをご提案させて頂きます。 無理なお勧めはしておりませんので、お気軽にお問い合わせください。
対面でのご相談も受け付けております
ご来店も歓迎です
オフィス移転は社内・社外ともに非公開に行われることが殆どです。そのためアットオフィスでは、基本的に訪問によるコンサルティングを行っておりますが、ご来店の相談も歓迎です。お一人おひとりに親身にご対応させて頂きたい為、要予約とさせて頂いております。ご来店の際は先ずは下記よりご予約下さい。
募集終了のテナント区画
| 階数 | 坪数 | 賃料 + 共益費 | 敷金/礼金敷金 礼金 | 検討 |
|---|---|---|---|---|
| B1階 | 37.36坪 (123.52m²) | 募集終了 | - | - |
| 1階 | 21.23坪 (70.21m²) | 募集終了 | - | - |
| 5階 | 17.48坪 (57.79m²) | 募集終了 | - | - |
読込中...
表参道/外苑前エリアでアカデミービルに似た条件の物件
読込中...
| 取扱様態 | 仲介 |
|---|---|
| 取扱会社 | 株式会社 アットオフィス |