上板橋駅前ビル2-3階の賃貸情報
69.74 坪 (230.57m²)
※このサイトに記載がある賃貸条件は、敷金・保証金などの預かり金を除き、別途消費税がかかります。
上板橋駅前ビルの建物概要
設備詳細
| 空調 | - |
|---|---|
| トイレ | - |
| 床仕様 | - |
| エレベータ | - |
| 駐車場設備 | - |
| その他 | スケルトン / クリニック / 東京賃料が坪11000円以下 / 天井高3m以上 / 店舗可(飲食可) |
上板橋駅前ビル2-3階の賃貸オフィス・事務所に関するお問い合わせ
上板橋駅前ビルについて
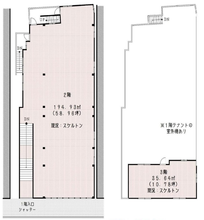
上板橋駅前ビルは、上板橋駅から徒歩2分の地上3階建て賃貸オフィス・店舗ビルです。1965年に竣工されました。周辺住民の生活道路であるときわ通りに面した当ビルは、視認性・アクセス性ともに良好なロケーションです。貸室は2階と3階の一括貸しで、計69.74坪の広さがあります。天井高も2.6〜3.7mと高く、開放感もあるフロアです。用途としては、飲食店を含む各種店舗・クリニック全般・美容室・エステ・介護などで利用できます。スケルトンでの引き渡しとなりますので、店舗のイメージや使い勝手に合わせた自由なレイアウトが可能です。当ビル周辺は便利な商業施設が充実しており、コンビニや飲食店、ドラッグストア、スーパー、銀行、郵便局など、ランチタイムでもビジネスでも使いやすい周辺環境となっています。
自分で探すより問い合わせる方が早いことがあります
WEB非公開物件があるから
オーナー様のご希望により「WEBでは非公開」にしている物件があります。 それらはWEBでいくら検索しても見つかりません。 先ずは条件などお知らせ頂けましたら非公開物件含め ピッタリのオフィスをご提案させて頂きます。 無理なお勧めはしておりませんので、お気軽にお問い合わせください。
対面でのご相談も受け付けております
ご来店も歓迎です
オフィス移転は社内・社外ともに非公開に行われることが殆どです。そのためアットオフィスでは、基本的に訪問によるコンサルティングを行っておりますが、ご来店の相談も歓迎です。お一人おひとりに親身にご対応させて頂きたい為、要予約とさせて頂いております。ご来店の際は先ずは下記よりご予約下さい。
板橋区エリアで上板橋駅前ビルに似た条件の物件
読込中...
上板橋駅前ビルと同じ最寄駅の物件
読込中...
| 取扱様態 | 仲介 |
|---|---|
| 取扱会社 | 株式会社 アットオフィス |