合人社江戸日本橋の賃料条件
| 階数 | 坪数 | 賃料 + 共益費 | 敷金/礼金敷金 礼金 | 検討 |
|---|---|---|---|---|
| 4階 | 64.72坪 (213.97m²) | お問合せ下さい (坪:-) | 相談 無相談/無 | |
| 5階 | 64.72坪 (214.11m²) | お問合せ下さい (坪:-) | 相談 無相談/無 | |
| 11階 | 64.72坪 (213.97m²) | お問合せ下さい (坪:-) | 相談 無相談/無 |
※このサイトに記載がある賃貸条件は、敷金・保証金などの預かり金を除き、別途消費税がかかります。
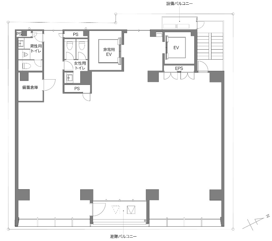
物件情報
設備詳細
| 空調 | 個別空調 |
|---|---|
| トイレ | 男女別トイレ室内 |
| 床仕様 | - |
| エレベータ | 1 基 |
| 駐車場設備 | - |
| その他 | 新耐震基準 / 天井高3m以上 / セットアップ |
合人社江戸日本橋の賃貸オフィス・事務所に関するお問い合わせ
合人社江戸日本橋について
東京都中央区日本橋に位置する「owns日本橋」は、ビジネスの拠点として理想的な賃貸オフィスビルです。日本橋駅から徒歩2分、東京駅からも徒歩9分というアクセスの良さが魅力で、都心の主要ビジネスエリアへのアクセスが非常に便利です。特に、銀座線やJR山手線の利用が可能なため、社員の通勤はもちろん、クライアントの来訪にも大変便利です。 この物件は地上13階建てで、2024年11月に竣工予定の最新鋭のビルです。新耐震基準を満たした鉄骨造(S造)で、地震に対する安全性も万全。基準階坪数は64.72坪、天井高は3,265mmと開放的な空間を提供しています。さらに、エレベーターが2基設置されており、ビル内の移動もスムーズです。 「owns日本橋」には、現代のビジネスニーズに応える充実した設備が整っています。情報通信設備として光ケーブルと共用WiFiが完備されており、1階、2階、3階、そして屋上で利用可能です。個別空調により、各オフィスが快適な環境を自由に調整できます。セキュリティも機械警備や多段階セキュリティが施されており、1階には顔認証システムも併設されているため、安心して業務に集中できる環境が整っています。 さらに、3階には共用会議室やスモールオフィスが用意されており、柔軟なビジネスニーズに応じた利用が可能です。屋上にはテラスがあり、リフレッシュスペースとして利用できます。また、敷地外には6台分の駐車場も完備されており、車でのアクセスも安心です。 日本橋エリアは、江戸時代から続く歴史ある商業地区であり、現在も多くの企業が集まるビジネスの中心地です。周辺には金融機関や商業施設、飲食店が立ち並び、ビジネスを支える環境が整っています。また、文化施設や観光スポットも豊富で、ビジネスパートナーとの交流の場としても最適です。 このように、「owns日本橋」は、立地、設備、安全性、利便性のすべてにおいて優れた賃貸オフィスビルです。新たなビジネスのスタートやオフィスの移転を検討されている方には、ぜひおすすめしたい物件です。
合人社江戸日本橋のこだわり
自分で探すより問い合わせる方が早いことがあります
WEB非公開物件があるから
オーナー様のご希望により「WEBでは非公開」にしている物件があります。 それらはWEBでいくら検索しても見つかりません。 先ずは条件などお知らせ頂けましたら非公開物件含め ピッタリのオフィスをご提案させて頂きます。 無理なお勧めはしておりませんので、お気軽にお問い合わせください。
対面でのご相談も受け付けております
ご来店も歓迎です
オフィス移転は社内・社外ともに非公開に行われることが殆どです。そのためアットオフィスでは、基本的に訪問によるコンサルティングを行っておりますが、ご来店の相談も歓迎です。お一人おひとりに親身にご対応させて頂きたい為、要予約とさせて頂いております。ご来店の際は先ずは下記よりご予約下さい。
募集終了のテナント区画
| 階数 | 坪数 | 賃料 + 共益費 | 敷金/礼金敷金 礼金 | 検討 |
|---|---|---|---|---|
| 1-2階 | 63.14坪 (208.74m²) | 募集終了 | - | - |
| 6階 | 64.72坪 (213.97m²) | 募集終了 | - | - |
| 7階 | 64.72坪 (213.97m²) | 募集終了 | - | - |
| 8階 | 64.72坪 (213.97m²) | 募集終了 | - | - |
| 9階 | 64.72坪 (213.97m²) | 募集終了 | - | - |
| 10階 | 64.72坪 (213.97m²) | 募集終了 | - | - |
| 12階 | 64.72坪 (213.97m²) | 募集終了 | - | - |
| 13階 | 64.72坪 (213.97m²) | 募集終了 | - | - |
読込中...
近くのエリアで探してみる
八重洲/日本橋/三越前エリアで合人社江戸日本橋に似た条件の物件
読込中...
| 取扱様態 | 仲介 |
|---|---|
| 取扱会社 | 株式会社 アットオフィス |