トレリ青葉台2階の賃貸情報
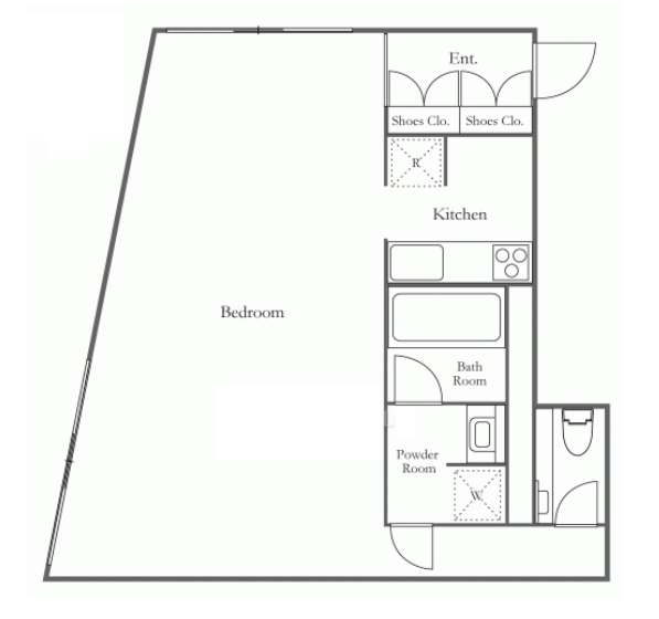
19.26 坪 (63.7m²)
※このサイトに記載がある賃貸条件は、敷金・保証金などの預かり金を除き、別途消費税がかかります。
トレリ青葉台の建物概要
設備詳細
| 空調 | 個別空調 |
|---|---|
| トイレ | 男女共用トイレ・室内 |
| 床仕様 | - |
| エレベータ | - |
| 駐車場設備 | - |
| その他 | 光ファイバー / デザイナーズ / SOHO可 / 保証金・敷金+礼金が3か月以下 |
トレリ青葉台について
トレリ青葉台は、目黒区青葉台2丁目に位置しており、京王電鉄井の頭線「神泉駅」から徒歩9分、同線「渋谷駅」から11分、東急田園都市線「池尻大橋駅」から12分の距離にあります。複数の駅が利用でき、渋谷エリアや池尻エリアへのアクセスにも対応しやすい立地です。建物は地上2階地下1階構造となっており、フロア構成を生かしたレイアウトや、用途に合わせた利用が可能です。外観・内装ともにデザイナーズ仕様となっており、独特の空間設計がなされています。光ファイバーが導入されているため、インターネット利用が前提となるオフィスや事業所としても検討いただけます。青葉台2丁目周辺は落ち着いた街並みが広がり、環境に配慮した拠点づくりを望まれる法人にも適した地域です。利用目的や業種に応じて、多様な使い方を検討できる建物です。詳細はお問い合わせください。
トレリ青葉台のこだわり
自分で探すより問い合わせる方が早いことがあります
WEB非公開物件があるから
オーナー様のご希望により「WEBでは非公開」にしている物件があります。 それらはWEBでいくら検索しても見つかりません。 先ずは条件などお知らせ頂けましたら非公開物件含め ピッタリのオフィスをご提案させて頂きます。 無理なお勧めはしておりませんので、お気軽にお問い合わせください。
対面でのご相談も受け付けております
ご来店も歓迎です
オフィス移転は社内・社外ともに非公開に行われることが殆どです。そのためアットオフィスでは、基本的に訪問によるコンサルティングを行っておりますが、ご来店の相談も歓迎です。お一人おひとりに親身にご対応させて頂きたい為、要予約とさせて頂いております。ご来店の際は先ずは下記よりご予約下さい。
近くのエリアで探してみる
目黒/中目黒/青葉台エリアでトレリ青葉台に似た条件の物件
読込中...
トレリ青葉台と同じ最寄駅の物件
読込中...
| 取扱様態 | 仲介 |
|---|---|
| 取扱会社 | 株式会社 アットオフィス |