リノス8番館1階の賃貸情報
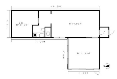
20.57 坪 (68m²)
※このサイトに記載がある賃貸条件は、敷金・保証金などの預かり金を除き、別途消費税がかかります。
リノス8番館の建物概要
設備詳細
| 空調 | - |
|---|---|
| トイレ | 男女共用トイレ・室内 |
| 床仕様 | - |
| エレベータ | 1 基 |
| 駐車場設備 | 空無 |
| その他 | 店舗可(飲食不可) / 神奈川賃料が10000円以下 / 1階の物件 |
リノス8番館1階の賃貸オフィス・事務所に関するお問い合わせ
リノス8番館について
リノス8番館は、横浜市青葉区青葉台1丁目に位置しています。東急田園都市線「青葉台駅」から徒歩2分という駅近に加え、「藤が丘駅」まで徒歩11分、「田奈駅」へも徒歩17分と、複数駅へのアクセスが可能な立地となっています。周辺は商業施設や住宅が混在するエリアで、事業拠点としてだけでなく来客や従業員の動線も考慮しやすい環境です。駅前周辺の店舗、サービス施設、生活利便施設を利用しやすい点も、日々の事業活動において役立てることができます。 また、住所が青葉区青葉台1丁目にあるため、地域に根ざした事業展開を検討している法人や、近隣住民を対象としたサービス業といった用途にも利用が想定されます。建物の名称である「リノス8番館」は、地域内での案内や郵送物の管理などにも活用しやすい明確な名称です。現地の詳細や募集区画の情報など、詳細はお問い合わせください。
自分で探すより問い合わせる方が早いことがあります
WEB非公開物件があるから
オーナー様のご希望により「WEBでは非公開」にしている物件があります。 それらはWEBでいくら検索しても見つかりません。 先ずは条件などお知らせ頂けましたら非公開物件含め ピッタリのオフィスをご提案させて頂きます。 無理なお勧めはしておりませんので、お気軽にお問い合わせください。
対面でのご相談も受け付けております
ご来店も歓迎です
オフィス移転は社内・社外ともに非公開に行われることが殆どです。そのためアットオフィスでは、基本的に訪問によるコンサルティングを行っておりますが、ご来店の相談も歓迎です。お一人おひとりに親身にご対応させて頂きたい為、要予約とさせて頂いております。ご来店の際は先ずは下記よりご予約下さい。
青葉区エリアでリノス8番館に似た条件の物件
読込中...
リノス8番館と同じ最寄駅の物件
読込中...
| 取扱様態 | 仲介 |
|---|---|
| 取扱会社 | 株式会社 アットオフィス |