※このサイトに記載がある賃貸条件は、敷金・保証金などの預かり金を除き、別途消費税がかかります。
物件情報
設備詳細
| 空調 | - |
|---|---|
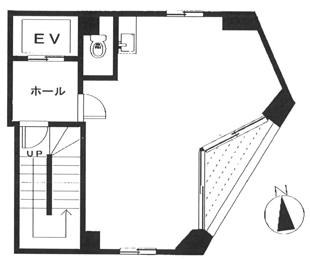
| トイレ | 男女共用トイレ・室内 |
| 床仕様 | - |
| エレベータ | 1 基 |
| 駐車場設備 | - |
| その他 | クリニック / 東京賃料が坪11000円以下 |
飯田ビルの賃貸オフィス・事務所に関するお問い合わせ
飯田ビルについて
飯田ビルは、東京都豊島区南大塚2丁目に位置し、大塚駅からわずか徒歩2分の距離にあるオフィス賃貸物件です。このビルは1980年に竣工し、鉄筋コンクリート造りの耐震性に優れた建築です。近代的な設備として、エレベーターが1基設置されており、ビル内の移動をスムーズにします。 ビル内にはミニキッチンが付属しており、常時湯水の利用が可能であることがテナントにとって大きな利点です。また、男女共用トイレが設置されており、日常的な利便性が考慮されています。ビルの用途はオフィスのほか、店舗やクリニックなど多岐にわたる業種に対応可能です。 立地に関しては、大通りの交差点に位置しており、周辺の視認性が高くなっています。これにより、ビルへのアクセスが容易であり、ビジネスにおける顧客の来訪もスムーズです。さらに、ビルは駅前商業地にあるため、周辺には飲食店やコンビニ、銀行などが集まっており、日常の業務や急な用事にも迅速に対応できる環境が整っています。 飯田ビルの最大の魅力は、その絶好のロケーションにあります。大塚駅からの近さは通勤やビジネスの面で大きなメリットとなり、また新大塚駅からも徒歩7分というアクセスの良さから、多方面からのアクセスの利便性を享受できます。このように、飯田ビルは立地、設備、用途の柔軟性を兼ね備え、多様なビジネスニーズに対応可能な物件として、高いポテンシャルを備えています。 このビルは、特に小規模から中規模の企業にとって最適な環境を提供し、都心でのビジネス展開を計画している企業にとっては見逃せない選択肢と言えるでしょう。その立地の利便性と機能性を高く評価し、長期的なビジネス基盤として検討する価値があります。
飯田ビルのこだわり
自分で探すより問い合わせる方が早いことがあります
WEB非公開物件があるから
オーナー様のご希望により「WEBでは非公開」にしている物件があります。 それらはWEBでいくら検索しても見つかりません。 先ずは条件などお知らせ頂けましたら非公開物件含め ピッタリのオフィスをご提案させて頂きます。 無理なお勧めはしておりませんので、お気軽にお問い合わせください。
対面でのご相談も受け付けております
ご来店も歓迎です
オフィス移転は社内・社外ともに非公開に行われることが殆どです。そのためアットオフィスでは、基本的に訪問によるコンサルティングを行っておりますが、ご来店の相談も歓迎です。お一人おひとりに親身にご対応させて頂きたい為、要予約とさせて頂いております。ご来店の際は先ずは下記よりご予約下さい。
募集終了のテナント区画
| 階数 | 坪数 | 賃料 + 共益費 | 敷金/礼金敷金 礼金 | 検討 |
|---|---|---|---|---|
| 3階 | 13.44坪 (44.42m²) | 募集終了 | - | - |
| 4階 | 13.44坪 (44.43m²) | 募集終了 | - | - |
| 4階 | 30.21坪 (99.87m²) | 募集終了 | - | - |
| 5階 | 13.44坪 (44.43m²) | 募集終了 | - | - |
読込中...
駒込/巣鴨/大塚エリアで飯田ビルに似た条件の物件
読込中...
| 取扱様態 | 仲介 |
|---|---|
| 取扱会社 | 株式会社 アットオフィス |