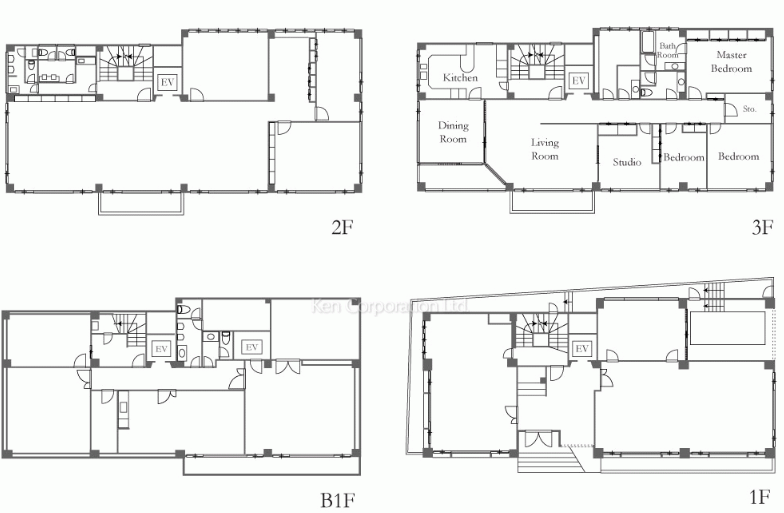
JESCO目黒2ビルB1-3階の賃貸情報
326.83 坪 (1080.42m²)
5,556,110円 (坪:17,000 円)
※このサイトに記載がある賃貸条件は、敷金・保証金などの預かり金を除き、別途消費税がかかります。
JESCO目黒2ビルの建物概要
設備詳細
| 空調 | 個別空調 |
|---|---|
| トイレ | - |
| 床仕様 | - |
| エレベータ | - |
| 駐車場設備 | 機械式駐車場 / 平置き駐車場 |
| その他 | 一棟貸し / 1階の物件 / 居抜き |
部屋の雰囲気
JESCO目黒2ビルB1-3階の賃貸オフィス・事務所に関するお問い合わせ
JESCO目黒2ビルについて
JESCO目黒2は、JR山手線の車窓からも視認性の高い、間口20mの角地に位置する魅力的な物件です。レンガ造りの外観からは重厚感が漂い、訪れる人々に強い印象を与えることができます。このビルは、地上3階建てと地下1階を備えた鉄筋コンクリート造で、しっかりとした構造が長年にわたる安心感を提供します。 1984年11月に竣工したこのビルは、目黒駅から徒歩6分、五反田駅からも徒歩7分という優れたアクセスを誇ります。多くの人々が行き交うエリアに位置しているため、様々な用途に対応できる柔軟性があります。さらに、駐車場が平置きで利用可能であるため、車でのアクセスも容易です。 JESCO目黒2は、交通の便が良く、目黒や五反田といった主要エリアへのアクセスも便利なため、利用者にとって絶好のロケーションです。この立地と建物の魅力を最大限に活かし、様々な活動を行う拠点として、ぜひご検討ください。
JESCO目黒2ビルのこだわり
自分で探すより問い合わせる方が早いことがあります
WEB非公開物件があるから
オーナー様のご希望により「WEBでは非公開」にしている物件があります。 それらはWEBでいくら検索しても見つかりません。 先ずは条件などお知らせ頂けましたら非公開物件含め ピッタリのオフィスをご提案させて頂きます。 無理なお勧めはしておりませんので、お気軽にお問い合わせください。
対面でのご相談も受け付けております
ご来店も歓迎です
オフィス移転は社内・社外ともに非公開に行われることが殆どです。そのためアットオフィスでは、基本的に訪問によるコンサルティングを行っておりますが、ご来店の相談も歓迎です。お一人おひとりに親身にご対応させて頂きたい為、要予約とさせて頂いております。ご来店の際は先ずは下記よりご予約下さい。
品川/大崎/大井エリアでJESCO目黒2ビルに似た条件の物件
読込中...
JESCO目黒2ビルと同じ最寄駅の物件
読込中...
| 取扱様態 | 仲介 |
|---|---|
| 取扱会社 | 株式会社 アットオフィス |