本郷センタービル7階の賃貸情報
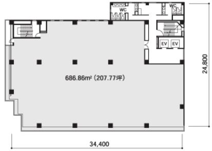
207.77 坪 (686.84m²)
※このサイトに記載がある賃貸条件は、敷金・保証金などの預かり金を除き、別途消費税がかかります。
本郷センタービルの建物概要
設備詳細
| 空調 | 個別空調 |
|---|---|
| トイレ | - |
| 床仕様 | OA対応床(フリーアクセス) |
| エレベータ | 2 基 |
| 駐車場設備 | 空有 |
| その他 | 大型ビル / 管理人常駐 / 光ファイバー / 新耐震基準 |
本郷センタービル7階の賃貸オフィス・事務所に関するお問い合わせ
本郷センタービルについて
本郷センタービルは東京都文京区本郷に位置し、1990年に竣工した7階建てのオフィスビルです。基準階は約207坪で、フロアによって分割区画の設定も可能であるため、様々な企業規模に対応できる柔軟性を持っています。ビル全体には最新の耐震基準が適用されており、安全性が高いことが保証されています。 ビル内には2基のエレベーターが設置されており、ビジネスの効率化をサポートします。また、30台収容可能な駐車場が併設されている点も、来客の多い企業にとっては非常に便利な特徴です。1階には銀行の支店が入居しており、日常の金融取引においても利便性が高いです。 オフィスフロアはOAフロアを採用しており、ケーブル類の管理が容易であり、オフィスのカスタマイズがしやすい環境が整っています。個別空調システムにより、各テナントが自由に温度管理ができ、快適なオフィス環境を保つことが可能です。 立地においても、本郷センタービルは非常に魅力的です。最寄りの本郷三丁目駅から徒歩わずか2分というアクセスの良さで、ビジネスの拠点としての利便性が高いです。周辺には多くのオフィスビルが立ち並び、ビジネスの中心地としての活気があります。また、近隣にはスーパーや飲食店が充実しており、社員の日常生活においても不自由がありません。 セキュリティ面では、機械警備を導入しており、24時間体制で安全が保たれています。これにより、テナント企業は安心してビジネスを行うことができます。 本郷センタービルは、その高い安全性、利便性、柔軟なレイアウトが可能なオフィス空間と共に、ビジネスの成功をサポートする理想的なオフィスビルです。文京区での新たなビジネス拠点をお探しの企業にとって、最適な選択肢の一つであることは間違いありません。
自分で探すより問い合わせる方が早いことがあります
WEB非公開物件があるから
オーナー様のご希望により「WEBでは非公開」にしている物件があります。 それらはWEBでいくら検索しても見つかりません。 先ずは条件などお知らせ頂けましたら非公開物件含め ピッタリのオフィスをご提案させて頂きます。 無理なお勧めはしておりませんので、お気軽にお問い合わせください。
対面でのご相談も受け付けております
ご来店も歓迎です
オフィス移転は社内・社外ともに非公開に行われることが殆どです。そのためアットオフィスでは、基本的に訪問によるコンサルティングを行っておりますが、ご来店の相談も歓迎です。お一人おひとりに親身にご対応させて頂きたい為、要予約とさせて頂いております。ご来店の際は先ずは下記よりご予約下さい。
湯島/本郷/後楽園エリアで本郷センタービルに似た条件の物件
読込中...
本郷センタービルと同じ最寄駅の物件
読込中...
| 取扱様態 | 仲介 |
|---|---|
| 取扱会社 | 株式会社 アットオフィス |