大森プラザビルの賃料条件
| 階数 | 坪数 | 賃料 + 共益費 | 敷金/礼金敷金 礼金 | 検討 |
|---|---|---|---|---|
| 1階 | 35.74坪 (118.18m²) | お問合せ下さい (坪:-) | 10ヶ月 無10ヶ月/無 | |
| 4階 | 44.32坪 (146.54m²) | お問合せ下さい (坪:-) | 10ヶ月 無10ヶ月/無 |
※このサイトに記載がある賃貸条件は、敷金・保証金などの預かり金を除き、別途消費税がかかります。
お電話でもお気軽にお問い合わせください
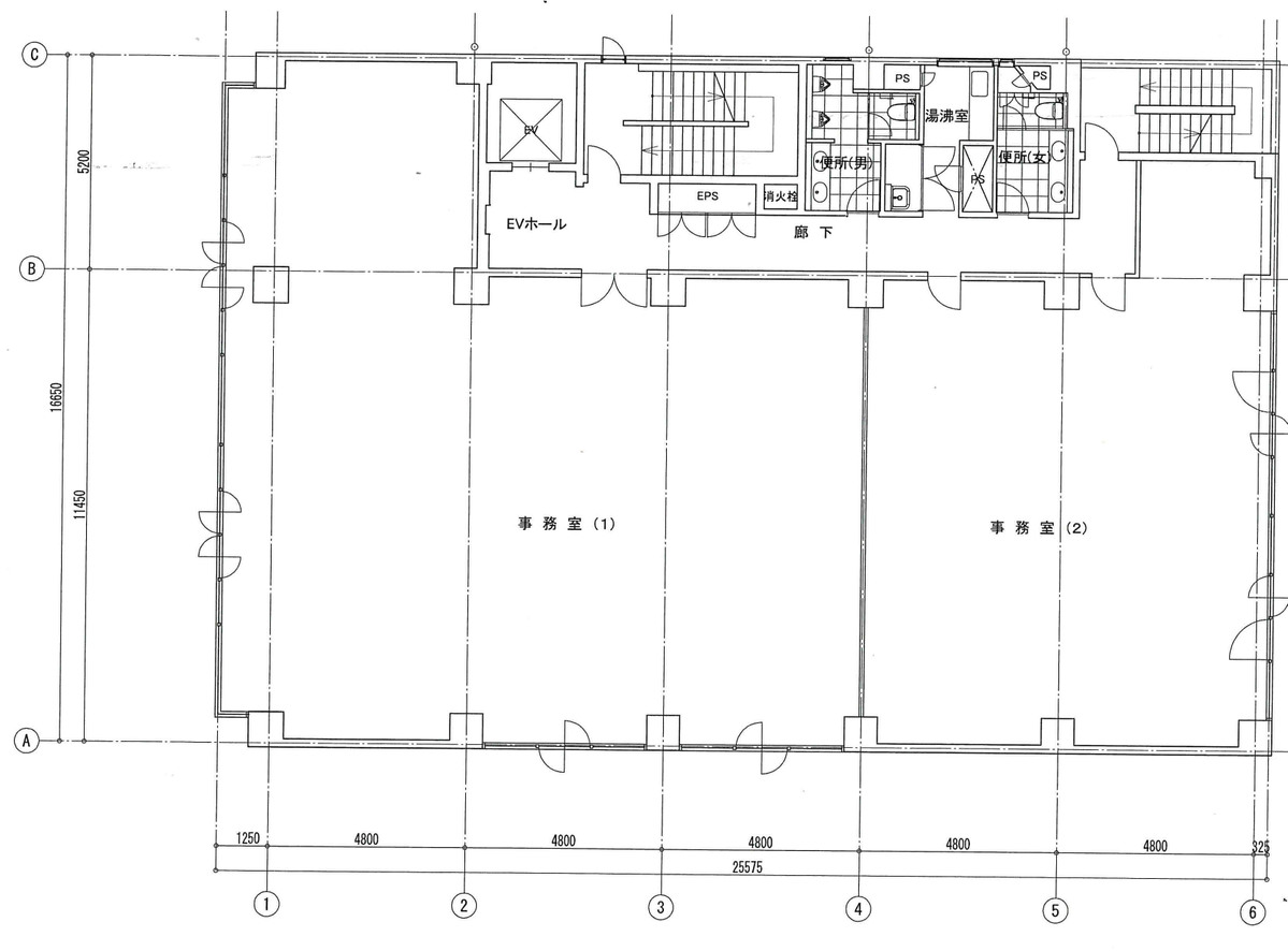
物件情報
設備詳細
| 空調 | - |
|---|---|
| トイレ | - |
| 床仕様 | - |
| エレベータ | 1 基 |
| 駐車場設備 | 空有 |
| その他 | 機械警備 / 新耐震基準 / 1階の物件 |
アクセスマップ
大森プラザビルは、東京都品川区南大井3丁目に位置し、1989年に竣工された耐震基準に適合したオフィスビルです。このビルは、1988年の新耐震基準施工後に完成した物件であり、安全性に優れております。6階建てのこのビルは、基準階約101坪の賃貸オフィススペースを提供し、個別空調設備を完備しており、テナントの快適なオフィス環境を保証します。また、ビル内には月極駐車場があり、1基のエレベーターが装備されており、セキュリティは機械警備によって確保されています。 立地においては、大森プラザビルは大森駅から徒歩4分、大森海岸駅から徒歩5分という駅近物件であり、交通の利便性が非常に高いです。また、周辺にはオフィスビルやマンションが立ち並び、向かいには「大森ベルポート」があり、飲食店や郵便局などの生活に必要な施設が充実しております。このように、大森プラザビルは、ビジネスだけでなく、生活面でも利便性が高い立地条件を備えています。 設備面では、大森プラザビルは個別空調を各オフィススペースに設置しており、テナントは各自の快適な温度設定を行うことができます。また、室内はほぼ長方形のレイアウトで、自由度の高いオフィス環境を実現します。さらに、2007年にはリニューアルが行われ、デザイン性に富んだエントランスが魅力の一つとなっています。 大森プラザビルは、新耐震基準に適合し、駅近でありながら、快適なオフィス環境を提供する賃貸オフィス物件です。交通の利便性、周辺環境の良さ、快適なオフィス空間がビジネスの成功をサポートします。これらの特徴は、多様なビジネスニーズに応えるものであり、テナント企業にとって大きな利点となるでしょう。
募集終了のテナント区画
| 階数 | 坪数 | 賃料 + 共益費 | 敷金/礼金敷金 礼金 | 検討 |
|---|---|---|---|---|
| 2階 | 101.29坪 (334.86m²) | 募集終了 | - | - |
| 3階 | 116.42坪 (384.85m²) | 募集終了 | - | - |
| 3階 | 73.58坪 (243.24m²) | 募集終了 | - | - |
| 3階 | 20.7坪 (68.43m²) | 募集終了 | - | - |
| 3階 | 41.36坪 (136.75m²) | 募集終了 | - | - |
| 4階 | 63.83坪 (211.01m²) | 募集終了 | - | - |
| 4階 | 72.2坪 (238.71m²) | 募集終了 | - | - |
| 5階 | 51.58坪 (170.51m²) | 募集終了 | - | - |
| 5階 | 37.42坪 (123.72m²) | 募集終了 | - | - |
| 5階 | 33.61坪 (111.11m²) | 募集終了 | - | - |
| 5階 | 77.1坪 (254.89m²) | 募集終了 | - | - |
| 5階 | 116.69坪 (385.77m²) | 募集終了 | - | - |
| 6階 | 100.89坪 (333.54m²) | 募集終了 | - | - |
| 6階 | 116.69坪 (385.77m²) | 募集終了 | - | - |
WEB非公開物件がございます
オーナー様ご希望によるWEB非公開の物件もございます。先ずは条件などお知らせ頂けましたら、非公開物件含めピッタリのオフィスをご提案させて頂きます。具体的な物件がお決まりでない場合でも問題ございません。無理なお勧めはしておりませんので、お気軽にお問い合わせください。
ご来店も歓迎です
オフィス移転は社内・社外ともに非公開に行われることが殆どです。そのためアットオフィスでは、基本的に訪問によるコンサルティングを行っておりますが、ご来店の相談も歓迎です。
※お一人おひとりに親身にご対応させて頂きたい為、要予約とさせて頂いております。ご来店の際は先ずは上記よりご予約下さい。
読込中...
品川/大崎/大井エリアで大森プラザビルに似た条件の物件
読込中...