ビック池袋東口ビル10階の賃貸情報
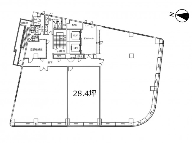
28.4 坪 (93.89m²)
※このサイトに記載がある賃貸条件は、敷金・保証金などの預かり金を除き、別途消費税がかかります。
ビック池袋東口ビルの建物概要
設備詳細
| 空調 | 個別空調 |
|---|---|
| トイレ | - |
| 床仕様 | OA対応床(フリーアクセス) |
| エレベータ | 1 基 |
| 駐車場設備 | 空有 |
| その他 | 大型ビル / 管理人常駐 / 光ファイバー / 新耐震基準 / クリニック |
ビック池袋東口ビル10階の賃貸オフィス・事務所に関するお問い合わせ
ビック池袋東口ビルについて
東京のビジネスハブ、池袋に位置する「ビック池袋東口ビル」は、1987年に竣工された現代的なオフィスビルです。10階建てのこの物件は、耐震基準を満たした安全な構造であり、企業の安心して活動できる基盤を提供します。 立地においては、JR池袋駅からわずか徒歩1分という抜群のアクセス性を誇ります。この地点から東京都内各所への移動が容易であり、ビジネスの機会を迅速に捉えることが可能です。また、池袋パルコやヤマダ電機などの大型商業施設が隣接しており、ビジネス後のショッピングや食事にも便利です。 ビル内の設備には特に配慮が行き届いています。エレベーターは2基設置されており、ビジネスの効率性を高めています。各オフィスフロアは約170坪と広々としており、ほぼ柱のないシンプルな間取りが多く、様々なオフィスレイアウトに対応可能です。また、大きな窓からは開放的な景色が楽しめ、明るく快適な職場環境を提供します。 セキュリティ面では、有人管理が行われており、入居企業とその来客の安全を確保しています。また、地下には駐車場が設けられており、車でのアクセスも容易です。周辺には多数の銀行ATMも配備されており、日常的な金融業務も手間なく行えます。 「ビック池袋東口ビル」は、その立地、設備、安全性を兼ね備えた賃貸オフィスビルとして、どんな企業にも最適な選択肢です。ビジネスの拠点としての機能性の高さと、池袋というエリアの利便性を活かしたビジネス展開を望む企業にとって、理想的な環境を提供します。
自分で探すより問い合わせる方が早いことがあります
WEB非公開物件があるから
オーナー様のご希望により「WEBでは非公開」にしている物件があります。 それらはWEBでいくら検索しても見つかりません。 先ずは条件などお知らせ頂けましたら非公開物件含め ピッタリのオフィスをご提案させて頂きます。 無理なお勧めはしておりませんので、お気軽にお問い合わせください。
対面でのご相談も受け付けております
ご来店も歓迎です
オフィス移転は社内・社外ともに非公開に行われることが殆どです。そのためアットオフィスでは、基本的に訪問によるコンサルティングを行っておりますが、ご来店の相談も歓迎です。お一人おひとりに親身にご対応させて頂きたい為、要予約とさせて頂いております。ご来店の際は先ずは下記よりご予約下さい。
池袋/大塚/目白エリアでビック池袋東口ビルに似た条件の物件
読込中...
ビック池袋東口ビルと同じ最寄駅の物件
読込中...
| 取扱様態 | 仲介 |
|---|---|
| 取扱会社 | 株式会社 アットオフィス |