※このサイトに記載がある賃貸条件は、敷金・保証金などの預かり金を除き、別途消費税がかかります。
物件情報
設備詳細
| 空調 | - |
|---|---|
| トイレ | - |
| 床仕様 | - |
| エレベータ | 1 基 |
| 駐車場設備 | - |
| その他 | 24時間利用可 / 光ファイバー |
ル・グラシエルBLDG.5の賃貸オフィス・事務所に関するお問い合わせ
ル・グラシエルBLDG.5について
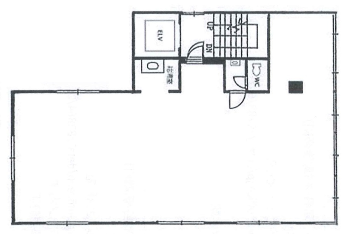
ル・グラシエルBLDG.5は、東京都港区新橋に位置する、賃貸オフィスビルの魅力をご紹介いたします。竣工は1974年ということで、長い歴史を持ちながらも、ビジネスの現場で求められる機能性と快適性を兼ね備えた物件です。地上6階建てのこのビルは、基準階約27坪から30坪の広さを誇り、長方形の間取りによりレイアウト効率が高く、様々なビジネスシーンにフィットします。 特に注目すべきは、その立地の良さです。新橋駅と御成門駅から徒歩約8分と、2駅3路線が利用可能でアクセス抜群。赤レンガ通りから一本入った落ち着いた環境に位置し、ビジネスに集中できる静かで快適な環境を提供します。また、周辺には飲食店やコンビニが充実しており、ランチタイムや仕事終わりのちょっとした買い出しにも便利です。 ビル内の設備にも注目です。24時間利用可能な執務スペースに加え、個別空調が完備されており、各テナントが快適な環境で仕事に取り組むことができます。室内には給湯スペースや洗面台も設置され、長時間の勤務でも快適に過ごせる工夫がされています。さらに、エレベーターも1基設置されており、移動の利便性も考慮されています。 ル・グラシエルBLDG.5は、採光が抜群で、働く人々の心身の健康を考えた物件設計も魅力の一つです。執務スペースとは別に書庫が設けられており、書類の多いビジネスにも対応可能。ビジネスの効率化を考えた設計が、多くの企業にとって大きな利点となるでしょう。 このように、ル・グラシエルBLDG.5は、立地の良さ、使い勝手の良い間取り、充実した設備、そして快適な環境が揃った賃貸オフィスビルです。新しいオフィスとして、あなたのビジネスをさらに加速させるための最適な選択肢と言えるでしょう。ビジネスの拠点としての機能性と、働く人々の快適性を両立させたル・グラシエルBLDG.5で、新たな一歩を踏み出しませんか?
ル・グラシエルBLDG.5のこだわり
自分で探すより問い合わせる方が早いことがあります
WEB非公開物件があるから
オーナー様のご希望により「WEBでは非公開」にしている物件があります。 それらはWEBでいくら検索しても見つかりません。 先ずは条件などお知らせ頂けましたら非公開物件含め ピッタリのオフィスをご提案させて頂きます。 無理なお勧めはしておりませんので、お気軽にお問い合わせください。
対面でのご相談も受け付けております
ご来店も歓迎です
オフィス移転は社内・社外ともに非公開に行われることが殆どです。そのためアットオフィスでは、基本的に訪問によるコンサルティングを行っておりますが、ご来店の相談も歓迎です。お一人おひとりに親身にご対応させて頂きたい為、要予約とさせて頂いております。ご来店の際は先ずは下記よりご予約下さい。
募集終了のテナント区画
| 階数 | 坪数 | 賃料 + 共益費 | 敷金/礼金敷金 礼金 | 検討 |
|---|---|---|---|---|
| 1階 | 24坪 (79.34m²) | 募集終了 | - | - |
| 3階 | 27坪 (89.26m²) | 募集終了 | - | - |
| 4階 | 25.21坪 (83.34m²) | 募集終了 | - | - |
| 5階 | 22.48坪 (74.31m²) | 募集終了 | - | - |
| 6階 | 18.81坪 (62.18m²) | 募集終了 | - | - |
| 7階 | 15坪 (49.59m²) | 募集終了 | - | - |
読込中...
近くのエリアで探してみる
新橋/虎ノ門/神谷町エリアでル・グラシエルBLDG.5に似た条件の物件
読込中...
| 取扱様態 | 仲介 |
|---|---|
| 取扱会社 | 株式会社 アットオフィス |