千里朝日阪急ビル2階の賃貸情報
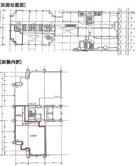
63.17 坪 (208.461m²)
お問合せ下さい (坪:-)
※このサイトに記載がある賃貸条件は、敷金・保証金などの預かり金を除き、別途消費税がかかります。
千里朝日阪急ビルの建物概要
設備詳細
| 空調 | - |
|---|---|
| トイレ | - |
| 床仕様 | - |
| エレベータ | 12 基 |
| 駐車場設備 | - |
| その他 | クリニック |
千里朝日阪急ビル2階の賃貸オフィス・事務所に関するお問い合わせ
千里朝日阪急ビルについて
「千里朝日阪急ビル」は、1992年に竣工された地下2階・地上20階建ての賃貸オフィスビルで、位置的には大阪府豊中市新千里東町1に位置しています。千里中央エリアを代表するランドマークオフィスとして、その存在感は地域の発展に大きく貢献しています。基準階の貸室面積は約517坪に及び、ニーズに合わせ8分割に対応するフレキシビリティを持たせた設計は、様々な規模の組織が使用するにあたっての調整が容易です。最小区画は約43坪からと、多様な企業が入居可能な設計となっております。 ビル内には大小サイズの貸会議室が複数用意されており、必要に応じて利用することが可能です。これは会議やプレゼンテーション、研修といった目的に対応しやすく、日頃の業務において非常に重宝します。また、多目的ホールではコンサートやイベントの開催も可能で、企業文化やコミュニティー形成の場としても機能します。これらの施設は入居企業にとって大きな利点となっており、ビル内で完結することが可能なので、外部施設を探す手間を省くことができます。 大阪モノレール「千里中央」駅から徒歩2分、北大阪急行「千里中央」駅からは徒歩3分の距離にあり、どちらの駅も利用しやすい立地条件を誇っています。周辺は商業施設や飲食店が充実しており、昼食やアフター5の時間を有意義に過ごす選択肢が豊富です。また、ビルの周辺には多数の住宅地も広がっており、従業員の住宅選びの面でも便利な立地です。このように、「千里朝日阪急ビル」は業務の効率化はもちろん、日々の生活便利性をも実現しています。 この千里朝日阪急ビルは、その優れた立地、充実の設備、そして機能的な空間設計により、多くの可能性を提供しております。是非一度ご内見ください。
千里朝日阪急ビルのこだわり
自分で探すより問い合わせる方が早いことがあります
WEB非公開物件があるから
オーナー様のご希望により「WEBでは非公開」にしている物件があります。 それらはWEBでいくら検索しても見つかりません。 先ずは条件などお知らせ頂けましたら非公開物件含め ピッタリのオフィスをご提案させて頂きます。 無理なお勧めはしておりませんので、お気軽にお問い合わせください。
対面でのご相談も受け付けております
ご来店も歓迎です
オフィス移転は社内・社外ともに非公開に行われることが殆どです。そのためアットオフィスでは、基本的に訪問によるコンサルティングを行っておりますが、ご来店の相談も歓迎です。お一人おひとりに親身にご対応させて頂きたい為、要予約とさせて頂いております。ご来店の際は先ずは下記よりご予約下さい。
豊中市エリアで千里朝日阪急ビルに似た条件の物件
読込中...
千里朝日阪急ビルと同じ最寄駅の物件
読込中...
| 取扱様態 | 仲介 |
|---|---|
| 取扱会社 | 株式会社 アットオフィス |