南船場DSビル1階の賃貸情報
45.84 坪 (151.53m²)
939,721円 (坪:20,500 円)
※このサイトに記載がある賃貸条件は、敷金・保証金などの預かり金を除き、別途消費税がかかります。
南船場DSビルの建物概要
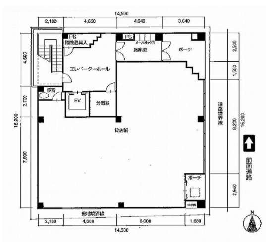
設備詳細
| 空調 | - |
|---|---|
| トイレ | - |
| 床仕様 | - |
| エレベータ | - |
| 駐車場設備 | - |
| その他 | 24時間利用可 / 新耐震基準 / 1階の物件 / 店舗可(飲食不可) / スケルトン / クリニック |
南船場DSビル1階の賃貸オフィス・事務所に関するお問い合わせ
南船場DSビルについて
芦池ビルディングは、大阪市中央区南船場に位置する賃貸オフィス物件で、ビジネスを検討されている方々に多くの利点を提供します。1963年に竣工したこの4階建てのビルは、レトロな外観が特徴で、大きな窓が設置されており、明るく開放感のあるオフィス空間を提供します。鉄筋コンクリート造のため、堅牢な構造を持ちながら、耐震性にも優れた安心感があります。 オフィスは基準階約24坪で、フロアによっては分割区画の選択も可能です。詳細については直接お問い合わせいただくことで、より具体的なご相談に応じられます。芦池ビルディングは24時間利用可能で、機械警備によるセキュリティシステムに加え、24時間体制で保安員が常駐しているため、安心して業務に集中することができます。 芦池ビルディングの主要な地理的利点として、心斎橋駅に近接していることが挙げられます。また、長堀橋駅、四ツ橋駅、堺筋本町駅からのアクセスも良好で、他の主要エリアへの移動も非常に便利です。このため、通勤や商談、ご来客対応の際の交通手段に困ることはありません。 周辺環境もビジネスに適しています。長堀通りから少し入ったところに位置し、心斎橋エリア内の賑やかさを少し離れ、静かで落ち着いた環境が整っています。近くには数多くの飲食店があり、ランチタイムにも便利です。また、大阪南船場郵便局が徒歩圏内に位置しているため、郵便物のやり取りもスムーズに行えます。加えて、心斎橋筋商店街やカフェが近くにあるため、休憩時間やリフレッシュにも最適です。 これらの魅力的な特徴により、芦池ビルディングは業務の効率化を図るための理想的な拠点となることでしょう。オフィスの移転、起業、新規事業の立ち上げを検討されている方には、ぜひともこの物件を一度ご覧いただきたいです。ビジネスの拡大や進展に対し、良好な基盤を提供する芦池ビルディングで、新しいスタートを切ってみてはいかがでしょうか。
自分で探すより問い合わせる方が早いことがあります
WEB非公開物件があるから
オーナー様のご希望により「WEBでは非公開」にしている物件があります。 それらはWEBでいくら検索しても見つかりません。 先ずは条件などお知らせ頂けましたら非公開物件含め ピッタリのオフィスをご提案させて頂きます。 無理なお勧めはしておりませんので、お気軽にお問い合わせください。
対面でのご相談も受け付けております
ご来店も歓迎です
オフィス移転は社内・社外ともに非公開に行われることが殆どです。そのためアットオフィスでは、基本的に訪問によるコンサルティングを行っておりますが、ご来店の相談も歓迎です。お一人おひとりに親身にご対応させて頂きたい為、要予約とさせて頂いております。ご来店の際は先ずは下記よりご予約下さい。
中央区エリアで南船場DSビルに似た条件の物件
読込中...
南船場DSビルと同じ最寄駅の物件
読込中...
| 取扱様態 | 仲介 |
|---|---|
| 取扱会社 | 株式会社 アットオフィス |