※このサイトに記載がある賃貸条件は、敷金・保証金などの預かり金を除き、別途消費税がかかります。
物件情報
設備詳細
| 空調 | 個別空調 |
|---|---|
| トイレ | - |
| 床仕様 | - |
| エレベータ | 1 基 |
| 駐車場設備 | - |
| その他 | 光ファイバー / 24時間利用可 / 機械警備 / 東京賃料が坪11000円以下 |
大洋ビルの賃貸オフィス・事務所に関するお問い合わせ
大洋ビルについて
東京都心のビジネスシーンにおいて理想的な立地であることは、オフィスを構えるにあたって非常に重要な要素です。この度ご紹介する大洋ビルは、千代田区神田佐久間町3丁目に位置し、JR山手線「秋葉原駅」からわずか徒歩4分というアクセスの良さが魅力の一つです。また、「浅草橋」駅も徒歩圏内にあり、複数の路線を利用可能ですので、都内各所への移動が非常に便利です。 大洋ビルは1976年の新耐震基準施行前に竣工された物件でありながら、その立地と機能性において多くのビジネスパーソンにとって魅力的なオフィス環境を提供しています。ビル内には駐車場が完備されており、空き状況に関するお問い合わせも受け付けております。また、エレベーターは1機稼働しており、ビルの設備面でも利用者の利便性を考慮しています。 大洋ビルの特筆すべき点は、24時間利用可能であること、共益費に機械警備料やトイレ清掃費が含まれているため、セキュリティと清潔さを常に保つことができる点です。トイレは定期的に清掃されており、ビル利用者は安心して快適な環境で仕事に集中することが可能です。 立地に関しても、秋葉原駅の近くということで、繁華街の賑わいから一歩離れた落ち着いた雰囲気の中で業務を行うことができます。斜め向かいに学校があるため、ビル周辺は比較的静かで、ビジネスに集中するための環境が整っています。 大洋ビルは、秋葉原駅近くでコンパクトながらも機能性に富んだオフィススペースをお探しの企業様に最適な物件です。アクセスの良さ、24時間利用可能な点、安全・清潔なビル環境といった特長は、ビジネス運営における大きなメリットとなります。ご興味のある方は、ぜひ一度お問い合わせください。大洋ビルは、あなたのビジネスをサポートするための最適な拠点となることでしょう。
大洋ビルのこだわり
自分で探すより問い合わせる方が早いことがあります
WEB非公開物件があるから
オーナー様のご希望により「WEBでは非公開」にしている物件があります。 それらはWEBでいくら検索しても見つかりません。 先ずは条件などお知らせ頂けましたら非公開物件含め ピッタリのオフィスをご提案させて頂きます。 無理なお勧めはしておりませんので、お気軽にお問い合わせください。
対面でのご相談も受け付けております
ご来店も歓迎です
オフィス移転は社内・社外ともに非公開に行われることが殆どです。そのためアットオフィスでは、基本的に訪問によるコンサルティングを行っておりますが、ご来店の相談も歓迎です。お一人おひとりに親身にご対応させて頂きたい為、要予約とさせて頂いております。ご来店の際は先ずは下記よりご予約下さい。
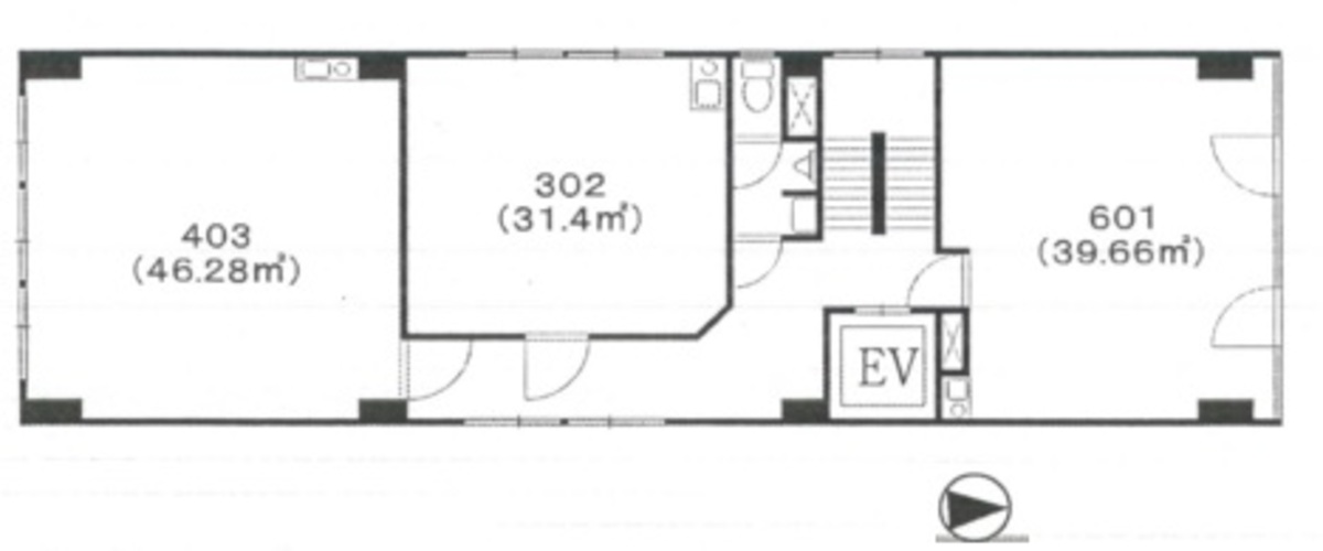
募集終了のテナント区画
| 階数 | 坪数 | 賃料 + 共益費 | 敷金/礼金敷金 礼金 | 検討 |
|---|---|---|---|---|
| 1階 | 22坪 (72.73m²) | 募集終了 | - | - |
| 1階 | 8坪 (26.44m²) | 募集終了 | - | - |
| 2階 | 9.5坪 (31.4m²) | 募集終了 | - | - |
| 2階 | 14坪 (46.28m²) | 募集終了 | - | - |
| 2階 | 12坪 (39.67m²) | 募集終了 | - | - |
| 3階 | 12坪 (39.67m²) | 募集終了 | - | - |
| 3階 | 9.5坪 (31.4m²) | 募集終了 | - | - |
| 4階 | 10坪 (33.06m²) | 募集終了 | - | - |
| 4階 | 14坪 (46.28m²) | 募集終了 | - | - |
| 4階 | 12坪 (39.67m²) | 募集終了 | - | - |
| 4階 | 9.5坪 (31.4m²) | 募集終了 | - | - |
| 5階 | 10坪 (33.06m²) | 募集終了 | - | - |
| 5階 | 9.5坪 (31.4m²) | 募集終了 | - | - |
| 5階 | 14坪 (46.28m²) | 募集終了 | - | - |
| 5階 | 23.5坪 (77.69m²) | 募集終了 | - | - |
| 6階 | 10坪 (33.06m²) | 募集終了 | - | - |
| 6階 | 12坪 (39.67m²) | 募集終了 | - | - |
| 6階 | 7坪 (23.14m²) | 募集終了 | - | - |
読込中...
神田/秋葉原エリアで大洋ビルに似た条件の物件
読込中...
| 取扱様態 | 仲介 |
|---|---|
| 取扱会社 | 株式会社 アットオフィス |