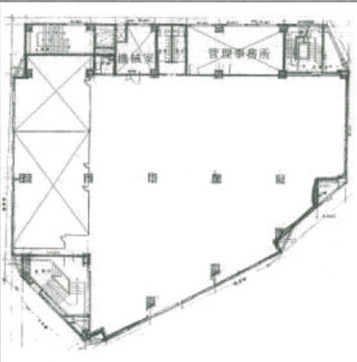
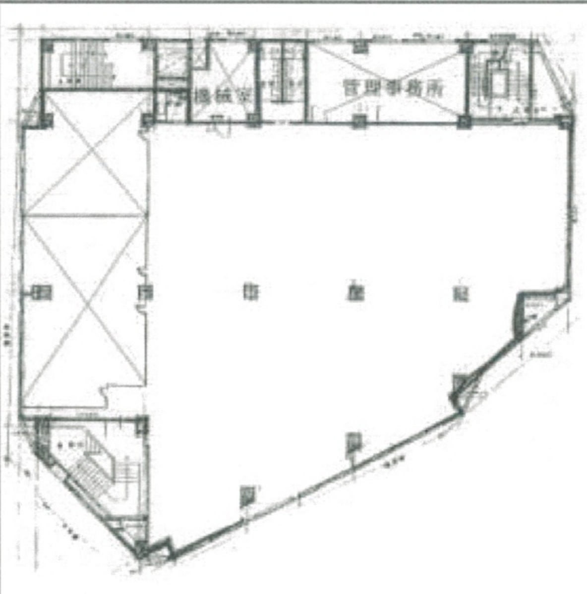
青葉台サンクスビル3階の賃貸情報
189.82 坪 (627.53m²)
※このサイトに記載がある賃貸条件は、敷金・保証金などの預かり金を除き、別途消費税がかかります。
青葉台サンクスビルの建物概要
設備詳細
| 空調 | 個別空調 |
|---|---|
| トイレ | - |
| 床仕様 | - |
| エレベータ | - |
| 駐車場設備 | 空有 |
| その他 | 大型ビル / 24時間利用可 / スケルトン / 神奈川賃料が10000円以下 |
青葉台サンクスビル3階の賃貸オフィス・事務所に関するお問い合わせ
青葉台サンクスビルについて
青葉台サンクスビルは、横浜市青葉区青葉台1丁目に所在する地上9階地下1階建ての大型ビルです。田園都市線「青葉台駅」から徒歩3分に位置し、「藤が丘駅」「田奈駅」も徒歩圏内にあります。複数の駅が利用できるため、各方面への移動が検討される法人様にも対応しています。 建物は、複数フロアにわたる構造となっており、テナントの用途や規模に応じたレイアウトが組みやすい設計です。24時間利用可能となっており、時間帯に制約されないオフィス運営や事業活動にも活用できます。商業施設や住宅が混在するエリアに位置しており、周辺には様々なサービスや店舗が見受けられます。ビルの規模感を活かして、ワンフロアや複数フロアの利用、または分割利用など、目的に応じたフロアプランが検討しやすい点も特徴です。 ビルの立地や構造を踏まえ、事務所や店舗、サービス業など多様な事業用途に対応する空間として利用が可能です。詳細はお問い合わせください。
自分で探すより問い合わせる方が早いことがあります
WEB非公開物件があるから
オーナー様のご希望により「WEBでは非公開」にしている物件があります。 それらはWEBでいくら検索しても見つかりません。 先ずは条件などお知らせ頂けましたら非公開物件含め ピッタリのオフィスをご提案させて頂きます。 無理なお勧めはしておりませんので、お気軽にお問い合わせください。
対面でのご相談も受け付けております
ご来店も歓迎です
オフィス移転は社内・社外ともに非公開に行われることが殆どです。そのためアットオフィスでは、基本的に訪問によるコンサルティングを行っておりますが、ご来店の相談も歓迎です。お一人おひとりに親身にご対応させて頂きたい為、要予約とさせて頂いております。ご来店の際は先ずは下記よりご予約下さい。
青葉区エリアで青葉台サンクスビルに似た条件の物件
読込中...
青葉台サンクスビルと同じ最寄駅の物件
読込中...
| 取扱様態 | 仲介 |
|---|---|
| 取扱会社 | 株式会社 アットオフィス |