タイムスビル2階の賃貸情報
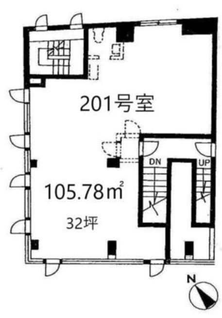
31.99 坪 (105.78m²)
※このサイトに記載がある賃貸条件は、敷金・保証金などの預かり金を除き、別途消費税がかかります。
設備詳細
| 空調 | 個別空調 |
|---|---|
| トイレ | 男女共用トイレ・室内 |
| 床仕様 | - |
| エレベータ | - |
| 駐車場設備 | - |
| その他 | 店舗可(飲食不可) / 東京賃料が坪11000円以下 / クリニック |
タイムスビル2階の賃貸オフィス・事務所に関するお問い合わせ
タイムスビルについて
町田市旭町1丁目に位置するタイムスビルは、地上4階建ての事業用建物です。小田急電鉄小田原線「町田駅」から徒歩18分の距離にあり、近隣エリアの落ち着いた環境に所在しています。周辺は住宅や各種店舗が点在する地域で、事務所や店舗など様々な業種の拠点として利用が想定されます。 各フロアは複数階で構成されており、分割利用やワンフロア利用など目的や事業規模に応じた使い方が可能です。敷地付近の交通量や人の流れなども現地でご確認いただき、来客対応や従業員の動線設計にも配慮した利用計画を検討いただけます。 建物外観やエントランス、共用部の仕様、面積や設備の詳細については別途ご案内しておりますので、具体的な利用イメージやご要望に合わせたご提案が可能です。詳細はお問い合わせください。
自分で探すより問い合わせる方が早いことがあります
WEB非公開物件があるから
オーナー様のご希望により「WEBでは非公開」にしている物件があります。 それらはWEBでいくら検索しても見つかりません。 先ずは条件などお知らせ頂けましたら非公開物件含め ピッタリのオフィスをご提案させて頂きます。 無理なお勧めはしておりませんので、お気軽にお問い合わせください。
対面でのご相談も受け付けております
ご来店も歓迎です
オフィス移転は社内・社外ともに非公開に行われることが殆どです。そのためアットオフィスでは、基本的に訪問によるコンサルティングを行っておりますが、ご来店の相談も歓迎です。お一人おひとりに親身にご対応させて頂きたい為、要予約とさせて頂いております。ご来店の際は先ずは下記よりご予約下さい。
町田市エリアでタイムスビルに似た条件の物件
読込中...
タイムスビルと同じ最寄駅の物件
読込中...
| 取扱様態 | 仲介 |
|---|---|
| 取扱会社 | 株式会社 アットオフィス |