※このサイトに記載がある賃貸条件は、敷金・保証金などの預かり金を除き、別途消費税がかかります。
物件情報
設備詳細
| 空調 | - |
|---|---|
| トイレ | 男女共用トイレ・室内 |
| 床仕様 | - |
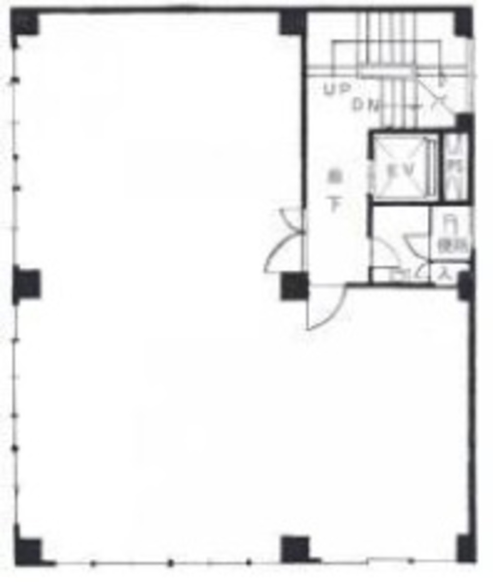
| エレベータ | 1 基 |
| 駐車場設備 | - |
| その他 | 機械警備 / 24時間利用可 / 光ファイバー |
中村ビルの賃貸オフィス・事務所に関するお問い合わせ
中村ビルについて
新橋エリアに位置する中村ビルは、港区新橋4丁目にある、昭和39年(1964年)竣工の賃貸オフィスビルです。このエリアはビジネスの中心地として知られ、多くの企業が拠点を置く活気ある場所です。中村ビルはその中でも、新橋駅から徒歩5分という利便性の高さを誇ります。さらに、汐留駅・御成門駅・内幸町駅へのアクセスも良好で、交通の便は非常に良いと言えるでしょう。 この物件の最大の特徴は、基準階面積約35坪のオフィススペースに個別空調完備という点です。ビル内は9階建てで、各フロアは効率的なレイアウトが可能なため、中小企業からスタートアップ企業まで幅広いニーズに対応します。また、レトロながらも味わい深い外観と、現代のオフィスニーズに合わせた設備が特徴です。エレベーターは1基あり、24時間利用可能なオフィスは、夜間や休日も働くビジネスマンにとって大きな利点となります。 周辺環境も魅力的で、新橋駅周辺にはコンビニや飲食店が豊富にあり、日常の買い物やランチタイムに困ることはありません。また、徒歩圏内に新橋四郵便局があるため、ビジネス上の郵送物の処理も容易です。塩釜公園のような公園も近く、ちょっとした休憩やリフレッシュにも最適です。 新橋エリアのオフィスビルの中でも、中村ビルはその歴史ある外観と現代的な設備、そして立地の良さで差別化されています。特に、新橋駅徒歩5分というアクセスの良さは、ビジネスチャンスを広げる上で大きなメリットです。環二通りを一歩入った比較的静かな立地は、落ち着いて仕事に集中したい企業に最適。これらの要素を踏まえると、中村ビルは新橋エリアでオフィスを検討している企業にとって、非常に魅力的な選択肢と言えるでしょう。
中村ビルのこだわり
自分で探すより問い合わせる方が早いことがあります
WEB非公開物件があるから
オーナー様のご希望により「WEBでは非公開」にしている物件があります。 それらはWEBでいくら検索しても見つかりません。 先ずは条件などお知らせ頂けましたら非公開物件含め ピッタリのオフィスをご提案させて頂きます。 無理なお勧めはしておりませんので、お気軽にお問い合わせください。
対面でのご相談も受け付けております
ご来店も歓迎です
オフィス移転は社内・社外ともに非公開に行われることが殆どです。そのためアットオフィスでは、基本的に訪問によるコンサルティングを行っておりますが、ご来店の相談も歓迎です。お一人おひとりに親身にご対応させて頂きたい為、要予約とさせて頂いております。ご来店の際は先ずは下記よりご予約下さい。
募集終了のテナント区画
| 階数 | 坪数 | 賃料 + 共益費 | 敷金/礼金敷金 礼金 | 検討 |
|---|---|---|---|---|
| 3階 | 13坪 (42.98m²) | 募集終了 | - | - |
| 3階 | 23坪 (76.03m²) | 募集終了 | - | - |
| 4階 | 36坪 (119.01m²) | 募集終了 | - | - |
| 6階 | 35坪 (115.7m²) | 募集終了 | - | - |
| 6階 | 23坪 (76.03m²) | 募集終了 | - | - |
| 7階 | 13坪 (42.98m²) | 募集終了 | - | - |
| 7階 | 10坪 (33.06m²) | 募集終了 | - | - |
| 8階 | 36坪 (119m²) | 募集終了 | - | - |
| 8階 | 26坪 (85.95m²) | 募集終了 | - | - |
読込中...
近くのエリアで探してみる
新橋/虎ノ門/神谷町エリアで中村ビルに似た条件の物件
読込中...
| 取扱様態 | 仲介 |
|---|---|
| 取扱会社 | 株式会社 アットオフィス |