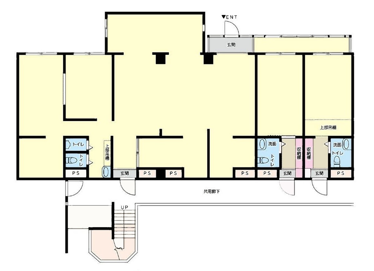
マリンハイツⅢ1階の賃貸情報
44.7 坪 (147.78m²)
436,364円 (坪:9,762 円)
※このサイトに記載がある賃貸条件は、敷金・保証金などの預かり金を除き、別途消費税がかかります。
マリンハイツⅢの建物概要
設備詳細
| 空調 | 個別空調 |
|---|---|
| トイレ | 男女別トイレ室内 |
| 床仕様 | - |
| エレベータ | - |
| 駐車場設備 | 空有 |
| その他 | 神奈川賃料が10000円以下 / 1階の物件 |
マリンハイツⅢ1階の賃貸オフィス・事務所に関するお問い合わせ
マリンハイツⅢについて
マリンハイツⅢは、横浜市港北区高田東1丁目に位置する事業用建物です。周辺は住宅や事業所が混在するエリアであり、落ち着いた環境にあります。敷地は複数の鉄道路線が利用可能な場所にあり、最寄りの高田駅(横浜市グリーンライン)までは徒歩10分、日吉本町駅(横浜市グリーンライン)まで徒歩11分、また東急東横線の綱島駅までは徒歩19分の距離です。最寄り駅からの徒歩での移動が想定される立地となっており、業務拠点や事務所の用途を検討される方に適した環境と言えます。建物周辺には生活利便施設や各種事業所も点在し、地域の活動拠点としての利用も可能です。駅からのアクセス方法や周辺環境についてもご案内が可能ですので、詳細はお問い合わせください。
自分で探すより問い合わせる方が早いことがあります
WEB非公開物件があるから
オーナー様のご希望により「WEBでは非公開」にしている物件があります。 それらはWEBでいくら検索しても見つかりません。 先ずは条件などお知らせ頂けましたら非公開物件含め ピッタリのオフィスをご提案させて頂きます。 無理なお勧めはしておりませんので、お気軽にお問い合わせください。
対面でのご相談も受け付けております
ご来店も歓迎です
オフィス移転は社内・社外ともに非公開に行われることが殆どです。そのためアットオフィスでは、基本的に訪問によるコンサルティングを行っておりますが、ご来店の相談も歓迎です。お一人おひとりに親身にご対応させて頂きたい為、要予約とさせて頂いております。ご来店の際は先ずは下記よりご予約下さい。
港北区エリアでマリンハイツⅢに似た条件の物件
読込中...
マリンハイツⅢと同じ最寄駅の物件
読込中...
| 取扱様態 | 仲介 |
|---|---|
| 取扱会社 | 株式会社 アットオフィス |