※このサイトに記載がある賃貸条件は、敷金・保証金などの預かり金を除き、別途消費税がかかります。
物件情報
設備詳細
| 空調 | 個別空調 |
|---|---|
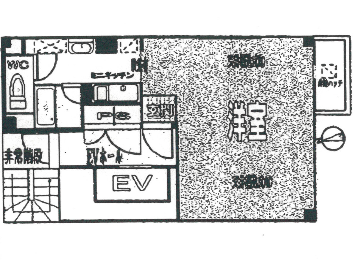
| トイレ | 男女共用トイレ・室内 |
| 床仕様 | - |
| エレベータ | 1 基 |
| 駐車場設備 | - |
| その他 | 新耐震基準 / SOHO/マンション / 保証金・敷金+礼金が3か月以下 / クリニック |
青木ビルの賃貸オフィス・事務所に関するお問い合わせ
青木ビルについて
青木ビルは東京都新宿区西新宿5丁目に位置する、現代のビジネスニーズに対応したSOHOおよび事務所用途のマンションです。このビルは、新宿という東京の中心業務地区(CBD)の一角に立地し、都市の活力とビジネスの中心に身を置きながらも、落ち着いた雰囲気を提供しています。以下に、青木ビルの特徴、立地、設備などの重要な点を詳述いたします。 【特徴】 青木ビルは、コンクリート打ちっぱなしのデザインが特徴的で、現代的かつスタイリッシュな外観を持っています。この建物は、SOHOや小規模な事務所に適した空間を提供しており、フレキシブルな働き方を求める企業や個人事業主に最適です。ビル内は終日オートロックシステムが稼働しており、入居者の安全とセキュリティを確保しています。 【立地】 西新宿5丁目に所在するこのビルは、新宿駅からのアクセスが容易であり、都心への移動に非常に便利です。新宿はビジネス、ショッピング、エンターテイメントの中心地として知られており、青木ビルからはこれらすべての施設へのアクセスが手軽にできます。また、周辺には多数のレストランやカフェがあり、ビジネスランチや打ち合わせにも困りません。 【設備】 青木ビルにはエレベーターが1機設置されており、ビル内の移動をスムーズに行えます。打ちっぱなしのコンクリートデザインは、内装にも採用されており、モダンでクリエイティブな作業環境を提供します。また、オートロックシステムにより、安全性が高くプライバシーも守られるため、集中して作業を行うことができます。 【独自の魅力とビジネスの利点】 青木ビルの最大の魅力は、その立地と設備のバランスの良さにあります。新宿という東京の中心に位置しながらも、落ち着いた環境で仕事をすることができる点は、ビジネスの機会を広げながらも、クリエイティブな仕事に集中したいと考える人々にとって理想的です。また、スタイリッシュなデザインと安全性の高い設備は、企業のブランドイメージを高める上でも大きな利点となります。 まとめると、青木ビルは新宿というビジネスの中心地において、スタイリッシュで安全な作業環境を求めるビジネスパーソンに最適な選択肢です。立地の利便性と独自のデザインが融合したこのビルは、多様なビジネスニーズに応えることができるでしょう。
青木ビルのこだわり
自分で探すより問い合わせる方が早いことがあります
WEB非公開物件があるから
オーナー様のご希望により「WEBでは非公開」にしている物件があります。 それらはWEBでいくら検索しても見つかりません。 先ずは条件などお知らせ頂けましたら非公開物件含め ピッタリのオフィスをご提案させて頂きます。 無理なお勧めはしておりませんので、お気軽にお問い合わせください。
対面でのご相談も受け付けております
ご来店も歓迎です
オフィス移転は社内・社外ともに非公開に行われることが殆どです。そのためアットオフィスでは、基本的に訪問によるコンサルティングを行っておりますが、ご来店の相談も歓迎です。お一人おひとりに親身にご対応させて頂きたい為、要予約とさせて頂いております。ご来店の際は先ずは下記よりご予約下さい。
募集終了のテナント区画
| 階数 | 坪数 | 賃料 + 共益費 | 敷金/礼金敷金 礼金 | 検討 |
|---|---|---|---|---|
| 2階 | 15坪 (49.6m²) | 募集終了 | - | - |
| 3階 | 15坪 (49.6m²) | 募集終了 | - | - |
| 4階 | 16.22坪 (53.63m²) | 募集終了 | - | - |
| 6階 | 16.22坪 (53.63m²) | 募集終了 | - | - |
| 7階 | 16.22坪 (53.62m²) | 募集終了 | - | - |
読込中...
新宿/西新宿エリアで青木ビルに似た条件の物件
読込中...
| 取扱様態 | 仲介 |
|---|---|
| 取扱会社 | 株式会社 アットオフィス |