ツインヒルズ茗荷谷の賃料条件
| 階数 | 坪数 | 賃料 + 共益費 | 敷金/礼金敷金 礼金 | 検討 |
|---|---|---|---|---|
| 8階 | 107.71坪 (356.06m²) | 1,599,493円 (坪:14,849 円) | 10ヶ月 1ヶ月10ヶ月/1ヶ月 |
※このサイトに記載がある賃貸条件は、敷金・保証金などの預かり金を除き、別途消費税がかかります。
物件情報
設備詳細
| 空調 | 個別空調 |
|---|---|
| トイレ | 男女別トイレ室外 |
| 床仕様 | OA対応床(フリーアクセス) |
| エレベータ | 2 基 |
| 駐車場設備 | 空有 |
| その他 | 機械警備 / SOHO/マンション / 光ファイバー / オートロック / 新耐震基準 |
ツインヒルズ茗荷谷の賃貸オフィス・事務所に関するお問い合わせ
ツインヒルズ茗荷谷について
東京都文京区小日向に位置するツインヒルズ茗荷谷ビルは、1992年に竣工された地下1階付きの地上10階建てのオフィスビルです。このビルは、東京メトロ丸ノ内線の茗荷谷駅からわずか徒歩3分という抜群のアクセスの良さを誇ります。その立地は、ビジネスシーンにおいて極めて有利であり、銀行、郵便局、図書館などの公共施設が近隣に豊富に存在し、日常の業務をスムーズに行うためのサポート環境が整っています。 ビルの構造に関しては、新耐震基準に則って建設された鉄骨鉄筋コンクリート造りで、耐震性に優れている点が大きな魅力です。これにより、テナント企業は地震が発生するリスクの高い東京であっても安心して業務を遂行することができます。 設備面では、基準階貸室面積が107.71坪と広々としており、天井高は2400mmで開放感があります。また、個別空調システムを完備しているため、それぞれの企業が独自の快適な環境を設定できます。オフィス内には男女別のトイレが設置されており、共有部に給湯室もあります。これらの配慮は、働く従業員の快適性を高めるために重要です。 セキュリティ面では、機械警備システムが導入されていることから、24時間体制で安全が保たれています。また、駐車場は32台を収容可能な機械式で、来客用の駐車スペースも充実しています。 周辺環境としては、春日通りに面しているため視認性が高く、アクセスの利便性は言うまでもありません。近隣には多くの飲食店やコンビニエンスストアがあり、ビジネス利用だけでなく日常の利便性も高いです。 ツインヒルズ茗荷谷ビルは、その立地、設備、安全性を兼ね備えた文京区の代表的なオフィスビルであり、多様なビジネスニーズに応えるための最適な場所です。企業の拠点としてはもちろん、新たなビジネスチャンスを模索する企業にとっても魅力的な選択肢と言えるでしょう。
ツインヒルズ茗荷谷のこだわり
自分で探すより問い合わせる方が早いことがあります
WEB非公開物件があるから
オーナー様のご希望により「WEBでは非公開」にしている物件があります。 それらはWEBでいくら検索しても見つかりません。 先ずは条件などお知らせ頂けましたら非公開物件含め ピッタリのオフィスをご提案させて頂きます。 無理なお勧めはしておりませんので、お気軽にお問い合わせください。
対面でのご相談も受け付けております
ご来店も歓迎です
オフィス移転は社内・社外ともに非公開に行われることが殆どです。そのためアットオフィスでは、基本的に訪問によるコンサルティングを行っておりますが、ご来店の相談も歓迎です。お一人おひとりに親身にご対応させて頂きたい為、要予約とさせて頂いております。ご来店の際は先ずは下記よりご予約下さい。
募集終了のテナント区画
| 階数 | 坪数 | 賃料 + 共益費 | 敷金/礼金敷金 礼金 | 検討 |
|---|---|---|---|---|
| B1階 | 19.01坪 (62.84m²) | 募集終了 | - | - |
| 1階 | 19.62坪 (64.87m²) | 募集終了 | - | - |
| 1階 | 18.27坪 (60.4m²) | 募集終了 | - | - |
| 1階 | 15.14坪 (50.05m²) | 募集終了 | - | - |
| 2階 | 31.66坪 (104.66m²) | 募集終了 | - | - |
| 2階 | 75.14坪 (248.4m²) | 募集終了 | - | - |
| 3階 | 23坪 (76.03m²) | 募集終了 | - | - |
| 3階 | 37.6坪 (124.3m²) | 募集終了 | - | - |
| 3階 | 50.11坪 (165.65m²) | 募集終了 | - | - |
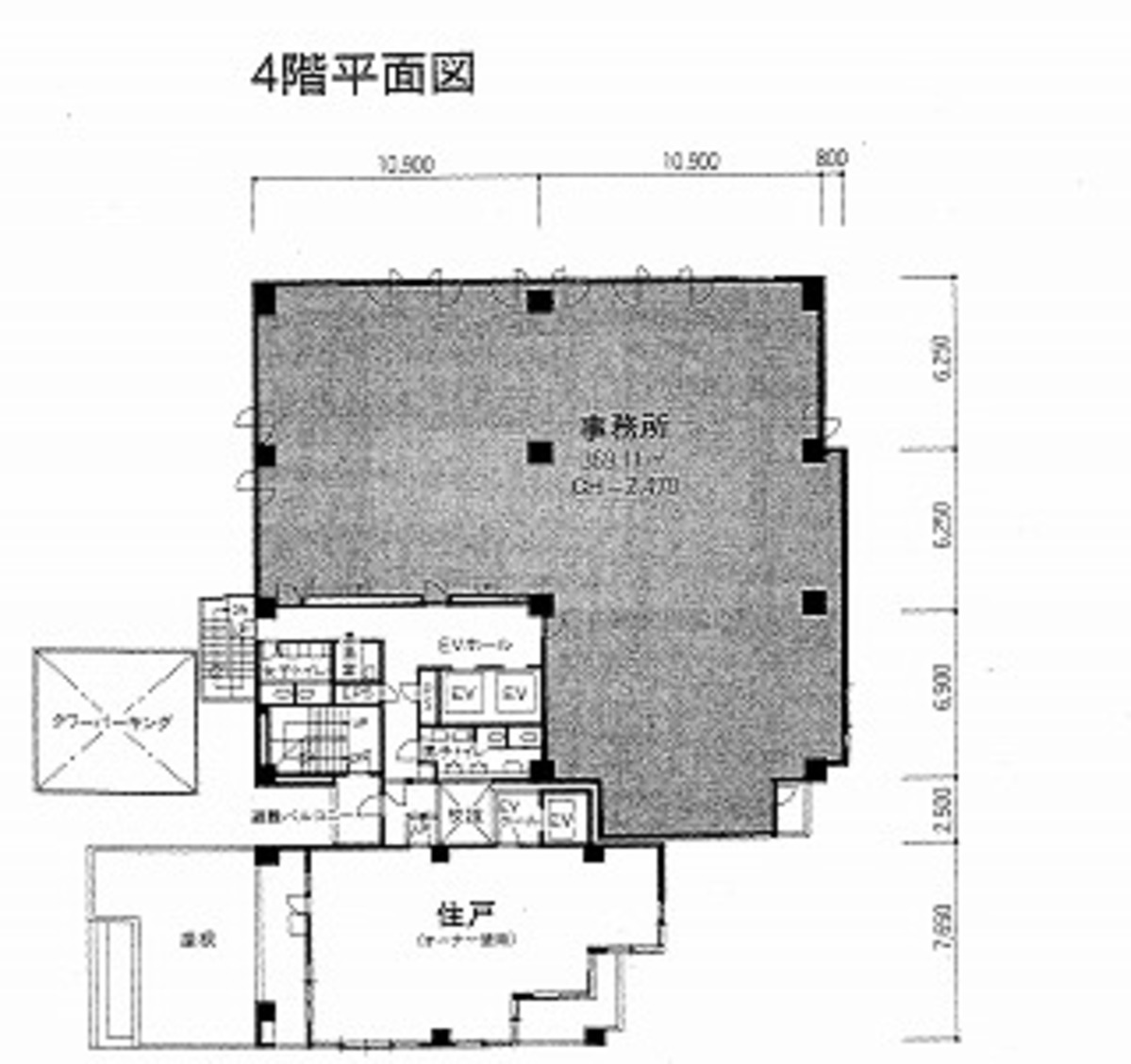
| 4階 | 111.65坪 (369.11m²) | 募集終了 | - | - |
| 5階 | 68.93坪 (227.86m²) | 募集終了 | - | - |
| 5階 | 43.64坪 (144.26m²) | 募集終了 | - | - |
| 6階 | 68.93坪 (227.86m²) | 募集終了 | - | - |
| 6階 | 112.58坪 (372.16m²) | 募集終了 | - | - |
| 7階 | 110.09坪 (363.93m²) | 募集終了 | - | - |
| 9階 | 107.71坪 (356.07m²) | 募集終了 | - | - |
| 10階 | 107.71坪 (356.07m²) | 募集終了 | - | - |
読込中...
湯島/本郷/後楽園エリアでツインヒルズ茗荷谷に似た条件の物件
読込中...
| 取扱様態 | 仲介 |
|---|---|
| 取扱会社 | 株式会社 アットオフィス |