関内ファーストビルの賃料条件
| 階数 | 坪数 | 賃料 + 共益費 | 敷金/礼金敷金 礼金 | 検討 |
|---|---|---|---|---|
| 3階 | 117.69坪 (389.09m²) | 1,235,850円 (坪:11,000 円) | 12ヶ月 無12ヶ月/無 |
※このサイトに記載がある賃貸条件は、敷金・保証金などの預かり金を除き、別途消費税がかかります。
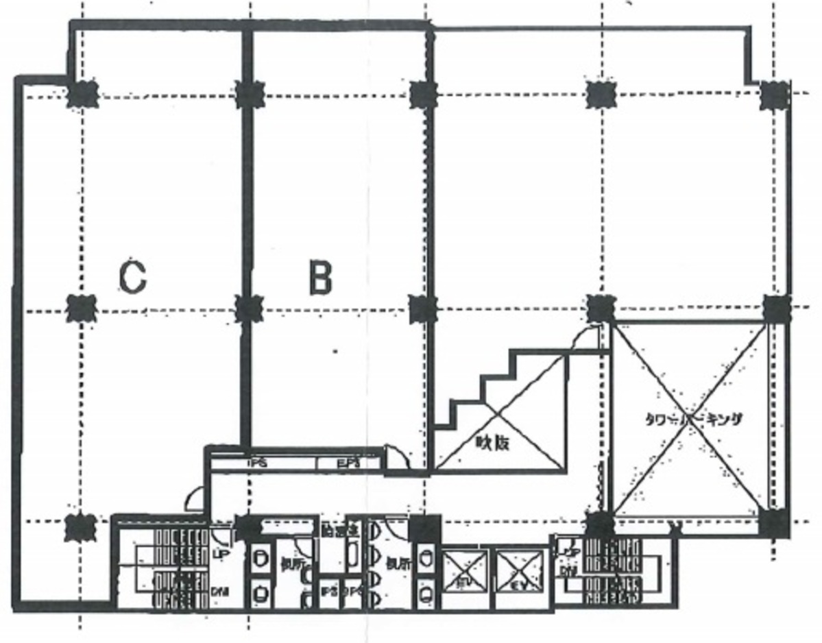
物件情報
設備詳細
| 空調 | - |
|---|---|
| トイレ | - |
| 床仕様 | - |
| エレベータ | 2 基 |
| 駐車場設備 | 空有 / 機械式駐車場 |
| その他 | 機械警備 / 管理人常駐 / 新耐震基準 / 神奈川賃料が10000円以下 |
関内ファーストビルの賃貸オフィス・事務所に関するお問い合わせ
関内ファーストビルについて
関内駅・伊勢佐木長者町駅からもアクセス良好な物件です。 エントランス部はゆとりのあるつくりとなり、管理人も在中しております。 高級感のあるつくりが印象的です!
自分で探すより問い合わせる方が早いことがあります
WEB非公開物件があるから
オーナー様のご希望により「WEBでは非公開」にしている物件があります。 それらはWEBでいくら検索しても見つかりません。 先ずは条件などお知らせ頂けましたら非公開物件含め ピッタリのオフィスをご提案させて頂きます。 無理なお勧めはしておりませんので、お気軽にお問い合わせください。
WEBから条件問い合わせをする(無料)
対面でのご相談も受け付けております
ご来店も歓迎です
オフィス移転は社内・社外ともに非公開に行われることが殆どです。そのためアットオフィスでは、基本的に訪問によるコンサルティングを行っておりますが、ご来店の相談も歓迎です。お一人おひとりに親身にご対応させて頂きたい為、要予約とさせて頂いております。ご来店の際は先ずは下記よりご予約下さい。
来店予約をする
募集終了のテナント区画
| 階数 | 坪数 | 賃料 + 共益費 | 敷金/礼金敷金 礼金 | 検討 |
|---|---|---|---|---|
| 1階 | 33.07坪 (109.32m²) | 募集終了 | - | - |
| 1階 | 35.87坪 (118.57m²) | 募集終了 | - | - |
| 2階 | 40.42坪 (133.62m²) | 募集終了 | - | - |
| 2階 | 43.53坪 (143.9m²) | 募集終了 | - | - |
| 3階 | 117.7坪 (389.09m²) | 募集終了 | - | - |
| 4階 | 47.15坪 (155.87m²) | 募集終了 | - | - |
| 4階 | 43.53坪 (143.9m²) | 募集終了 | - | - |
| 5階 | 47.15坪 (155.87m²) | 募集終了 | - | - |
| 5階 | 27.73坪 (91.67m²) | 募集終了 | - | - |
| 6階 | 117.7坪 (389.09m²) | 募集終了 | - | - |
| 8階 | 78.23坪 (258.61m²) | 募集終了 | - | - |
| 9階 | 55.77坪 (184.36m²) | 募集終了 | - | - |
| 9階 | 22.2坪 (73.39m²) | 募集終了 | - | - |
読込中...
中区エリアで関内ファーストビルに似た条件の物件
読込中...
| 取扱様態 | 仲介 |
|---|---|
| 取扱会社 | 株式会社 アットオフィス |