WISE NEXT 新横浜の賃料条件
| 階数 | 坪数 | 賃料 + 共益費 | 敷金/礼金敷金 礼金 | 検討 |
|---|---|---|---|---|
| 2階 | 134.31坪 (444m²) | お問合せ下さい (坪:-) | 相談 無相談/無 | |
| 9階 | 28.61坪 (94.57m²) | お問合せ下さい (坪:-) | 相談 無相談/無 |
※このサイトに記載がある賃貸条件は、敷金・保証金などの預かり金を除き、別途消費税がかかります。
物件情報
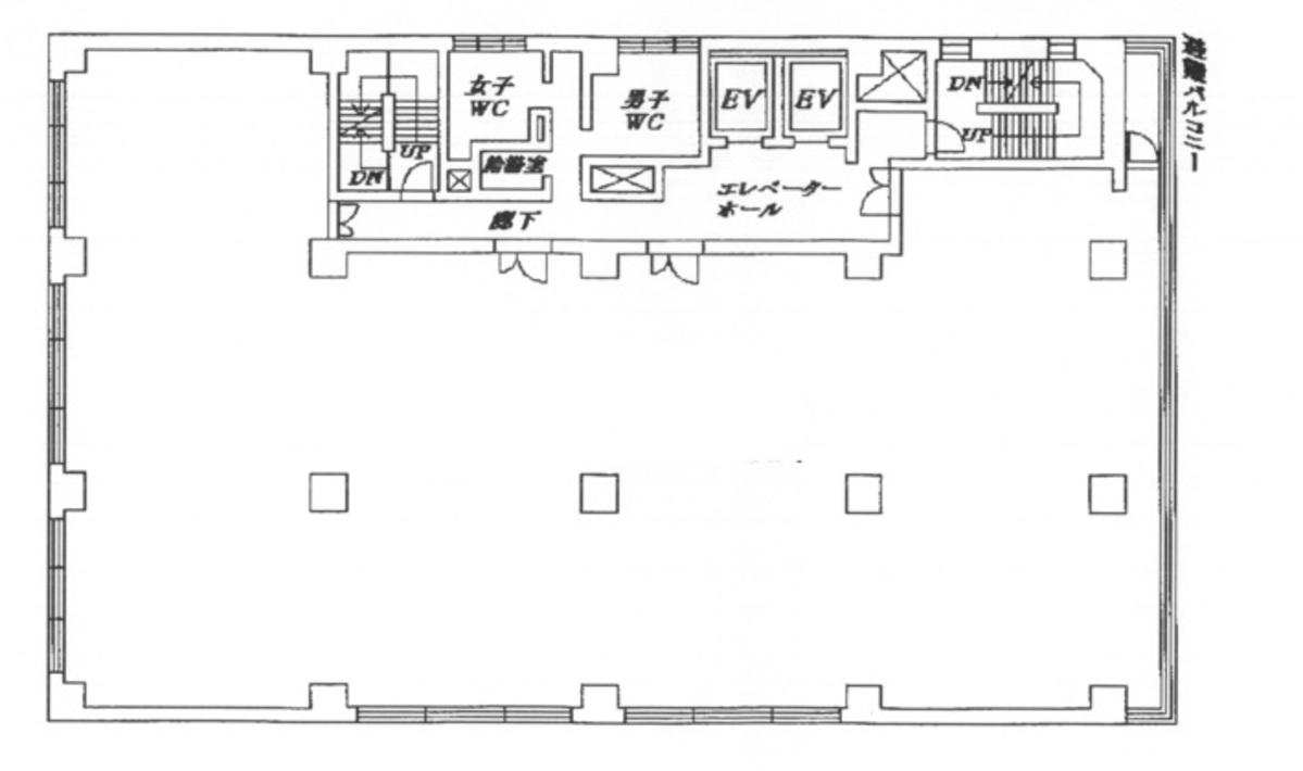
設備詳細
| 空調 | 個別空調 |
|---|---|
| トイレ | 男女別トイレ / 男女別トイレ室外 |
| 床仕様 | OA対応床(フリーアクセス) |
| エレベータ | 2 基 / エレベーター有 |
| 駐車場設備 | 敷地内駐車場 |
| その他 | 24時間利用可 / 光ファイバー / 新耐震基準 / 管理人常駐 / 機械警備 |
WISE NEXT 新横浜の賃貸オフィス・事務所に関するお問い合わせ
WISE NEXT 新横浜について
1階の郵便局が目印!利便性抜群のオフィスビル!新横浜駅徒歩すぐの好立地です。エントランスは階段がございますが、バリアフリー化としてスロープも付いております。エントランス・共用部はリニューアルしており、非常に豪華な印象を与えております。室内は幅広い面積で分割されているお部屋もあり、使い勝手の自由度が高く、OAフロアや機械警備などの設備も充実しております。お手洗いは共用部分にあり、男女別トイレとなっております。女性の社員様にもご安心してお使い頂けるビルとなっております。
自分で探すより問い合わせる方が早いことがあります
WEB非公開物件があるから
オーナー様のご希望により「WEBでは非公開」にしている物件があります。 それらはWEBでいくら検索しても見つかりません。 先ずは条件などお知らせ頂けましたら非公開物件含め ピッタリのオフィスをご提案させて頂きます。 無理なお勧めはしておりませんので、お気軽にお問い合わせください。
WEBから条件問い合わせをする(無料)
対面でのご相談も受け付けております
ご来店も歓迎です
オフィス移転は社内・社外ともに非公開に行われることが殆どです。そのためアットオフィスでは、基本的に訪問によるコンサルティングを行っておりますが、ご来店の相談も歓迎です。お一人おひとりに親身にご対応させて頂きたい為、要予約とさせて頂いております。ご来店の際は先ずは下記よりご予約下さい。
来店予約をする
募集終了のテナント区画
| 階数 | 坪数 | 賃料 + 共益費 | 敷金/礼金敷金 礼金 | 検討 |
|---|---|---|---|---|
| 2階 | 31.68坪 (104.73m²) | 募集終了 | - | - |
| 2階 | 77.76坪 (257.06m²) | 募集終了 | - | - |
| 2階 | 43.1坪 (142.48m²) | 募集終了 | - | - |
| 3階 | 152.54坪 (504.26m²) | 募集終了 | - | - |
| 4階 | 134.31坪 (444m²) | 募集終了 | - | - |
| 4階 | 40.55坪 (134.04m²) | 募集終了 | - | - |
| 4階 | 65.88坪 (217.79m²) | 募集終了 | - | - |
| 4階 | 27.88坪 (92.17m²) | 募集終了 | - | - |
| 5階 | 106.46坪 (351.93m²) | 募集終了 | - | - |
| 5階 | 27.88坪 (92.17m²) | 募集終了 | - | - |
| 5階 | 14.44坪 (47.74m²) | 募集終了 | - | - |
| 5階 | 12.17坪 (40.23m²) | 募集終了 | - | - |
| 5階 | 12.55坪 (41.49m²) | 募集終了 | - | - |
| 5階 | 27.88坪 (92.16m²) | 募集終了 | - | - |
| 6階 | 27.88坪 (92.17m²) | 募集終了 | - | - |
| 6階 | 40.55坪 (134.05m²) | 募集終了 | - | - |
| 6階 | 27.88坪 (92.17m²) | 募集終了 | - | - |
| 6階 | 14.22坪 (47.01m²) | 募集終了 | - | - |
| 6階 | 12.55坪 (41.49m²) | 募集終了 | - | - |
| 6階 | 43.1坪 (142.23m²) | 募集終了 | - | - |
| 7階 | 43坪 (142.15m²) | 募集終了 | - | - |
| 7階 | 40.55坪 (134.05m²) | 募集終了 | - | - |
| 7階 | 27.88坪 (92.17m²) | 募集終了 | - | - |
| 7階 | 27.88坪 (92.17m²) | 募集終了 | - | - |
| 7階 | 14.22坪 (47.01m²) | 募集終了 | - | - |
| 7階 | 12.55坪 (41.49m²) | 募集終了 | - | - |
| 7階 | 21.27坪 (70.31m²) | 募集終了 | - | - |
| 8階 | 37.79坪 (124.92m²) | 募集終了 | - | - |
| 8階 | 43.1坪 (142.48m²) | 募集終了 | - | - |
| 8階 | 40.55坪 (134.05m²) | 募集終了 | - | - |
| 8階 | 14.16坪 (48.23m²) | 募集終了 | - | - |
| 8階 | 12.44坪 (41.12m²) | 募集終了 | - | - |
| 9階 | 125.44坪 (414.68m²) | 募集終了 | - | - |
| 9階 | 106.46坪 (351.93m²) | 募集終了 | - | - |
| 9階 | 74.78坪 (247.23m²) | 募集終了 | - | - |
| 9階 | 20.41坪 (67.47m²) | 募集終了 | - | - |
| 9階 | 31.83坪 (105.22m²) | 募集終了 | - | - |
| 9階 | 17.04坪 (56.33m²) | 募集終了 | - | - |
| 9階 | 15.53坪 (51.33m²) | 募集終了 | - | - |
読込中...
港北区エリアでWISE NEXT 新横浜に似た条件の物件
読込中...
| 取扱様態 | 仲介 |
|---|---|
| 取扱会社 | 株式会社 アットオフィス |