※このサイトに記載がある賃貸条件は、敷金・保証金などの預かり金を除き、別途消費税がかかります。
物件情報
設備詳細
| 空調 | - |
|---|---|
| トイレ | 男女共用トイレ・室内 |
| 床仕様 | OA対応床(フリーアクセス) |
| エレベータ | 1 基 |
| 駐車場設備 | - |
| その他 | 新耐震基準 / 光ファイバー / 24時間利用可 |
ウエストワールドビルの賃貸オフィス・事務所に関するお問い合わせ
ウエストワールドビルについて
ウエストワールドビルへようこそ!当ビルは品川区東五反田3丁目、桜田通り沿いの地上9階建てのオフィスビルです。スタイリッシュな外観が特徴のこのビルは、1990年に竣工された耐震性に優れた鉄筋コンクリート造で、光ファイバー対応の最先端設備を備えています。品川駅から徒歩約10分、五反田駅からも同じく徒歩約10分という駅近物件で、都営浅草線「高輪台駅」からはわずか徒歩1分という絶好の立地を誇ります。 ウエストワールドビルは、基準階約22.4坪の賃貸オフィスが特徴で、光溢れるガラスカーテンウォールの外観が視認性を高めており、ビジネスの顔として最適な印象を与えます。1フロアを1テナントで利用可能なので、プライバシーと独立性が重視される企業にも最適です。また、個別空調と1基のエレベーター、男女共用トイレを完備。24時間利用可能で、教室やフィットネス施設としても利用できる柔軟性を持っています。 周辺環境も魅力的です。ビルの1階と2階には飲食店が入居しており、近隣にはコンビニ、郵便局、銀行などがあります。また、徒歩圏内にはランチスポットや大型ホテルが並ぶエリアがあり、ビジネスだけでなく、日常の利便性も高いです。品川駅や五反田駅を利用することで、都心や羽田空港へのアクセスも容易で、ビジネスチャンスを広げる絶好の立地条件を備えています。 ウエストワールドビルは、その機能性と利便性を兼ね備えたオフィスビルとして、あなたのビジネスをサポートします。バルコニー付きのオフィスからは、東京の景色を一望でき、働く環境としても魅力的な空間を提供します。オフィスをお探しの方、ぜひウエストワールドビルを訪れてみてください。ここは、あなたのビジネスの成長と成功のための最適な場所です。
ウエストワールドビルのこだわり
自分で探すより問い合わせる方が早いことがあります
WEB非公開物件があるから
オーナー様のご希望により「WEBでは非公開」にしている物件があります。 それらはWEBでいくら検索しても見つかりません。 先ずは条件などお知らせ頂けましたら非公開物件含め ピッタリのオフィスをご提案させて頂きます。 無理なお勧めはしておりませんので、お気軽にお問い合わせください。
対面でのご相談も受け付けております
ご来店も歓迎です
オフィス移転は社内・社外ともに非公開に行われることが殆どです。そのためアットオフィスでは、基本的に訪問によるコンサルティングを行っておりますが、ご来店の相談も歓迎です。お一人おひとりに親身にご対応させて頂きたい為、要予約とさせて頂いております。ご来店の際は先ずは下記よりご予約下さい。
募集終了のテナント区画
| 階数 | 坪数 | 賃料 + 共益費 | 敷金/礼金敷金 礼金 | 検討 |
|---|---|---|---|---|
| 2階 | 14坪 (46.28m²) | 募集終了 | - | - |
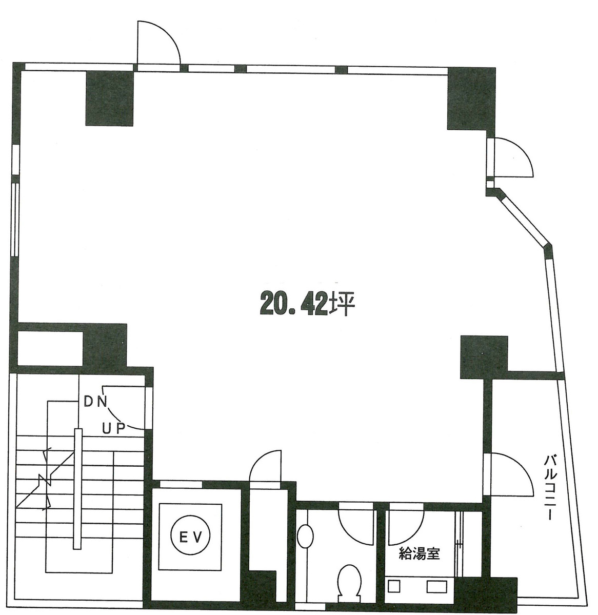
| 3階 | 20.42坪 (67.53m²) | 募集終了 | - | - |
| 4階 | 20.43坪 (67.53m²) | 募集終了 | - | - |
| 5階 | 20.42坪 (67.5m²) | 募集終了 | - | - |
| 7階 | 20.42坪 (67.5m²) | 募集終了 | - | - |
| 8階 | 20.42坪 (67.53m²) | 募集終了 | - | - |
| 9階 | 20.42坪 (67.5m²) | 募集終了 | - | - |
読込中...
五反田エリアでウエストワールドビルに似た条件の物件
読込中...
| 取扱様態 | 仲介 |
|---|---|
| 取扱会社 | 株式会社 アットオフィス |