アートヒルズ成瀬3階の賃貸情報
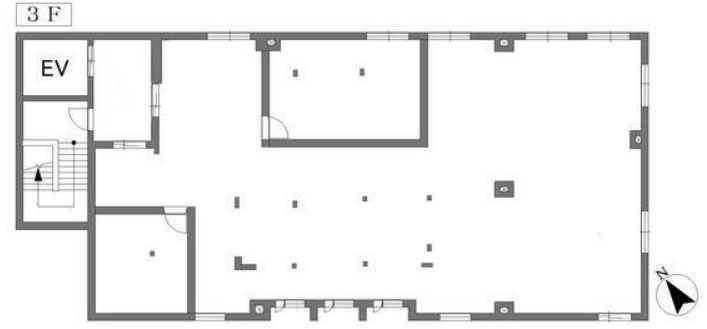
66.55 坪 (220m²)
1,000,000円 (坪:15,026 円)
※このサイトに記載がある賃貸条件は、敷金・保証金などの預かり金を除き、別途消費税がかかります。
設備詳細
| 空調 | - |
|---|---|
| トイレ | - |
| 床仕様 | - |
| エレベータ | 1 基 |
| 駐車場設備 | - |
| その他 | クリニック |
アートヒルズ成瀬3階の賃貸オフィス・事務所に関するお問い合わせ
アートヒルズ成瀬について
町田市成瀬が丘2丁目に立地するアートヒルズ成瀬は、地上3階建ての建物です。横浜線「成瀬駅」から徒歩2分という駅近の環境にあり、東急田園都市線「つくし野駅」も利用でき、複数路線を活用した通勤や来客への対応が可能です。 館内にはエレベーターが1基設置されており、フロア移動もスムーズです。交通アクセスの選択肢があるため、従業員の通勤や取引先の来訪にも配慮しやすい環境となっています。オフィスや事業拠点としてご検討いただけます。
アートヒルズ成瀬のこだわり
自分で探すより問い合わせる方が早いことがあります
WEB非公開物件があるから
オーナー様のご希望により「WEBでは非公開」にしている物件があります。 それらはWEBでいくら検索しても見つかりません。 先ずは条件などお知らせ頂けましたら非公開物件含め ピッタリのオフィスをご提案させて頂きます。 無理なお勧めはしておりませんので、お気軽にお問い合わせください。
対面でのご相談も受け付けております
ご来店も歓迎です
オフィス移転は社内・社外ともに非公開に行われることが殆どです。そのためアットオフィスでは、基本的に訪問によるコンサルティングを行っておりますが、ご来店の相談も歓迎です。お一人おひとりに親身にご対応させて頂きたい為、要予約とさせて頂いております。ご来店の際は先ずは下記よりご予約下さい。
町田市エリアでアートヒルズ成瀬に似た条件の物件
読込中...
アートヒルズ成瀬と同じ最寄駅の物件
読込中...
| 取扱様態 | 仲介 |
|---|---|
| 取扱会社 | 株式会社 アットオフィス |