Syncs Meguro Bldgの賃料条件
| 階数 | 坪数 | 賃料 + 共益費 | 敷金/礼金敷金 礼金 | 検討 |
|---|---|---|---|---|
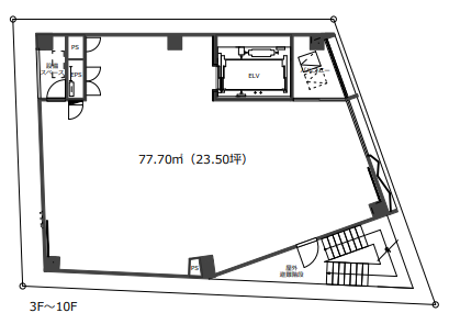
| 3階 | 23.5坪 (77.7m²) | お問合せ下さい (坪:-) | 6ヶ月 2ヶ月6ヶ月/2ヶ月 | |
| 4階 | 23.5坪 (77.7m²) | お問合せ下さい (坪:-) | 6ヶ月 2ヶ月6ヶ月/2ヶ月 | |
| 5階 | 23.5坪 (77.7m²) | お問合せ下さい (坪:-) | 6ヶ月 2ヶ月6ヶ月/2ヶ月 | |
| 6階 | 23.5坪 (77.7m²) | お問合せ下さい (坪:-) | 6ヶ月 2ヶ月6ヶ月/2ヶ月 | |
| 7階 | 23.5坪 (77.7m²) | お問合せ下さい (坪:-) | 6ヶ月 2ヶ月6ヶ月/2ヶ月 | |
| 8階 | 23.5坪 (77.7m²) | お問合せ下さい (坪:-) | 6ヶ月 2ヶ月6ヶ月/2ヶ月 | |
| 9階 | 23.5坪 (77.7m²) | お問合せ下さい (坪:-) | 6ヶ月 2ヶ月6ヶ月/2ヶ月 | |
| 10階 | 23.5坪 (77.7m²) | お問合せ下さい (坪:-) | 6ヶ月 2ヶ月6ヶ月/2ヶ月 | |
| 11階 | 20.78坪 (68.7m²) | お問合せ下さい (坪:-) | 6ヶ月 2ヶ月6ヶ月/2ヶ月 |
※このサイトに記載がある賃貸条件は、敷金・保証金などの預かり金を除き、別途消費税がかかります。
物件情報
設備詳細
| 空調 | - |
|---|---|
| トイレ | - |
| 床仕様 | - |
| エレベータ | 1 基 |
| 駐車場設備 | - |
| その他 | クリニックモール / 築年数1年以内 / クリニック |
Syncs Meguro Bldgの賃貸オフィス・事務所に関するお問い合わせ
Syncs Meguro Bldgについて
Syncs Meguro Bldgは、品川区上大崎2丁目に位置し、地上11階建ての建物です。山手線「目黒駅」から徒歩1分、三田線および南北線「目黒駅」からも徒歩2分の距離にあり、複数路線を利用できる立地にあります。通勤や来客時の動線を想定した場合、駅から建物までの距離が短いため、交通手段の選択肢が多いエリアに位置している点が特徴です。 建物にはエレベーターが1基設置されており、上下階の移動が必要なオフィスやサービス拠点など、様々な用途に対応できる構造となっています。地上11階建ての規模であるため、フロアごとに分割した利用や、ワンフロアでの利用を検討する際にも柔軟性が見込まれます。また、複数階にわたるレイアウトが可能なことから、組織の規模や業務内容に応じた空間設計が行えます。 周辺にはオフィスビルや商業施設が点在しており、ビジネス拠点としての利用を想定する際に、周囲の都市機能との連携も考えられます。駅からのアクセス経路には複数の選択肢があり、来訪者や従業員が駅から建物までの導線を選択しやすい点も特徴に挙げられます。詳細はお問い合わせください。
Syncs Meguro Bldgのこだわり
自分で探すより問い合わせる方が早いことがあります
WEB非公開物件があるから
オーナー様のご希望により「WEBでは非公開」にしている物件があります。 それらはWEBでいくら検索しても見つかりません。 先ずは条件などお知らせ頂けましたら非公開物件含め ピッタリのオフィスをご提案させて頂きます。 無理なお勧めはしておりませんので、お気軽にお問い合わせください。
対面でのご相談も受け付けております
ご来店も歓迎です
オフィス移転は社内・社外ともに非公開に行われることが殆どです。そのためアットオフィスでは、基本的に訪問によるコンサルティングを行っておりますが、ご来店の相談も歓迎です。お一人おひとりに親身にご対応させて頂きたい為、要予約とさせて頂いております。ご来店の際は先ずは下記よりご予約下さい。
読込中...
品川/大崎/大井エリアでSyncs Meguro Bldgに似た条件の物件
読込中...
| 取扱様態 | 仲介 |
|---|---|
| 取扱会社 | 株式会社 アットオフィス |