VORT吉祥寺駅前3階の賃貸情報
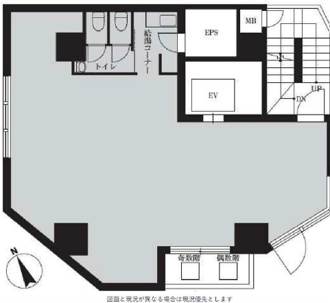
23.13 坪 (76.48m²)
お問合せ下さい (坪:-)
※このサイトに記載がある賃貸条件は、敷金・保証金などの預かり金を除き、別途消費税がかかります。
VORT吉祥寺駅前の建物概要
設備詳細
| 空調 | - |
|---|---|
| トイレ | - |
| 床仕様 | - |
| エレベータ | - |
| 駐車場設備 | - |
| その他 | 築年数1年以内 / クリニック / 店舗可(飲食不可) |
VORT吉祥寺駅前3階の賃貸オフィス・事務所に関するお問い合わせ
VORT吉祥寺駅前について
VORT吉祥寺駅前は、武蔵野市吉祥寺本町1丁目に位置する地上10階地下1階建ての事業用賃貸ビルです。中央線「吉祥寺駅」から徒歩2分、井の頭線「吉祥寺駅」から徒歩3分という駅に近い立地となっており、周辺には多様な店舗やオフィスが集まっています。複数路線が利用できるため、来訪者や従業員の移動手段も検討しやすい環境です。 建物は地上10階建てで、各階の使い方を分けて考えられる構造となっています。地下1階も備わっており、用途に応じたスペースの検討が可能です。オフィス利用やサービス業など、業種に応じたレイアウト計画を立てやすい点が特徴です。 吉祥寺本町1丁目というエリアの特性上、人の流れや街の活気を意識した事業展開を検討される方にも合った物件です。駅からのアクセスのしやすさや周囲の環境を活かし、来客対応や従業員の動線にも配慮したオフィス設計が可能です。詳細はお問い合わせください。
その他の区画
| 階数 | 坪数 | 賃料 + 共益費 | 敷金/礼金敷金 礼金 | 検討 |
|---|---|---|---|---|
| 10階 | 23.13坪 (76.48m²) | お問合せ下さい (坪:-) | 5ヶ月 無5ヶ月/無 | |
| 2階 | 22.83坪 (75.5m²) | お問合せ下さい (坪:-) | 10ヶ月 無10ヶ月/無 | |
| 4階 | 23.13坪 (76.48m²) | お問合せ下さい (坪:-) | 5ヶ月 無5ヶ月/無 | |
| 5階 | 23.13坪 (76.48m²) | お問合せ下さい (坪:-) | 5ヶ月 無5ヶ月/無 | |
| 6階 | 23.13坪 (76.48m²) | お問合せ下さい (坪:-) | 5ヶ月 無5ヶ月/無 | |
| 7階 | 23.13坪 (76.48m²) | お問合せ下さい (坪:-) | 5ヶ月 無5ヶ月/無 | |
| 8階 | 23.13坪 (76.48m²) | お問合せ下さい (坪:-) | 5ヶ月 無5ヶ月/無 | |
| 9階 | 23.13坪 (76.48m²) | お問合せ下さい (坪:-) | 5ヶ月 無5ヶ月/無 |
自分で探すより問い合わせる方が早いことがあります
WEB非公開物件があるから
オーナー様のご希望により「WEBでは非公開」にしている物件があります。 それらはWEBでいくら検索しても見つかりません。 先ずは条件などお知らせ頂けましたら非公開物件含め ピッタリのオフィスをご提案させて頂きます。 無理なお勧めはしておりませんので、お気軽にお問い合わせください。
対面でのご相談も受け付けております
ご来店も歓迎です
オフィス移転は社内・社外ともに非公開に行われることが殆どです。そのためアットオフィスでは、基本的に訪問によるコンサルティングを行っておりますが、ご来店の相談も歓迎です。お一人おひとりに親身にご対応させて頂きたい為、要予約とさせて頂いております。ご来店の際は先ずは下記よりご予約下さい。
武蔵野市エリアでVORT吉祥寺駅前に似た条件の物件
読込中...
VORT吉祥寺駅前と同じ最寄駅の物件
読込中...
| 取扱様態 | 仲介 |
|---|---|
| 取扱会社 | 株式会社 アットオフィス |