高栄鉄工ビル1階の賃貸情報
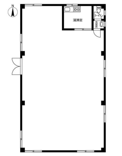
40.83 坪 (135m²)
220,000円 (坪:5,388 円)
※このサイトに記載がある賃貸条件は、敷金・保証金などの預かり金を除き、別途消費税がかかります。
高栄鉄工ビルの建物概要
設備詳細
| 空調 | - |
|---|---|
| トイレ | - |
| 床仕様 | - |
| エレベータ | - |
| 駐車場設備 | 空有 |
| その他 | 新耐震基準 / 1階の物件 / 保証金・敷金+礼金が3か月以下 / 東京賃料が坪11000円以下 |
高栄鉄工ビル1階の賃貸オフィス・事務所に関するお問い合わせ
高栄鉄工ビルについて
町田市高ヶ坂6丁目に位置する高栄鉄工ビルは、横浜線「町田駅」から徒歩15分の場所に建つ事業用賃貸物件です。建物は地上2階建てで、各種事業活動の拠点としてご利用いただけます。落ち着いた住宅街の一角にあり、周辺には地域密着型の事業を展開しやすい環境が広がっています。町田駅からの道のりは通勤や来客にも配慮した距離感で、都心へのアクセスも容易なエリアとなっています。高栄鉄工ビルは、事務所や倉庫、軽作業スペースとしての活用を想定しやすい造りであり、用途に応じたレイアウト変更や業務スタイルの導入も検討可能です。建物前面の道路状況も事業運営における車両の出入りや搬入・搬出を想定しやすく、日々の業務において実用的な環境が整っています。周辺の町田市エリアは、地域に根ざしたビジネスを展開する事業者にとって、拠点としての選択肢の一つと言えるでしょう。詳細はお問い合わせください。
高栄鉄工ビルのこだわり
自分で探すより問い合わせる方が早いことがあります
WEB非公開物件があるから
オーナー様のご希望により「WEBでは非公開」にしている物件があります。 それらはWEBでいくら検索しても見つかりません。 先ずは条件などお知らせ頂けましたら非公開物件含め ピッタリのオフィスをご提案させて頂きます。 無理なお勧めはしておりませんので、お気軽にお問い合わせください。
対面でのご相談も受け付けております
ご来店も歓迎です
オフィス移転は社内・社外ともに非公開に行われることが殆どです。そのためアットオフィスでは、基本的に訪問によるコンサルティングを行っておりますが、ご来店の相談も歓迎です。お一人おひとりに親身にご対応させて頂きたい為、要予約とさせて頂いております。ご来店の際は先ずは下記よりご予約下さい。
町田市エリアで高栄鉄工ビルに似た条件の物件
読込中...
高栄鉄工ビルと同じ最寄駅の物件
読込中...
| 取扱様態 | 仲介 |
|---|---|
| 取扱会社 | 株式会社 アットオフィス |