大谷田4丁目ビル1階の賃貸情報
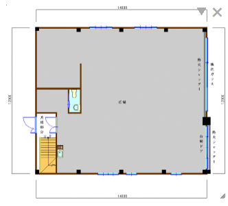
48.44 坪 (160.16m²)
500,000円 (坪:10,322 円)
※このサイトに記載がある賃貸条件は、敷金・保証金などの預かり金を除き、別途消費税がかかります。
大谷田4丁目ビルの建物概要
設備詳細
| 空調 | - |
|---|---|
| トイレ | - |
| 床仕様 | - |
| エレベータ | - |
| 駐車場設備 | - |
| その他 | 24時間利用可 / 新耐震基準 / 1階の物件 / クリニック / 店舗可(飲食不可) / スケルトン / 東京賃料が坪11000円以下 |
大谷田4丁目ビル1階の賃貸オフィス・事務所に関するお問い合わせ
大谷田4丁目ビルについて
足立区大谷田4丁目に位置する「大谷田4丁目ビル」は、東京地下鉄千代田線「北綾瀬駅」から徒歩14分の場所にあります。地上2階建てで構成されており、周辺は落ち着いた住宅街が広がる環境です。建物は新耐震基準を満たしているため、建築基準法に沿った構造となっています。 24時間利用が可能な点が特徴で、時間にとらわれず利用したい企業や団体に対応できる仕様です。業務形態やワークスタイルにあわせて、早朝や夜間の稼働が必要な場合にも柔軟な運用が可能です。 また、住環境と調和した立地となっていることから、穏やかな環境のもとで事業活動が行えます。周辺には必要な生活インフラも揃っており、駅からのアクセスも確保されています。 詳細はお問い合わせください。
自分で探すより問い合わせる方が早いことがあります
WEB非公開物件があるから
オーナー様のご希望により「WEBでは非公開」にしている物件があります。 それらはWEBでいくら検索しても見つかりません。 先ずは条件などお知らせ頂けましたら非公開物件含め ピッタリのオフィスをご提案させて頂きます。 無理なお勧めはしておりませんので、お気軽にお問い合わせください。
対面でのご相談も受け付けております
ご来店も歓迎です
オフィス移転は社内・社外ともに非公開に行われることが殆どです。そのためアットオフィスでは、基本的に訪問によるコンサルティングを行っておりますが、ご来店の相談も歓迎です。お一人おひとりに親身にご対応させて頂きたい為、要予約とさせて頂いております。ご来店の際は先ずは下記よりご予約下さい。
足立区エリアで大谷田4丁目ビルに似た条件の物件
読込中...
大谷田4丁目ビルと同じ最寄駅の物件
読込中...
| 取扱様態 | 仲介 |
|---|---|
| 取扱会社 | 株式会社 アットオフィス |