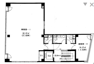
K-2ビル4階の賃貸情報
39.29 坪 (129.91m²)
687,575円 (坪:17,500 円)
※このサイトに記載がある賃貸条件は、敷金・保証金などの預かり金を除き、別途消費税がかかります。
K-2ビルの建物概要
設備詳細
| 空調 | 個別空調 |
|---|---|
| トイレ | 男女別トイレ室内 |
| 床仕様 | - |
| エレベータ | 1 基 |
| 駐車場設備 | - |
| その他 | 24時間利用可 / 新耐震基準 |
K-2ビル4階の賃貸オフィス・事務所に関するお問い合わせ
K-2ビルについて
K-2は、品川区大井1丁目に位置する事業用賃貸物件です。京浜東北・根岸線、東海道線、東急大井町線の「大井町駅」からいずれも徒歩3分の距離にあり、複数路線を利用できる点が特徴です。周辺エリアは商業施設やオフィスが集まる地域で、駅から建物までのアクセスが平坦な道のりとなっています。建物は地上5階、地下1階で構成されており、エレベーターが1基設置されていますので、各フロアへの移動も行いやすい設計です。24時間利用が可能なため、入居テナントは自社の運用スタイルに合わせた時間帯での利用ができます。また、新耐震基準に適合している建物ですので、構造面にも配慮されています。オフィスや店舗など、様々な事業活動の拠点として検討される際には、立地と環境を直接ご確認いただくことをおすすめします。詳細はお問い合わせください。
自分で探すより問い合わせる方が早いことがあります
WEB非公開物件があるから
オーナー様のご希望により「WEBでは非公開」にしている物件があります。 それらはWEBでいくら検索しても見つかりません。 先ずは条件などお知らせ頂けましたら非公開物件含め ピッタリのオフィスをご提案させて頂きます。 無理なお勧めはしておりませんので、お気軽にお問い合わせください。
対面でのご相談も受け付けております
ご来店も歓迎です
オフィス移転は社内・社外ともに非公開に行われることが殆どです。そのためアットオフィスでは、基本的に訪問によるコンサルティングを行っておりますが、ご来店の相談も歓迎です。お一人おひとりに親身にご対応させて頂きたい為、要予約とさせて頂いております。ご来店の際は先ずは下記よりご予約下さい。
品川/大崎/大井エリアでK-2ビルに似た条件の物件
読込中...
K-2ビルと同じ最寄駅の物件
読込中...
| 取扱様態 | 仲介 |
|---|---|
| 取扱会社 | 株式会社 アットオフィス |