※このサイトに記載がある賃貸条件は、敷金・保証金などの預かり金を除き、別途消費税がかかります。
物件情報
設備詳細
| 空調 | - |
|---|---|
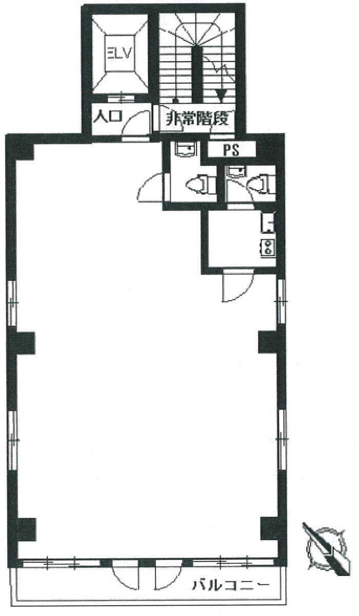
| トイレ | 男女別トイレ室内 |
| 床仕様 | - |
| エレベータ | 1 基 |
| 駐車場設備 | - |
| その他 | 光ファイバー |
中村屋ビルの賃貸オフィス・事務所に関するお問い合わせ
中村屋ビルについて
中村屋ビルは、東京都品川区西五反田8丁目に位置する賃貸オフィスビルです。この物件は、1981年に竣工された11階建ての建物で、外観はレトロ感溢れる茶色のレンガ造りとなっています。ビル内にはエレベーターが1機設置されており、各階へのアクセスが容易になっています。また、男女別のトイレ設備が完備されており、小規模オフィスにおいても利便性が高く評価されています。 立地に関しては、大崎広小路駅から徒歩2分、五反田駅からも徒歩圏内の距離にあり、3駅以上の利用が可能な好立地に位置しています。これにより、東京都内の主要なビジネスエリアへのアクセスが非常に良好であり、従業員や来客の利便性が高まります。また、大通り沿いに位置しているため、視認性に優れ、企業のブランドイメージ向上にも寄与します。 周辺環境も非常に充実しており、目の前には大型商業施設の建設予定があり、今後のバリューアップが期待できる立地です。さらに、セブンイレブン、りそな銀行五反田支店、カフェ・ベローチェ西五反田店など、日常の業務に必要な施設が徒歩圏内に揃っており、ビジネス環境として理想的です。 中村屋ビルの最大の特徴として、そのレトロで落ち着いた雰囲気は、ビジネスの場としてだけでなく、クリエイティブな活動や来店型サービスの提供にも最適な空間を提供しています。ワンフロア20坪台のコンパクトながらも、レイアウトの自由度が高いオフィス空間は、小規模ながらも効率的な業務遂行を可能にします。 このように中村屋ビルは、その立地、設備、周辺環境の三つの面でビジネスの成功をサポートする要素を兼ね備えています。ビルの特色を活かし、企業のアイデンティティを形成するためのオフィス空間として、また、将来的な価値向上も見込める投資対象としても非常に魅力的です。
中村屋ビルのこだわり
自分で探すより問い合わせる方が早いことがあります
WEB非公開物件があるから
オーナー様のご希望により「WEBでは非公開」にしている物件があります。 それらはWEBでいくら検索しても見つかりません。 先ずは条件などお知らせ頂けましたら非公開物件含め ピッタリのオフィスをご提案させて頂きます。 無理なお勧めはしておりませんので、お気軽にお問い合わせください。
対面でのご相談も受け付けております
ご来店も歓迎です
オフィス移転は社内・社外ともに非公開に行われることが殆どです。そのためアットオフィスでは、基本的に訪問によるコンサルティングを行っておりますが、ご来店の相談も歓迎です。お一人おひとりに親身にご対応させて頂きたい為、要予約とさせて頂いております。ご来店の際は先ずは下記よりご予約下さい。
募集終了のテナント区画
| 階数 | 坪数 | 賃料 + 共益費 | 敷金/礼金敷金 礼金 | 検討 |
|---|---|---|---|---|
| 2階 | 28.4坪 (93.72m²) | 募集終了 | - | - |
| 3階 | 26.6坪 (87.93m²) | 募集終了 | - | - |
| 5階 | 26.6坪 (87.88m²) | 募集終了 | - | - |
| 6階 | 25.82坪 (85.34m²) | 募集終了 | - | - |
| 7階 | 26.6坪 (87.7m²) | 募集終了 | - | - |
| 8階 | 26.6坪 (87.93m²) | 募集終了 | - | - |
| 9階 | 26.6坪 (87.93m²) | 募集終了 | - | - |
| 10階 | 26.6坪 (87.93m²) | 募集終了 | - | - |
| 10階 | 23.59坪 (78m²) | 募集終了 | - | - |
読込中...
五反田エリアで中村屋ビルに似た条件の物件
読込中...
| 取扱様態 | 仲介 |
|---|---|
| 取扱会社 | 株式会社 アットオフィス |