パークファミリー聖蹟桜ヶ丘第21階の賃貸情報
44.96 坪 (148.63m²)
300,000円 (坪:6,672 円)
※このサイトに記載がある賃貸条件は、敷金・保証金などの預かり金を除き、別途消費税がかかります。
パークファミリー聖蹟桜ヶ丘第2の建物概要
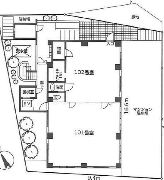
設備詳細
| 空調 | 個別空調 |
|---|---|
| トイレ | 男女共用トイレ・室内 |
| 床仕様 | - |
| エレベータ | - |
| 駐車場設備 | 空有 |
| その他 | 24時間利用可 / 新耐震基準 / 1階の物件 / 東京賃料が坪11000円以下 |
パークファミリー聖蹟桜ヶ丘第21階の賃貸オフィス・事務所に関するお問い合わせ
パークファミリー聖蹟桜ヶ丘第2について
多摩市関戸2丁目に位置する「パークファミリー聖蹟桜ヶ丘第2」は、地上5階建ての事業用賃貸建物です。最寄り駅は京王電鉄京王線「聖蹟桜ヶ丘駅」で、徒歩6分の距離にあります。また、京王線「中河原駅」も徒歩15分圏内にあり、複数の駅を利用できる立地です。周辺は住宅や商業施設が集まり、ビジネスの拠点として利用しやすい環境にあります。建物は24時間の利用が可能で、さまざまな業種の事務所や拠点として柔軟な運用ができます。新耐震基準に適合しているため、建物の構造面にも一定の基準が満たされています。用途や規模に応じて、事務所や営業所、サテライトオフィスなど多様な利用が想定できます。ご質問や詳細についてはお問い合わせください。
自分で探すより問い合わせる方が早いことがあります
WEB非公開物件があるから
オーナー様のご希望により「WEBでは非公開」にしている物件があります。 それらはWEBでいくら検索しても見つかりません。 先ずは条件などお知らせ頂けましたら非公開物件含め ピッタリのオフィスをご提案させて頂きます。 無理なお勧めはしておりませんので、お気軽にお問い合わせください。
対面でのご相談も受け付けております
ご来店も歓迎です
オフィス移転は社内・社外ともに非公開に行われることが殆どです。そのためアットオフィスでは、基本的に訪問によるコンサルティングを行っておりますが、ご来店の相談も歓迎です。お一人おひとりに親身にご対応させて頂きたい為、要予約とさせて頂いております。ご来店の際は先ずは下記よりご予約下さい。
多摩市エリアでパークファミリー聖蹟桜ヶ丘第2に似た条件の物件
読込中...
パークファミリー聖蹟桜ヶ丘第2と同じ最寄駅の物件
読込中...
| 取扱様態 | 仲介 |
|---|---|
| 取扱会社 | 株式会社 アットオフィス |