グリーンシンフォニービル1階の賃貸情報
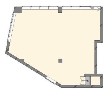
40.5 坪 (133.9m²)
800,000円 (坪:19,753 円)
※このサイトに記載がある賃貸条件は、敷金・保証金などの預かり金を除き、別途消費税がかかります。
グリーンシンフォニービルの建物概要
設備詳細
| 空調 | - |
|---|---|
| トイレ | - |
| 床仕様 | - |
| エレベータ | 1 基 |
| 駐車場設備 | 空有 |
| その他 | 新耐震基準 / 1階の物件 / スケルトン / 店舗可(飲食不可) / クリニック |
グリーンシンフォニービル1階の賃貸オフィス・事務所に関するお問い合わせ
グリーンシンフォニービルについて
町田市森野1丁目に立地するグリーンシンフォニービルは、地上5階建てのオフィスビルです。エレベーターを1基備えており、2003年3月に竣工しています。新耐震基準に対応しているため、建物の安全性に配慮されています。 小田原線「町田駅」から徒歩4分、横浜線「町田駅」からも8分と、複数路線の利用が可能な環境です。日々の通勤や来客時などさまざまな場面で駅を使い分けることができます。法人オフィスとして、業務効率や通勤利便の両面に配慮したい企業に向いています。
自分で探すより問い合わせる方が早いことがあります
WEB非公開物件があるから
オーナー様のご希望により「WEBでは非公開」にしている物件があります。 それらはWEBでいくら検索しても見つかりません。 先ずは条件などお知らせ頂けましたら非公開物件含め ピッタリのオフィスをご提案させて頂きます。 無理なお勧めはしておりませんので、お気軽にお問い合わせください。
対面でのご相談も受け付けております
ご来店も歓迎です
オフィス移転は社内・社外ともに非公開に行われることが殆どです。そのためアットオフィスでは、基本的に訪問によるコンサルティングを行っておりますが、ご来店の相談も歓迎です。お一人おひとりに親身にご対応させて頂きたい為、要予約とさせて頂いております。ご来店の際は先ずは下記よりご予約下さい。
町田市エリアでグリーンシンフォニービルに似た条件の物件
読込中...
グリーンシンフォニービルと同じ最寄駅の物件
読込中...
| 取扱様態 | 仲介 |
|---|---|
| 取扱会社 | 株式会社 アットオフィス |