※現在2階に空きがございます。
林ビル川崎3階の賃貸情報
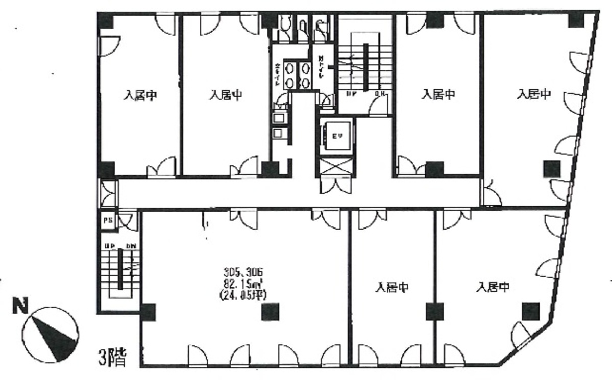
面積
24.85 坪 (82.15m²)
賃料
共益費-
敷金 / 礼金 / 保証金-
償却-
更新料-
※このサイトに記載がある賃貸条件は、敷金・保証金などの預かり金を除き、別途消費税がかかります。
林ビル川崎の建物概要
設備詳細
| 空調 | セントラル空調 |
|---|---|
| トイレ | - |
| 床仕様 | - |
| エレベータ | 1 基 |
| 駐車場設備 | - |
| その他 | 機械警備 / 24時間利用可 / 光ファイバー / 新耐震基準 / クリニック / 神奈川賃料が10000円以下 |
林ビル川崎3階の賃貸オフィス・事務所に関するお問い合わせ
林ビル川崎について
共用に水回りがあり使い勝手の良い物件!利便性も抜群!セキュリティ面も室内とエントランス前に整備されております。 川崎駅より徒歩10分以内で利用可能なビルになり、ご通勤にも便利です!エレベーターは1基ついており、事務所向けのビルです。 近隣に飲食店や銀行も多く、よく使うご業態の方にもおすすめです! エントランスも広く、圧迫感のないビルになります。
自分で探すより問い合わせる方が早いことがあります
WEB非公開物件があるから
オーナー様のご希望により「WEBでは非公開」にしている物件があります。 それらはWEBでいくら検索しても見つかりません。 先ずは条件などお知らせ頂けましたら非公開物件含め ピッタリのオフィスをご提案させて頂きます。 無理なお勧めはしておりませんので、お気軽にお問い合わせください。
WEBから条件問い合わせをする(無料)
対面でのご相談も受け付けております
ご来店も歓迎です
オフィス移転は社内・社外ともに非公開に行われることが殆どです。そのためアットオフィスでは、基本的に訪問によるコンサルティングを行っておりますが、ご来店の相談も歓迎です。お一人おひとりに親身にご対応させて頂きたい為、要予約とさせて頂いております。ご来店の際は先ずは下記よりご予約下さい。
来店予約をする
川崎区エリアで林ビル川崎に似た条件の物件
読込中...
林ビル川崎と同じ最寄駅の物件
読込中...
| 取扱様態 | 仲介 |
|---|---|
| 取扱会社 | 株式会社 アットオフィス |