※このサイトに記載がある賃貸条件は、敷金・保証金などの預かり金を除き、別途消費税がかかります。
物件情報
設備詳細
| 空調 | - |
|---|---|
| トイレ | - |
| 床仕様 | OA対応床(フリーアクセス) |
| エレベータ | 1 基 |
| 駐車場設備 | - |
| その他 | 機械警備 / 24時間利用可 / 光ファイバー / 新耐震基準 |
青山ルカビルの賃貸オフィス・事務所に関するお問い合わせ
青山ルカビルについて
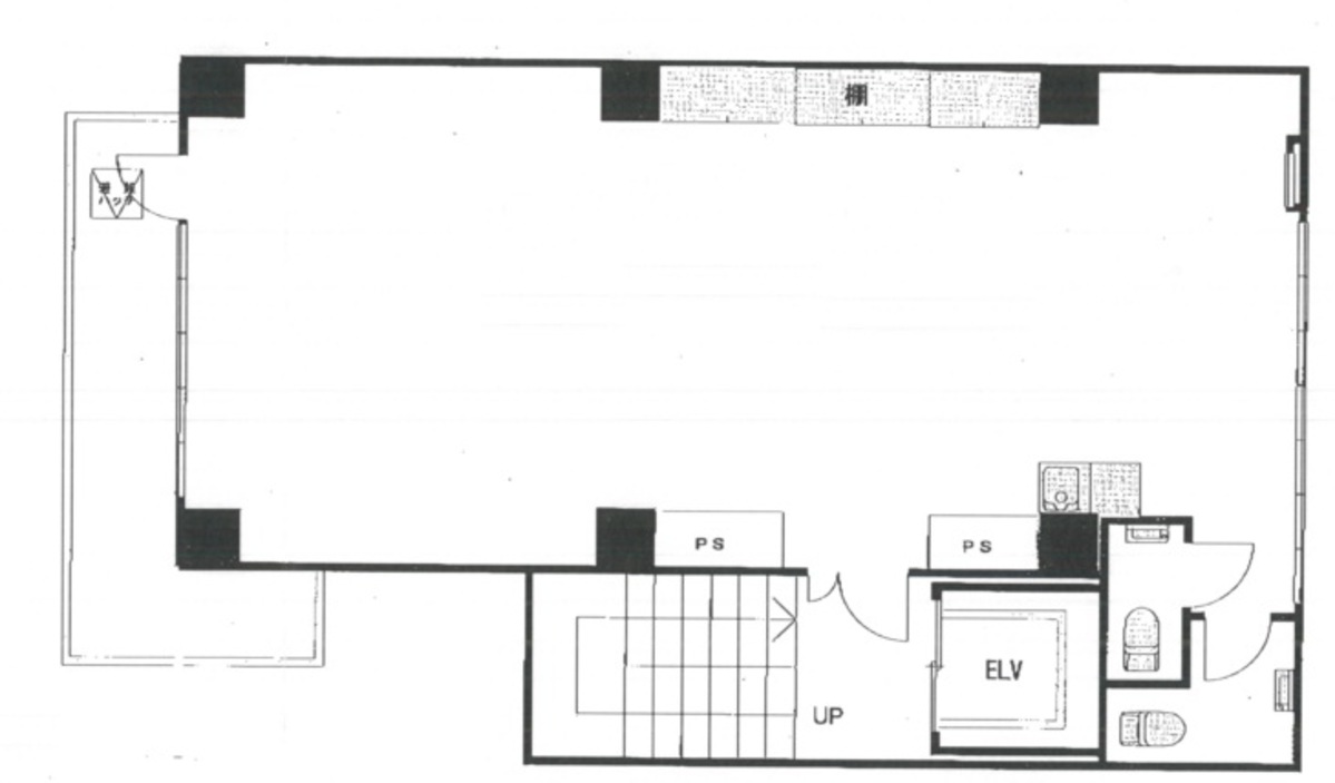
青山ルカビルは、東京都渋谷区渋谷に位置する賃貸オフィスビルです。この物件は、青山学院大学のキャンパス向かいにあり、青山通りから一歩入った立地に位置しています。そのため、静かで落ち着いたオフィス環境を提供すると同時に、表参道エリアと渋谷エリアの中間にあるため、どちらへのアクセスも徒歩圏内という絶好の立地を誇ります。六本木通りも近く、バスを利用すれば六本木方面へのアクセスも容易です。 ビルは地上8階建てで、エレビーターは1基設置されており、セキュリティとしてセコムの機械警備が導入されています。この点は、テナントの安全を確保する上で重要な要素となります。また、建物裏手の路地からもアクセス可能で、利便性が高いことが特徴です。 オフィススペースとしては、基準階坪数が20坪強で、二面採光の窓面を備えており、室内の採光が良好です。これにより、明るく開放感のあるオフィス環境を実現しています。また、水回りは角にまとめられており、効率的な執務スペースの確保が可能です。男女別トイレの設置は、オフィス利用者にとっての利便性を向上させる要素の一つです。 周辺環境も充実しており、渋谷駅や表参道駅からのアクセスが可能で、飲食店や金融機関などが周辺に豊富にあります。これにより、ビジネスの機会が広がるとともに、従業員の日常生活の利便性も高まります。 青山ルカビルは、その立地、設備、周辺環境を最大限に活用したい企業や、静かで落ち着いたオフィス環境を求めるテナントに最適な物件です。交通の利便性と快適なオフィス環境を兼ね備えており、ビジネスの成功に貢献することでしょう。
青山ルカビルのこだわり
自分で探すより問い合わせる方が早いことがあります
WEB非公開物件があるから
オーナー様のご希望により「WEBでは非公開」にしている物件があります。 それらはWEBでいくら検索しても見つかりません。 先ずは条件などお知らせ頂けましたら非公開物件含め ピッタリのオフィスをご提案させて頂きます。 無理なお勧めはしておりませんので、お気軽にお問い合わせください。
対面でのご相談も受け付けております
ご来店も歓迎です
オフィス移転は社内・社外ともに非公開に行われることが殆どです。そのためアットオフィスでは、基本的に訪問によるコンサルティングを行っておりますが、ご来店の相談も歓迎です。お一人おひとりに親身にご対応させて頂きたい為、要予約とさせて頂いております。ご来店の際は先ずは下記よりご予約下さい。
募集終了のテナント区画
| 階数 | 坪数 | 賃料 + 共益費 | 敷金/礼金敷金 礼金 | 検討 |
|---|---|---|---|---|
| B1階 | 42.98坪 (142.08m²) | 募集終了 | - | - |
| B1階 | 22.46坪 (74.26m²) | 募集終了 | - | - |
| 1階 | 20.53坪 (67.86m²) | 募集終了 | - | - |
| 4階 | 26.69坪 (88.22m²) | 募集終了 | - | - |
| 5階 | 26.68坪 (88.22m²) | 募集終了 | - | - |
| 6階 | 26.69坪 (88.22m²) | 募集終了 | - | - |
| 7階 | 26.69坪 (88.22m²) | 募集終了 | - | - |
| 8階 | 25.96坪 (85.81m²) | 募集終了 | - | - |
読込中...
渋谷エリアで青山ルカビルに似た条件の物件
読込中...
| 取扱様態 | 仲介 |
|---|---|
| 取扱会社 | 株式会社 アットオフィス |