銀座京屋ビル4階の賃貸情報
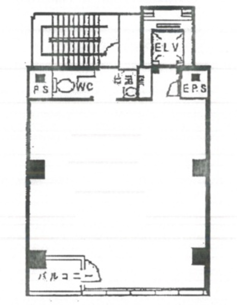
21.66 坪 (71.52m²)
※このサイトに記載がある賃貸条件は、敷金・保証金などの預かり金を除き、別途消費税がかかります。
銀座京屋ビルの建物概要
設備詳細
| 空調 | - |
|---|---|
| トイレ | - |
| 床仕様 | OA対応床(フリーアクセス) |
| エレベータ | 1 基 |
| 駐車場設備 | - |
| その他 | 機械警備 / 24時間利用可 / 新耐震基準 / クリニック |
銀座京屋ビル4階の賃貸オフィス・事務所に関するお問い合わせ
銀座京屋ビルについて
【銀座京屋ビルの魅力を徹底解説】 東京の経済と文化の中心地、銀座。ここに位置する銀座京屋ビルは、ビジネスの成功を追求する企業にとって理想的なオフィススペースを提供します。このビルの魅力は、その立地、設備、そして機能性にあります。それぞれの要素を詳細にご紹介します。 【絶好の立地条件】 銀座京屋ビルは、銀座3丁目に位置し、昭和通りに面しています。最寄りの銀座駅からはわずか徒歩3分という、アクセスの良さが自慢です。さらに、東京メトロ銀座線をはじめ3駅以上が利用可能で、都内各所への移動が非常に便利です。ビジネス機会を最大限に活かすための立地条件と言えるでしょう。 【高品質なオフィス環境】 2001年に竣工した銀座京屋ビルは、耐震性に優れた構造で、万が一の災害時でも安心の設計となっています。ビル内は1機のエレベーターで効率的な移動が可能で、24時間利用が可能なため、ビジネスのニーズに柔軟に対応できます。また、機械警備完備で、セキュリティ面でも安心してお仕事に専念いただけます。 【ビジネスの成功をサポート】 立地の良さと高品質なオフィス環境は、ビジネスの成功を後押しします。銀座という日本を代表するビジネスとブランドの街にオフィスを構えることは、企業イメージの向上にもつながります。また、銀座京屋ビル周辺には多様な飲食店やショッピング施設があり、ビジネスパートナーを招いた商談や社員の日常の利便性も抜群です。 【まとめ】 銀座京屋ビルは、その優れた立地、先進的な設備、そして快適なオフィス環境を兼ね備えた、ビジネスに最適なオフィスビルです。24時間利用可能で安心のセキュリティ、そして耐震性に優れた建物は、企業が長期にわたり安心して事業を行うための最高の環境を提供します。銀座という日本最高のビジネス地で、あなたのビジネスを一歩先へと進めませんか?銀座京屋ビルで、新たなビジネスのチャンスをぜひ掴んでください。
自分で探すより問い合わせる方が早いことがあります
WEB非公開物件があるから
オーナー様のご希望により「WEBでは非公開」にしている物件があります。 それらはWEBでいくら検索しても見つかりません。 先ずは条件などお知らせ頂けましたら非公開物件含め ピッタリのオフィスをご提案させて頂きます。 無理なお勧めはしておりませんので、お気軽にお問い合わせください。
対面でのご相談も受け付けております
ご来店も歓迎です
オフィス移転は社内・社外ともに非公開に行われることが殆どです。そのためアットオフィスでは、基本的に訪問によるコンサルティングを行っておりますが、ご来店の相談も歓迎です。お一人おひとりに親身にご対応させて頂きたい為、要予約とさせて頂いております。ご来店の際は先ずは下記よりご予約下さい。
銀座エリアで銀座京屋ビルに似た条件の物件
読込中...
銀座京屋ビルと同じ最寄駅の物件
読込中...
| 取扱様態 | 仲介 |
|---|---|
| 取扱会社 | 株式会社 アットオフィス |