いちご東五反田ビル7階の賃貸情報
105.08 坪 (347.37m²)
※このサイトに記載がある賃貸条件は、敷金・保証金などの預かり金を除き、別途消費税がかかります。
いちご東五反田ビルの建物概要
設備詳細
| 空調 | 個別空調 |
|---|---|
| トイレ | - |
| 床仕様 | OA対応床(フリーアクセス) |
| エレベータ | 2 基 |
| 駐車場設備 | 空有 |
| その他 | 機械警備 / 24時間利用可 / 大型ビル / 管理人常駐 / 光ファイバー / 新耐震基準 / フリーレント |
いちご東五反田ビル7階の賃貸オフィス・事務所に関するお問い合わせ
いちご東五反田ビルについて
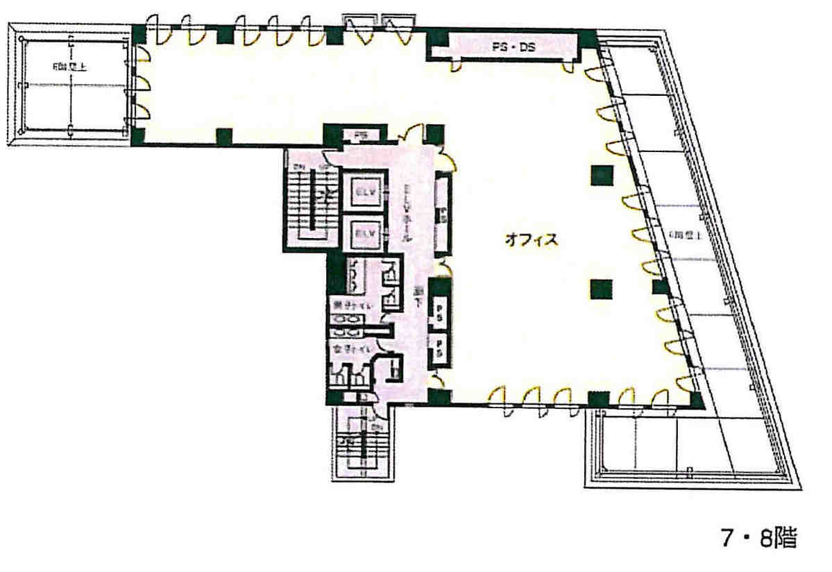
品川区東五反田に所在するいちご五反田ビルおよびいちご東五反田ビルは、ビジネスの拠点として最適なオフィス物件です。それぞれのビルが持つ特徴、立地、設備について詳しく見ていきましょう。 まず、いちご五反田ビルは、1990年に竣工した耐震性能を有するオフィスビルで、五反田駅から徒歩3分という抜群のアクセスを誇ります。この立地は、従業員はもちろんのこと、来客の利便性を大いに高めます。ビルのレイアウトは柔軟性があり、テナントのニーズに応じたオフィス環境の構築が可能です。また、男女別トイレやエントランスのセキュリティ管理、月極駐車場の有無など、オフィスビルとしての基本的な設備もしっかり整っています。 次に、いちご東五反田ビルは、同じく1990年に新耐震基準に基づいて建設されたビルで、基準階の面積が約160坪という広々とした空間が特徴です。このビルの貸室はL字型に近い独特な形状で、分割区画での利用が可能です。これにより、様々な規模の企業が自社の要望に合ったオフィス環境を実現できます。ビル内には2基のエレベーターが設置されており、高い人の流れもスムーズに対応します。また、セキュリティ面では管理人常駐に加え機械式警備を導入しており、テナント企業に安心感を提供します。 いちご東五反田ビルの立地は、五反田駅から徒歩3分の位置にあり、周辺には飲食店やコンビニエンスストア、郵便局などが充実しています。この立地は、ビジネスに必要な日常の利便性を高め、従業員の満足度向上にも寄与します。 いずれのビルも、ビル内設備の充実や立地の良さ、そして耐震性能を有する点が、テナント企業にとっての大きなメリットと言えるでしょう。ビジネスの成功に必要な要素を備えたこれらのオフィスビルは、企業の成長をサポートする信頼の拠点となり得ます。
自分で探すより問い合わせる方が早いことがあります
WEB非公開物件があるから
オーナー様のご希望により「WEBでは非公開」にしている物件があります。 それらはWEBでいくら検索しても見つかりません。 先ずは条件などお知らせ頂けましたら非公開物件含め ピッタリのオフィスをご提案させて頂きます。 無理なお勧めはしておりませんので、お気軽にお問い合わせください。
対面でのご相談も受け付けております
ご来店も歓迎です
オフィス移転は社内・社外ともに非公開に行われることが殆どです。そのためアットオフィスでは、基本的に訪問によるコンサルティングを行っておりますが、ご来店の相談も歓迎です。お一人おひとりに親身にご対応させて頂きたい為、要予約とさせて頂いております。ご来店の際は先ずは下記よりご予約下さい。
五反田エリアでいちご東五反田ビルに似た条件の物件
読込中...
いちご東五反田ビルと同じ最寄駅の物件
読込中...
| 取扱様態 | 仲介 |
|---|---|
| 取扱会社 | 株式会社 アットオフィス |