※このサイトに記載がある賃貸条件は、敷金・保証金などの預かり金を除き、別途消費税がかかります。
物件情報
設備詳細
| 空調 | - |
|---|---|
| トイレ | - |
| 床仕様 | - |
| エレベータ | 1 基 |
| 駐車場設備 | - |
| その他 | 機械警備 / 24時間利用可 / 光ファイバー |
ハニー堀留ビルの賃貸オフィス・事務所に関するお問い合わせ
ハニー堀留ビルについて
ハニー堀留ビルは、東京都中央区東日本橋3-6-18に所在し、1986年に竣工した地上8階建ての賃貸オフィスビルです。このビルは、鉄骨鉄筋コンクリート造りの耐震性に優れた構造を有しており、新耐震基準を満たす設計により、テナント企業の安全を確保しています。基準階面積は約39坪で、細長いL字型の貸室形状をしており、1フロアにつき1テナントが入居可能です。ビルは24時間使用が可能で、機械警備システムによる安全対策も整っています。 ハニー堀留ビルの立地は、複数の鉄道路線が利用可能な交通アクセスの良さが特徴です。徒歩2分圏内に都営新宿線の馬喰横山駅と都営浅草線の東日本橋駅があり、さらにJR総武線(快速)の馬喰町駅が徒歩6分、東京メトロ日比谷線の人形町駅も徒歩7分と、4つの異なる路線が利用できる点は、都心へのアクセスやビジネスの拠点として抜群の立地条件を有しています。また、ビル周辺は閑静なオフィス街でありながら、飲食店や金融機関、郵便局などの生活支援施設も充実しており、働く人々の日常生活に便利な環境が整っています。 ビルの設備面においては、綺麗な石張りのエントランスが来訪者を迎え、高級感のある雰囲気を演出しています。9人乗りのエレベーターが1基設置されているほか、貸室内には個別空調とOAフロアが完備されており、オフィス環境を快適に保つことができます。また、男女別トイレが室内に設置されており、基準階の天高は2,500mmとなっています。これらの設備はテナント企業が快適に、かつ効率的に業務を行うための環境を提供します。 ハニー堀留ビルは、その耐震性と快適なオフィス環境、そして複数路線が利用可能な交通の利便性を兼ね備えた賃貸オフィスビルです。立地の良さは、ビジネスの拠点としての価値を高め、テナント企業にとって魅力的な条件を提供します。これらの特徴は、ハニー堀留ビルが中央区東日本橋エリアで働く企業および従業員に最適なオフィス環境を提供することを保証しています。
ハニー堀留ビルのこだわり
自分で探すより問い合わせる方が早いことがあります
WEB非公開物件があるから
オーナー様のご希望により「WEBでは非公開」にしている物件があります。 それらはWEBでいくら検索しても見つかりません。 先ずは条件などお知らせ頂けましたら非公開物件含め ピッタリのオフィスをご提案させて頂きます。 無理なお勧めはしておりませんので、お気軽にお問い合わせください。
対面でのご相談も受け付けております
ご来店も歓迎です
オフィス移転は社内・社外ともに非公開に行われることが殆どです。そのためアットオフィスでは、基本的に訪問によるコンサルティングを行っておりますが、ご来店の相談も歓迎です。お一人おひとりに親身にご対応させて頂きたい為、要予約とさせて頂いております。ご来店の際は先ずは下記よりご予約下さい。
募集終了のテナント区画
| 階数 | 坪数 | 賃料 + 共益費 | 敷金/礼金敷金 礼金 | 検討 |
|---|---|---|---|---|
| 1階 | 10.87坪 (35.93m²) | 募集終了 | - | - |
| 1階 | 11.63坪 (38.46m²) | 募集終了 | - | - |
| 2階 | 44.12坪 (145.85m²) | 募集終了 | - | - |
| 2階 | 38.93坪 (128.69m²) | 募集終了 | - | - |
| 3階 | 44.13坪 (145.88m²) | 募集終了 | - | - |
| 3階 | 38.93坪 (128.69m²) | 募集終了 | - | - |
| 4階 | 38.93坪 (128.69m²) | 募集終了 | - | - |
| 5階 | 44.12坪 (145.85m²) | 募集終了 | - | - |
| 6階 | 44.12坪 (145.85m²) | 募集終了 | - | - |
| 7階 | 38.93坪 (128.69m²) | 募集終了 | - | - |
| 7階 | 44.12坪 (145.85m²) | 募集終了 | - | - |
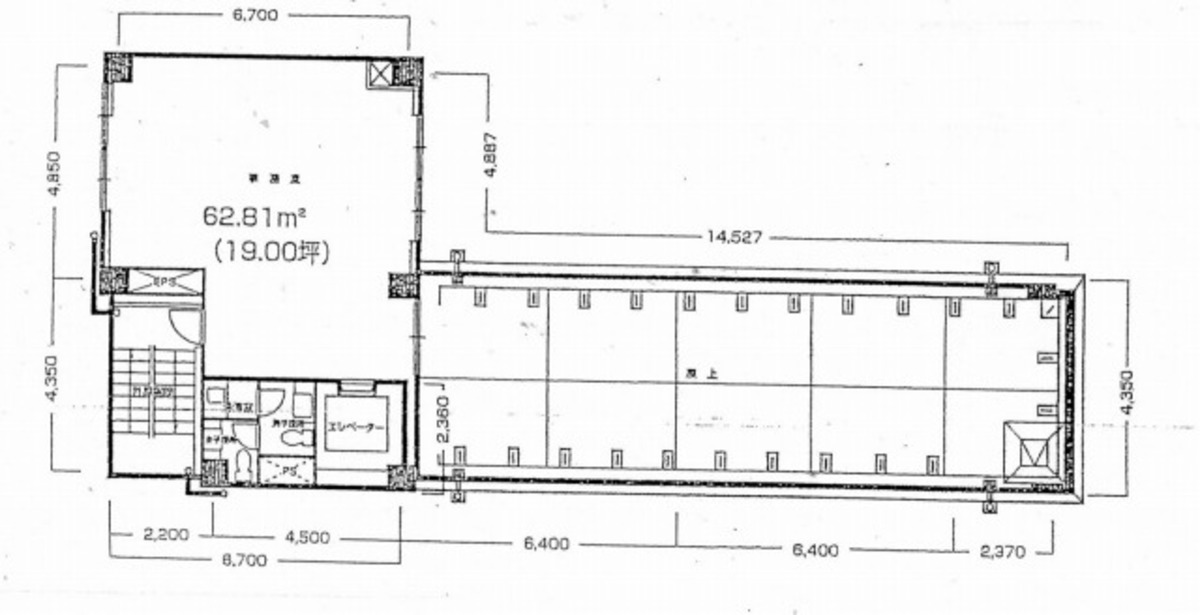
| 8階 | 19坪 (62.81m²) | 募集終了 | - | - |
読込中...
近くのエリアで探してみる
人形町/馬喰町/浜町エリアでハニー堀留ビルに似た条件の物件
読込中...
| 取扱様態 | 仲介 |
|---|---|
| 取扱会社 | 株式会社 アットオフィス |