※このサイトに記載がある賃貸条件は、敷金・保証金などの預かり金を除き、別途消費税がかかります。
物件情報
設備詳細
| 空調 | - |
|---|---|
| トイレ | - |
| 床仕様 | - |
| エレベータ | 2 基 |
| 駐車場設備 | - |
| その他 | 機械警備 / 24時間利用可 / 光ファイバー / 新耐震基準 |
ユニゾ蛎殻町北島ビルの賃貸オフィス・事務所に関するお問い合わせ
ユニゾ蛎殻町北島ビルについて
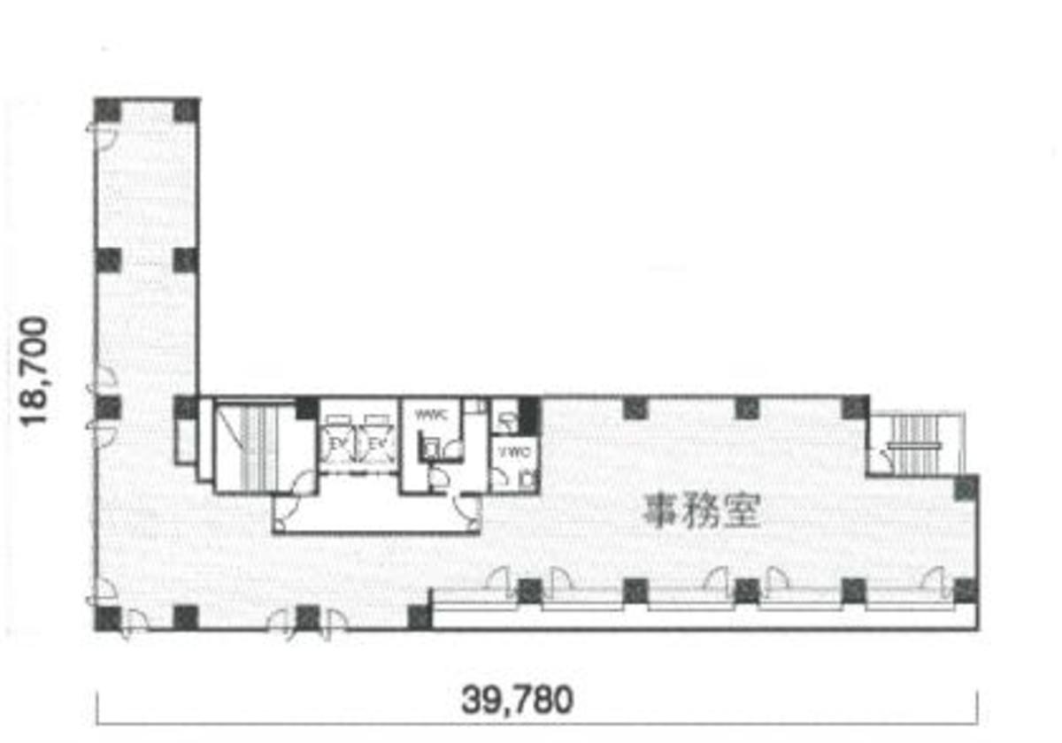
ユニゾ蛎殻町北島ビルは、東京都中央区日本橋蛎殻町1丁目に位置する、ビジネスシーンに最適化された賃貸オフィスビルです。1992年に竣工し、新耐震基準に則って建設されたこのビルは、地上5階・地下2階建ての堅牢な構造を誇ります。ビルの外観はグレーの御影石で仕上げられ、重厚感と落ち着きを演出しています。エントランスおよび共用部分は大理石調でデザインされ、高級感あふれるビジネス空間を提供しています。 立地において、ユニゾ蛎殻町北島ビルは抜群のアクセスを誇ります。「人形町」駅から徒歩3分、「水天宮前」駅から徒歩4分という駅近物件であり、茅場町駅も徒歩圏内です。3つの駅で4路線(浅草線、日比谷線、半蔵門線、東西線)が利用可能で、ビジネスの利便性が非常に高いことが特徴です。周辺には飲食店が豊富にあり、ビジネスランチやアフター5の利用にも便利です。また、ローソン、まいばすけっと、日本橋小網町郵便局といった生活に必要な施設も徒歩圏内に揃っており、オフィスワーカーの日常生活を支えます。 設備面においても、ユニゾ蛎殻町北島ビルは高い水準を備えています。個別空調システムにより、各テナントの快適な室温管理を可能とし、男女別のトイレ等、清潔で使いやすい共用設備を完備しています。セキュリティ面では、機械警備システムを導入しており、テナント企業の安全を確保します。また、ビル内に駐車場があり、車での通勤やビジネス利用にも対応しています。 ビルのレイアウトは、細長い変形のL字型をしており、最大ワンフロアーは約100坪の広さがあります。この形状はレイアウトの自由度が高く、企業のニーズに応じたオフィス空間のカスタマイズが可能です。上階は良好な採光が期待でき、開放感ある執務空間を提供します。 ユニゾ蛎殻町北島ビルは、耐震性能、立地の便利さ、高品質な設備、そして柔軟なレイアウト可能性を兼ね備え、様々なビジネスシーンでの活躍が期待できる賃貸オフィスビルです。これらの特徴は、テナント企業が快適かつ効率的なビジネス環境を構築するのに最適です。ユニゾ蛎殻町北島ビルは、貴社の新たなビジネス拠点として、最高の選択肢となることでしょう。
ユニゾ蛎殻町北島ビルのこだわり
自分で探すより問い合わせる方が早いことがあります
WEB非公開物件があるから
オーナー様のご希望により「WEBでは非公開」にしている物件があります。 それらはWEBでいくら検索しても見つかりません。 先ずは条件などお知らせ頂けましたら非公開物件含め ピッタリのオフィスをご提案させて頂きます。 無理なお勧めはしておりませんので、お気軽にお問い合わせください。
対面でのご相談も受け付けております
ご来店も歓迎です
オフィス移転は社内・社外ともに非公開に行われることが殆どです。そのためアットオフィスでは、基本的に訪問によるコンサルティングを行っておりますが、ご来店の相談も歓迎です。お一人おひとりに親身にご対応させて頂きたい為、要予約とさせて頂いております。ご来店の際は先ずは下記よりご予約下さい。
募集終了のテナント区画
| 階数 | 坪数 | 賃料 + 共益費 | 敷金/礼金敷金 礼金 | 検討 |
|---|---|---|---|---|
| B2階 | 84.21坪 (278.38m²) | 募集終了 | - | - |
| B2階 | 34.12坪 (112.82m²) | 募集終了 | - | - |
| B2階 | 50.09坪 (165.59m²) | 募集終了 | - | - |
| B1階 | 20.01坪 (66.15m²) | 募集終了 | - | - |
| B1階 | 56坪 (185.12m²) | 募集終了 | - | - |
| B1階 | 14.97坪 (49.48m²) | 募集終了 | - | - |
| 1階 | 20.01坪 (66.15m²) | 募集終了 | - | - |
| 1階 | 20.01坪 (66.15m²) | 募集終了 | - | - |
| 1階 | 49.67坪 (164.2m²) | 募集終了 | - | - |
| 3階 | 100坪 (330.57m²) | 募集終了 | - | - |
| 3階 | 98.56坪 (325.82m²) | 募集終了 | - | - |
| 5階 | 50.01坪 (165.32m²) | 募集終了 | - | - |
読込中...
近くのエリアで探してみる
人形町/馬喰町/浜町エリアでユニゾ蛎殻町北島ビルに似た条件の物件
読込中...
| 取扱様態 | 仲介 |
|---|---|
| 取扱会社 | 株式会社 アットオフィス |