※このサイトに記載がある賃貸条件は、敷金・保証金などの預かり金を除き、別途消費税がかかります。
物件情報
設備詳細
| 空調 | 個別空調 |
|---|---|
| トイレ | 男女別トイレ室内 |
| 床仕様 | - |
| エレベータ | 1 基 |
| 駐車場設備 | - |
| その他 | 機械警備 / 24時間利用可 / 新耐震基準 |
W2KODENMACHOビルの賃貸オフィス・事務所に関するお問い合わせ
W2KODENMACHOビルについて
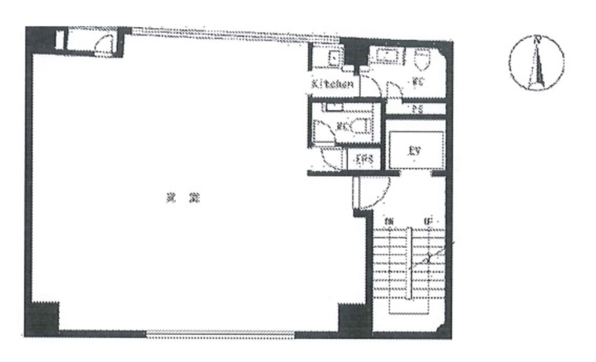
W2KODENMACHOビルは、都心の賑やかな中央区日本橋小伝馬町に位置し、1984年に耐震性を重視して建設された地上5階建てのオフィスビルです。このビルは、高い安全性を誇り、現代のビジネスニーズに対応した設備を整えています。基準階面積は約30坪で、ほぼ長方形の間取りが特徴です。この効率的なレイアウトは、企業が柔軟にオフィス環境を構築できる基盤を提供します。 このビルの設備面での大きな強みは、各階に個別空調システムを完備している点です。これにより、テナントは自社のオフィス内での温度管理を自由に行うことができ、快適な労働環境を実現できます。さらに、24時間利用可能な機械警備システムを導入しており、セキュリティ面でもテナント企業の安心を支えます。 立地においても、W2KODENMACHOビルは多くの利点を持ちます。馬喰町駅から徒歩3分というアクセスの良さは、従業員やクライアントの移動に大きなメリットをもたらします。さらに、JR線、都営新宿線、浅草線、東京メトロ日比谷線など、複数の路線が利用可能で、東京都内やその周辺へのアクセスが容易です。ビルの近隣には、飲食店やカフェ、コンビニエンスストアなどが豊富にあり、ビジネス環境だけでなく、日常の利便性も高いエリアです。 W2KODENMACHOビルは、その耐震性、設備の充実、そして絶好の立地を兼ね備えることで、テナント企業にとって理想的なオフィス環境を提供します。ビジネスの発展に不可欠な安心と快適さを実現し、企業の成長を支えるための最適な場所です。また、このビルの提供する高品質なオフィススペースは、企業イメージの向上にも寄与するでしょう。W2KODENMACHOビルは、ビジネスの成功を目指す企業にとって、選択すべき賢明な選択肢です。
W2KODENMACHOビルのこだわり
自分で探すより問い合わせる方が早いことがあります
WEB非公開物件があるから
オーナー様のご希望により「WEBでは非公開」にしている物件があります。 それらはWEBでいくら検索しても見つかりません。 先ずは条件などお知らせ頂けましたら非公開物件含め ピッタリのオフィスをご提案させて頂きます。 無理なお勧めはしておりませんので、お気軽にお問い合わせください。
対面でのご相談も受け付けております
ご来店も歓迎です
オフィス移転は社内・社外ともに非公開に行われることが殆どです。そのためアットオフィスでは、基本的に訪問によるコンサルティングを行っておりますが、ご来店の相談も歓迎です。お一人おひとりに親身にご対応させて頂きたい為、要予約とさせて頂いております。ご来店の際は先ずは下記よりご予約下さい。
募集終了のテナント区画
| 階数 | 坪数 | 賃料 + 共益費 | 敷金/礼金敷金 礼金 | 検討 |
|---|---|---|---|---|
| 1階 | 27.44坪 (90.71m²) | 募集終了 | - | - |
| 2階 | 30.02坪 (99.23m²) | 募集終了 | - | - |
| 3階 | 30.02坪 (99.23m²) | 募集終了 | - | - |
| 4階 | 30.02坪 (99.23m²) | 募集終了 | - | - |
読込中...
近くのエリアで探してみる
人形町/馬喰町/浜町エリアでW2KODENMACHOビルに似た条件の物件
読込中...
| 取扱様態 | 仲介 |
|---|---|
| 取扱会社 | 株式会社 アットオフィス |