※このサイトに記載がある賃貸条件は、敷金・保証金などの預かり金を除き、別途消費税がかかります。
物件情報
設備詳細
| 空調 | セントラル空調 |
|---|---|
| トイレ | 男女別トイレ |
| 床仕様 | OA対応床(フリーアクセス) |
| エレベータ | 19 基 / エレベーター有 |
| 駐車場設備 | 敷地内駐車場 |
| その他 | 24時間利用可 / 光ファイバー / 機械警備 / 省エネ配慮 / 新耐震基準 / 大通り面する |
パシフィックセンチュリープレイス丸の内の賃貸オフィス・事務所に関するお問い合わせ
パシフィックセンチュリープレイス丸の内について
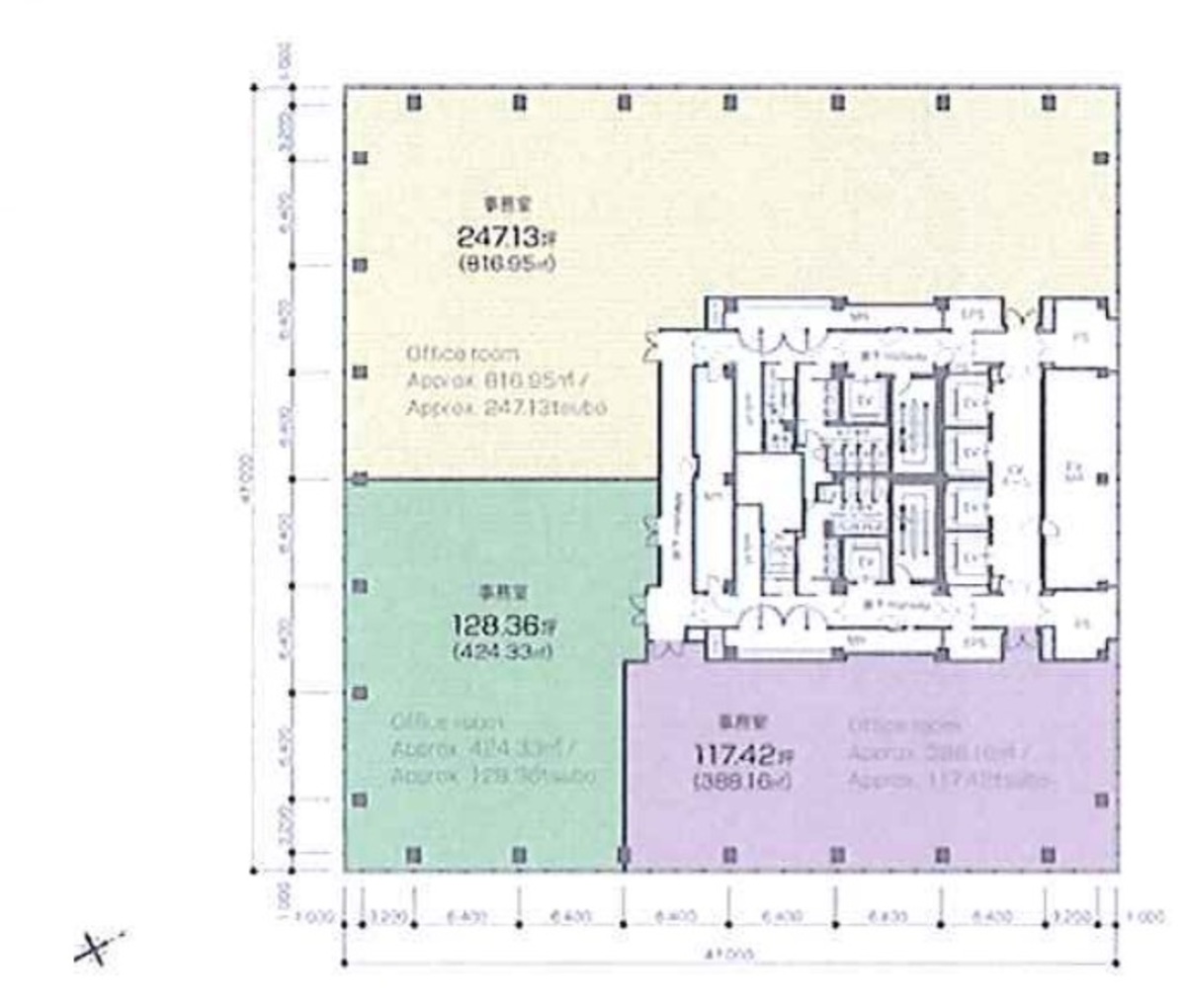
パシフィックセンチュリープレイス丸の内は、東京都千代田区丸の内に位置し、東京駅から直接地下で繋がるという抜群のアクセス性を誇るオフィスビルです。2001年に竣工されたこの物件は、現代のビジネスニーズに適応するための設備と機能性を備えています。地上32階、地下4階建ての鉄骨造および鉄骨鉄筋コンクリート造で、延床面積は約24,712坪に及びます。基準階面積は520.7坪で、広々とした無柱空間が特徴です。天井高は2,800mmと開放感があり、100mmのフリーアクセスフロアを採用しているため、配線やレイアウト変更が容易です。 ビル内にはフォーシーズンホテル丸の内東京が入居しており、ビジネス利用だけでなく、遠方からの来客の宿泊にも便利です。また、地下1階から2階には多彩な飲食店やショップが入る商業施設があり、ビジネスライフを豊かにサポートします。19基のエレベーターはそれぞれ停止階が分けられており、利用者の移動効率を高めています。 安全面では、大地震にも耐えうる耐震設計が施され、テナント用自家発電機が少なくとも48時間の業務機能維持を可能にします。また、高断熱Low-eペアガラスの採用や自動調光照明など、省エネルギーとコスト削減を考慮した設備が整っています。 立地面では、東京駅に直結しているのはもちろん、大手町方面への地下道によるアクセスや京橋駅への近さもあり、複数のJR線、地下鉄線を利用できる点が魅力的です。新幹線や成田エクスプレスを利用した地方や国外へのアクセスも容易で、ビジネスの機動力を高めます。 パシフィックセンチュリープレイス丸の内は、その立地、設備、安全性を兼ね備えた高品質なオフィス環境を提供します。現代のビジネスニーズに応える設計と機能性により、企業の成長と発展を支える最適な場所です。
自分で探すより問い合わせる方が早いことがあります
WEB非公開物件があるから
オーナー様のご希望により「WEBでは非公開」にしている物件があります。 それらはWEBでいくら検索しても見つかりません。 先ずは条件などお知らせ頂けましたら非公開物件含め ピッタリのオフィスをご提案させて頂きます。 無理なお勧めはしておりませんので、お気軽にお問い合わせください。
対面でのご相談も受け付けております
ご来店も歓迎です
オフィス移転は社内・社外ともに非公開に行われることが殆どです。そのためアットオフィスでは、基本的に訪問によるコンサルティングを行っておりますが、ご来店の相談も歓迎です。お一人おひとりに親身にご対応させて頂きたい為、要予約とさせて頂いております。ご来店の際は先ずは下記よりご予約下さい。
募集終了のテナント区画
読込中...
近くのエリアで探してみる
大手町/丸の内/有楽町エリアでパシフィックセンチュリープレイス丸の内に似た条件の物件
読込中...
| 取扱様態 | 仲介 |
|---|---|
| 取扱会社 | 株式会社 アットオフィス |