※このサイトに記載がある賃貸条件は、敷金・保証金などの預かり金を除き、別途消費税がかかります。
物件情報
設備詳細
| 空調 | 個別空調 |
|---|---|
| トイレ | - |
| 床仕様 | OA対応床(フリーアクセス) |
| エレベータ | 1 基 |
| 駐車場設備 | - |
| その他 | 機械警備 / 24時間利用可 / 光ファイバー / 新耐震基準 |
ITY大塚ビルの賃貸オフィス・事務所に関するお問い合わせ
ITY大塚ビルについて
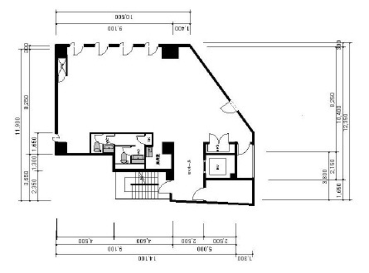
### ITY大塚ビルのご紹介 **所在地とアクセス** ITY大塚ビルは、東京都豊島区北大塚2丁目に位置するオフィス賃貸物件です。その最大の特徴は、JR山手線の大塚駅から徒歩1分という非常に便利な立地です。また、都電荒川線の大塚駅前駅や東京メトロ丸ノ内線の新大塚駅も徒歩圏内となっており、複数の交通手段が利用可能です。これにより、通勤やビジネスの移動が非常にスムーズに行えます。 **建物情報と設備** 1990年に竣工されたITY大塚ビルは、耐震構造を備えた堅固なオフィスビルです。10階建てで、各フロアは約40坪の広さを持っています。基準階天井高は2450mmで、開放感のあるオフィス空間を提供します。エレベーターは1基設置されており、利用者の利便性を考えた不停止機能も完備しています。 **ビル内の設備** オフィス内部の設備も非常に充実しています。OAフロア(高さ50mm)が整備され、光ケーブルがMDFまで引き込まれているため、高速インターネット環境が確保されています。さらに、個別空調システムにより快適な室内温度が保たれ、男女別トイレも設置されています。セキュリティ対策としては、機械警備システムが完備されており、24時間利用可能なため、夜間や休日の利用も安心です。 **周辺環境** ITY大塚ビルの周辺は、商業施設や飲食店が豊富に揃っており、ランチやディナーの選択肢が多いのが特徴です。徒歩1分の距離にはコンビニエンスストア「ファミリーマート」があり、日常の買い物にも便利です。また、大塚駅前郵便局や銀行が近くにあり、ビジネス活動に必要な各種サービスにも迅速にアクセスできます。 **ビルの雰囲気と魅力** ITY大塚ビルは、石造りのエントランスが印象的で、高級感のある佇まいです。視認性が良く、駅前ロータリーに面しているため、訪れるお客様に対しても非常に分かりやすい立地です。このビルは特に、アクセスの良さと周辺の利便性が高く評価されており、ビジネスの拠点として最適です。また、24時間利用可能な点も、大きな魅力の一つです。 **結論** ITY大塚ビルは、大塚駅から徒歩1分という優れた立地に加え、充実した設備と高いセキュリティを誇ります。周辺環境も非常に整っており、ビジネス活動をサポートする各種施設が揃っています。これらの特徴から、ビジネスの拠点として非常に魅力的なオフィスビルであることは間違いありません。ぜひ、一度ご覧いただき、その魅力を実感していただければと思います。 以上で、ITY大塚ビルのご紹介を終わります。ご質問や内見のご希望がありましたら、どうぞお気軽にお問い合わせください。
ITY大塚ビルのこだわり
自分で探すより問い合わせる方が早いことがあります
WEB非公開物件があるから
オーナー様のご希望により「WEBでは非公開」にしている物件があります。 それらはWEBでいくら検索しても見つかりません。 先ずは条件などお知らせ頂けましたら非公開物件含め ピッタリのオフィスをご提案させて頂きます。 無理なお勧めはしておりませんので、お気軽にお問い合わせください。
対面でのご相談も受け付けております
ご来店も歓迎です
オフィス移転は社内・社外ともに非公開に行われることが殆どです。そのためアットオフィスでは、基本的に訪問によるコンサルティングを行っておりますが、ご来店の相談も歓迎です。お一人おひとりに親身にご対応させて頂きたい為、要予約とさせて頂いております。ご来店の際は先ずは下記よりご予約下さい。
募集終了のテナント区画
| 階数 | 坪数 | 賃料 + 共益費 | 敷金/礼金敷金 礼金 | 検討 |
|---|---|---|---|---|
| 3階 | 39.5坪 (130.58m²) | 募集終了 | - | - |
| 4階 | 39.4坪 (130.25m²) | 募集終了 | - | - |
| 5階 | 39.3坪 (129.92m²) | 募集終了 | - | - |
| 6階 | 39.2坪 (129.59m²) | 募集終了 | - | - |
| 8階 | 39坪 (128.93m²) | 募集終了 | - | - |
| 9階 | 38.9坪 (128.6m²) | 募集終了 | - | - |
読込中...
駒込/巣鴨/大塚エリアでITY大塚ビルに似た条件の物件
読込中...
| 取扱様態 | 仲介 |
|---|---|
| 取扱会社 | 株式会社 アットオフィス |