※このサイトに記載がある賃貸条件は、敷金・保証金などの預かり金を除き、別途消費税がかかります。
物件情報
設備詳細
| 空調 | 個別空調 |
|---|---|
| トイレ | 男女別トイレ室内 |
| 床仕様 | OA対応床(フリーアクセス) |
| エレベータ | 1 基 |
| 駐車場設備 | - |
| その他 | 機械警備 / 24時間利用可 / 新耐震基準 |
バンセイ室町ビルの賃貸オフィス・事務所に関するお問い合わせ
バンセイ室町ビルについて
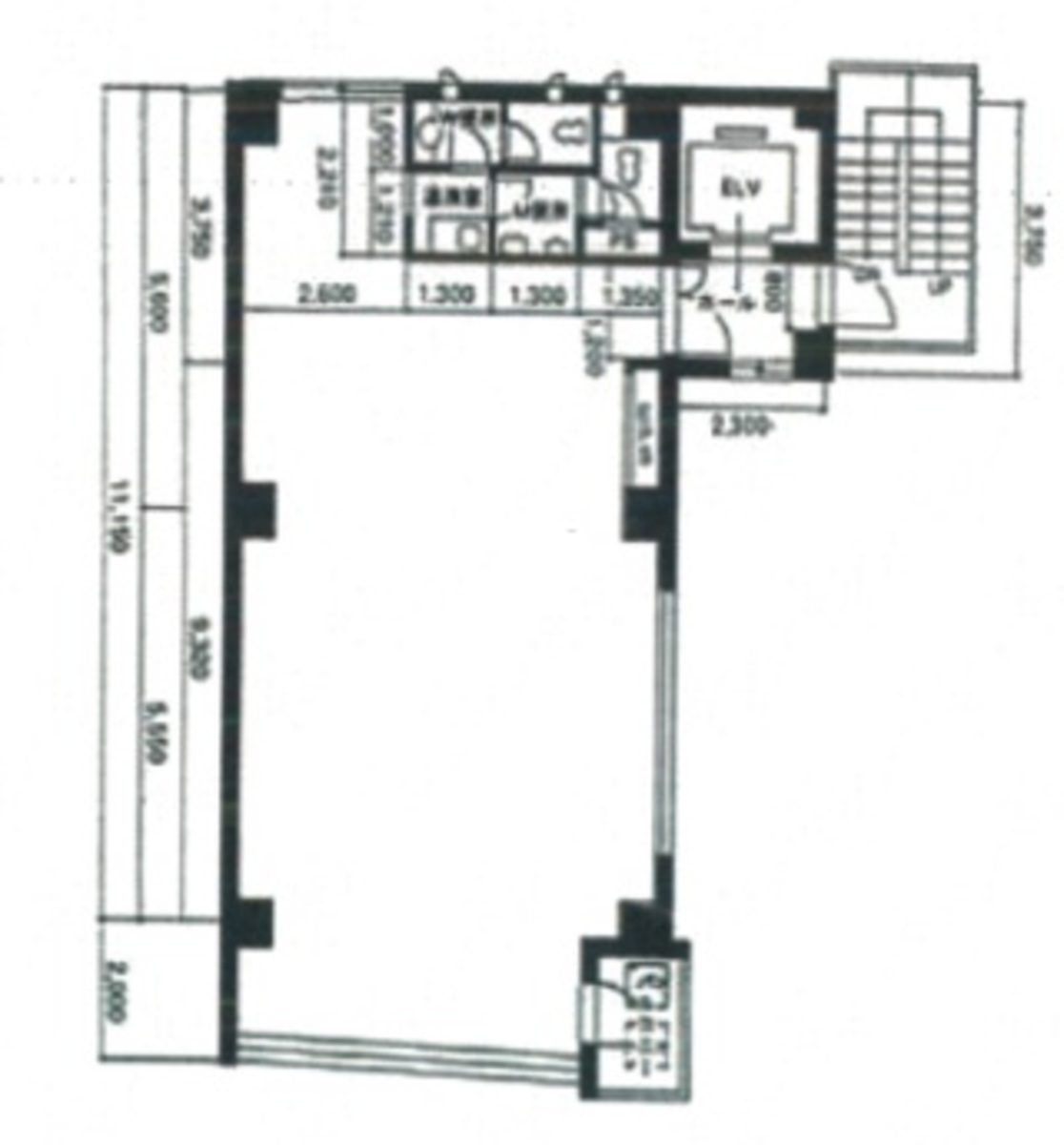
【バンセイ室町ビルのご紹介】 今日は中央区日本橋室町4丁目に位置する、通勤に便利な立地を誇るバンセイ室町ビルをご紹介いたします。1997年に竣工されたこのビルは、新耐震基準に則って建てられた現代的なオフィスビルです。ビルの正面は魅力的なガラス張りで、洗練された第一印象を提供します。基準階約25坪の広さを持ち、どんなビジネスにもフィットする柔軟性を備えています。 【アクセスの良さ】 バンセイ室町ビルの最大の魅力はその立地にあります。新日本橋駅から徒歩わずか1分という驚異的な駅近さを誇り、JR神田駅や三越前駅も徒歩圏内にあります。3駅以上を利用できるこの好立地は、従業員の通勤はもちろん、ビジネスの機会を広げるためのクライアントとの会合にも大変便利です。 【設備の充実】 安全性に配慮した耐震設計のこのビルは、24時間利用可能で、セキュリティも万全です。機械警備が完備されているため、安心してお仕事に専念できます。エレベーターは1機設置されており、スムーズな移動をサポートします。また、男女別のトイレも完備しており、快適なオフィス環境を提供します。水廻りは貸室入口付近に配置されているため、日々の業務においても非常に便利です。 【ビルの独自の魅力】 このオフィスビルは、中央通りに面しており、多くのビジネスチャンスに恵まれた立地を誇ります。エントランスからビル内部へと進むと、細長い通路がエレベーターへと続いており、プライバシーが保たれた空間構成となっています。ビルの設計は、ビジネスの効率性と快適性を考慮しており、どのテナントにも満足いただけることでしょう。 バンセイ室町ビルは、都心でのビジネス展開を考える企業にとって、最適な選択肢の一つです。その立地の良さ、設備の充実、そして快適なオフィス環境は、皆様のビジネスをさらに加速させること間違いなしです。ご興味がございましたら、ぜひ一度ご覧になってみてはいかがでしょうか。私たちは皆様からのお問い合わせを心よりお待ちしております。
バンセイ室町ビルのこだわり
自分で探すより問い合わせる方が早いことがあります
WEB非公開物件があるから
オーナー様のご希望により「WEBでは非公開」にしている物件があります。 それらはWEBでいくら検索しても見つかりません。 先ずは条件などお知らせ頂けましたら非公開物件含め ピッタリのオフィスをご提案させて頂きます。 無理なお勧めはしておりませんので、お気軽にお問い合わせください。
対面でのご相談も受け付けております
ご来店も歓迎です
オフィス移転は社内・社外ともに非公開に行われることが殆どです。そのためアットオフィスでは、基本的に訪問によるコンサルティングを行っておりますが、ご来店の相談も歓迎です。お一人おひとりに親身にご対応させて頂きたい為、要予約とさせて頂いております。ご来店の際は先ずは下記よりご予約下さい。
募集終了のテナント区画
| 階数 | 坪数 | 賃料 + 共益費 | 敷金/礼金敷金 礼金 | 検討 |
|---|---|---|---|---|
| 2階 | 25.5坪 (84.3m²) | 募集終了 | - | - |
| 3階 | 25.5坪 (84.3m²) | 募集終了 | - | - |
| 4階 | 25.5坪 (84.3m²) | 募集終了 | - | - |
| 7階 | 25.5坪 (84.3m²) | 募集終了 | - | - |
| 9階 | 25.5坪 (84.3m²) | 募集終了 | - | - |
| 10階 | 25.5坪 (84.3m²) | 募集終了 | - | - |
読込中...
近くのエリアで探してみる
八重洲/日本橋/三越前エリアでバンセイ室町ビルに似た条件の物件
読込中...
| 取扱様態 | 仲介 |
|---|---|
| 取扱会社 | 株式会社 アットオフィス |