豊ビル5階の賃貸情報
22.65 坪 (74.99m²)
※このサイトに記載がある賃貸条件は、敷金・保証金などの預かり金を除き、別途消費税がかかります。
豊ビルの建物概要
設備詳細
| 空調 | - |
|---|---|
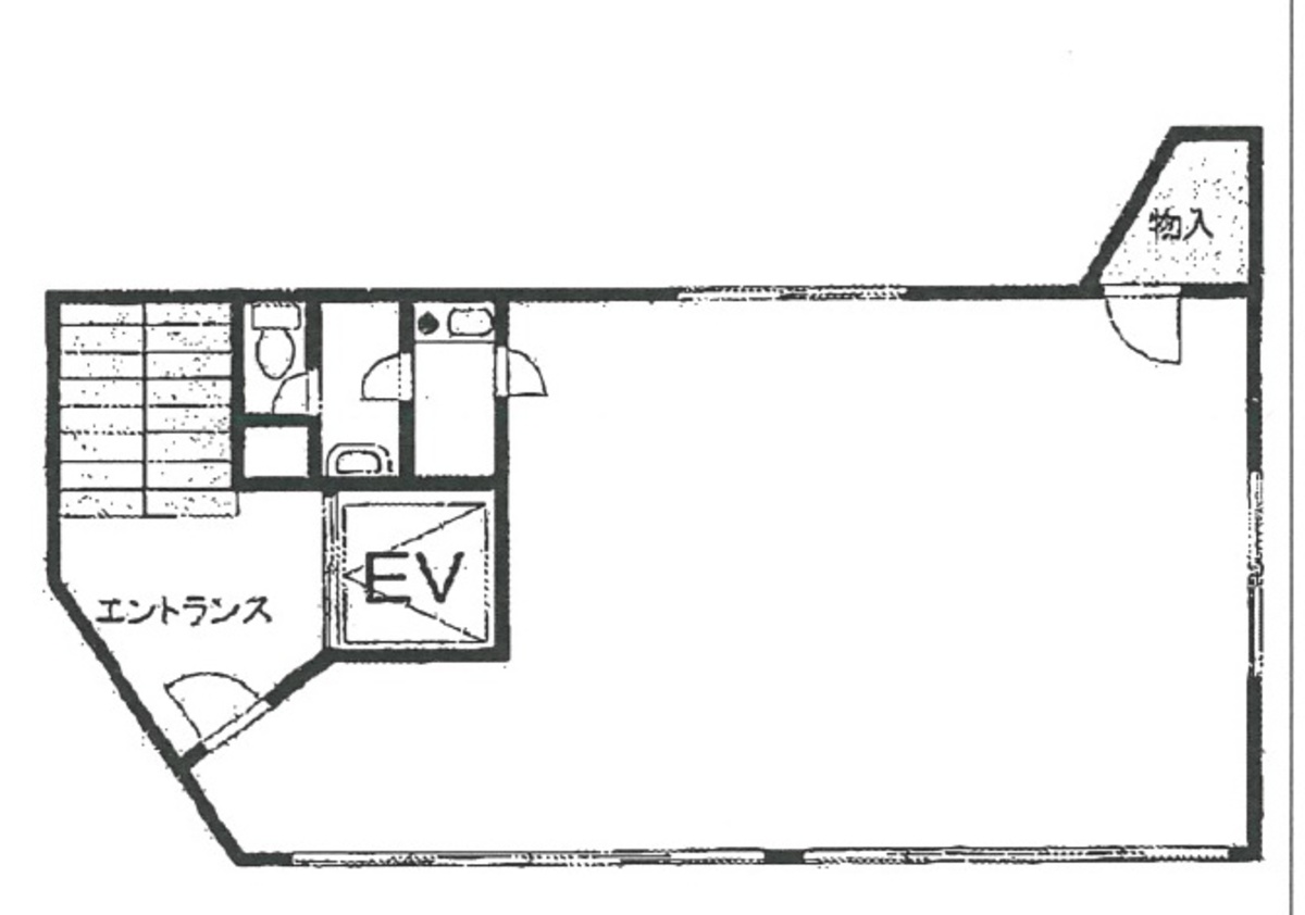
| トイレ | 男女共用トイレ・室内 |
| 床仕様 | - |
| エレベータ | 1 基 |
| 駐車場設備 | - |
| その他 | 店舗可(飲食不可) |
豊ビル5階の賃貸オフィス・事務所に関するお問い合わせ
豊ビルについて
【豊ビル:新宿区西新宿のビジネスの窓口】 新宿区西新宿に位置する豊ビルは、都心のビジネスシーンに最適な賃貸オフィスビルです。1973年に竣工し、レトロな外観が特徴的なこの8階建てのビルは、新宿駅からわずか徒歩4分という抜群のアクセスを誇ります。小滝橋通りに面した角地に建つ豊ビルは、視認性が高く、立地条件の良さには自信を持っておすすめできます。 【設備の充実】 基準階は約20坪の広さで、長方形に近い形状の執務スペースが特徴です。光ファイバー接続(MDFまで)や、個別空調システムを完備しており、ビジネスニーズに応じた快適なオフィス環境を提供します。また、男女共用のトイレや給湯設備も整っており、働く従業員の方々の快適性を高めるための設備が充実しています。 【立地・周辺環境の魅力】 豊ビルは、新宿西口駅からも徒歩約2分という利便性の高い立地にあります。小滝橋通り沿いに位置し、周辺には飲食店が充実しているため、ビジネスランチやアフター5のお食事にも困りません。さらに、隣にはコンビニと郵便局があり、日々の業務で必要なものを手軽に揃えることができる点も魅力の一つです。大久保駅やJR・地下鉄・私鉄の複数路線が乗り入れる新宿駅も徒歩圏内で、ビジネスの拠点として地理的にも絶好の条件を備えています。 【ビジネスの成長を後押しする環境】 豊ビルは、ビジネスの成長を促す環境を提供します。エレベーター1基を完備しており、毎日の通勤もスムーズです。また、ビル内のオフィスはワンフロア20坪前後で提供され、効率的なスペース利用が可能です。このように、豊ビルは立地の良さ、設備の充実、周辺環境の便利さを兼ね備え、ビジネスの拠点として理想的な条件を提供しています。 新宿区西新宿にある豊ビルは、ビジネスの成功をサポートする理想的な環境です。その設備の高さ、スペックの良さ、そして立地の優位性が、ビジネスを次のレベルへと押し上げるでしょう。
豊ビルのこだわり
自分で探すより問い合わせる方が早いことがあります
WEB非公開物件があるから
オーナー様のご希望により「WEBでは非公開」にしている物件があります。 それらはWEBでいくら検索しても見つかりません。 先ずは条件などお知らせ頂けましたら非公開物件含め ピッタリのオフィスをご提案させて頂きます。 無理なお勧めはしておりませんので、お気軽にお問い合わせください。
対面でのご相談も受け付けております
ご来店も歓迎です
オフィス移転は社内・社外ともに非公開に行われることが殆どです。そのためアットオフィスでは、基本的に訪問によるコンサルティングを行っておりますが、ご来店の相談も歓迎です。お一人おひとりに親身にご対応させて頂きたい為、要予約とさせて頂いております。ご来店の際は先ずは下記よりご予約下さい。
新宿/西新宿エリアで豊ビルに似た条件の物件
読込中...
豊ビルと同じ最寄駅の物件
読込中...
| 取扱様態 | 仲介 |
|---|---|
| 取扱会社 | 株式会社 アットオフィス |